Deze moderne woning gelegen aan het water biedt met ca. 173 m² volop ruimte en mogelijkheden voor optimaal woonplezier!
Wonen in Tudorpark is ongekend populair! De prachtige Engelse bouwstijl geeft de wijk een unieke en sfeervolle uitstraling. Aan de charmante Catharina van Aragonlaan, direct aan het water, staat deze royale woning. In de tuin trekt de steiger direct de aandacht, een heerlijke plek om te ontspannen, met zelfs de mogelijkheid om een bootje aan te leggen. Niet alleen de buitenzijde, maar ook de binnenzijde van de woning is een fraaie verschijning. De lichte woonkamer staat in open verbinding met de luxe keuken, die is voorzien van alle benodigde inbouwapparatuur. De woning beschikt over vier ruime slaapkamers en een moderne badkamer. Bovendien biedt deze ultieme gezinswoning de mogelijkheid om een vijfde slaapkamer én een tweede badkamer te realiseren.
Tudorpark in Toolenburg-Zuid is niet voor niets een van de populairste wijken van Hoofddorp. De prachtige architectuur, het vele groen en water, de rustige straten en uitstekende ligging zorgen voor een grote aantrekkingskracht. De Toolenburgerplas, bushalte, diverse speeltuintjes, sportvoorzieningen en scholen bevinden zich in de nabijheid. Amsterdam, Haarlem, Den Haag en Schiphol zijn via de uitvalswegen en het openbaar vervoer goed bereikbaar. Welkom in het Tudorpark, waar wonen iedere dag een genot is!
Indeling:
Begane grond:
Via de voortuin bereik je de entree van de woning. De hal geeft toegang tot het toilet met fonteintje en de garderobe. De ruime woonkamer is licht en biedt voldoende ruimte voor zowel een gezellige zithoek als een eethoek. Aan de voorzijde bevindt zich de royale open keuken, voorzien van diverse inbouwapparatuur, zoals een vaatwasser, magnetron, koel-vriescombinatie, 6-pits gasfornuis met oven, afzuigkap, wijnklimaatkast en voldoende opbergruimte. Vanuit de woonkamer heb je via openslaande deuren toegang tot de achtertuin. Deze zorgen voor een mooie overgang tussen binnen en buiten, waardoor je in de zomermaanden de tuin eenvoudig bij de leefruimte kunt betrekken.
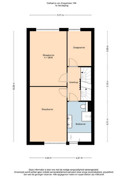
Eerste verdieping:
Op de eerste verdieping bevinden zich drie slaapkamers, waarvan er twee ruim van formaat zijn. De slaapkamers zijn licht en bieden voldoende indelingsmogelijkheden. De kleinere slaapkamer kan eventueel ook worden ingericht als walk-in closet of werkruimte. De ruime badkamer is voorzien van een ligbad, een aparte douche, een dubbele wastafel en een toilet.
Tweede verdieping:
Op de tweede verdieping bevindt zich een zeer ruime slaapkamer, die ook uitstekend kan dienen als gastenverblijf. Daarnaast is er een technische ruimte met de wasmachineaansluiting, de cv-installatie en extra bergruimte.
Zolder:
Via een vaste trap bereik je de zolderverdieping. Hoewel deze momenteel nog niet is meegerekend in het woonoppervlak, ligt er al een offerte klaar voor het plaatsen van een dakraam. De ruimte wordt momenteel gebruikt als werkruimte, maar is uitermate geschikt om te worden ingericht als extra slaapkamer.
Bijzonderheden:
- Woonoppervlakte van ca. 173 m² woonplezier;
- Aanlegplaats voor een bootje;
- Uitstekend geïsoleerde woning (dak, spouwmuren en begane grond vloer);
- Verwarming en warm water via een HR-ketel;
- Begane grond, voorzien van vloerverwarming;
- Hardhouten kozijnen met HR glas;
- Vier (mogelijk vijf) slaapkamers; offerte voor dakraam op zolder aanwezig;
- Mogelijkheid voor een tweede badkamer (tweede verdieping);
- 2 zonnepanelen aanwezig;
- Fraai aangelegde tuin (noorden) met steiger aan het water;
- Ruime berging in de tuin;
- Energielabel A;
- Oplevering in overleg.
Wilt u deze woning komen bezichtigen?
Neem contact met ons op via het contactformulier, op telefoonnummer 023-2100 703 of via fleurvandervegt @remax.nl.
Wij nemen zo snel mogelijk contact met u op.