Deze moderne, nagenoeg vrijstaande woning op een perceel van 295 m2, maakt al uw woondromen waar. De master bedroom met stoomdouche/whirlpool, twee (voorheen drie) ruime slaapkamers, een tweede badkamer met ligbad, de tuingerichte woonkamer en de grootse woonkeuken bieden veel luxe en leefruimte voor u en uw gezin. De diepe achtertuin biedt volop zon en heeft borders met fraaie beplanting. Aan de voorzijde kijkt u uit over een groenstrook en het water en voor de kinderen is er een speeltuintje. Dit is de perfecte woning op de perfecte locatie.
De woning staat aan de rand van “de Pleinen” in de populaire wijk Floriande. Op loopafstand ligt winkelcentrum Floriande met meerdere supermarkten, verswinkels, drogisterijen, kledingwinkels, een sportschool en een gezellige weekmarkt. Ook kent de wijk een gezondheidscentrum met apotheek. Er zijn diverse voorzieningen voor jong en oud waaronder kinderopvang, basisonderwijs, sportverenigingen en het Haarlemmermeer Lyceum. De Toolenburger Plas, Park 21 en de Boseilanden zijn plekken op loopafstand voor recreatie, een hardlooptraining of bootcamp. Verder zijn de steden Amsterdam, Leiden en Haarlem alsmede Schiphol zeer goed te bereiken.
Indeling:
Begane grond:
Aan het einde van de oprit is de entree van dit fantastische woonhuis. Vanuit de L-vormige hal zijn de woonkeuken, de meterkast, de moderne toiletruimte met fonteintje en de trap naar de eerste verdieping te bereiken. De gehele begane grond is voorzien van een stijlvolle tegelvloer met vloerverwarming. De deels glazen toegangsdeur tot de woonkeuken etaleert het niveau van luxe dat deze woning uniek maakt.
Deze woning heeft een zeer grote leefruimte, verdeeld in een ruime woonkamer aan de achterzijde en een prachtige woonkeuken aan de voorzijde. Dubbele openslaande deuren aan zowel de voor- als de achterzijde van de woning geven toegang tot respectievelijk de voor- en de achtertuin en door de grote ramen valt veel licht naar binnen.
De keuken heeft een wandopstelling met een granieten werkblad en alle benodigde inbouwapparatuur: een gaskookplaat, afzuigkap, vaatwasser, combi-oven, Quooker, koelkast en vriezer. De kast onder de trap biedt veel praktische bergruimte. Tevens vindt u hier de verdeler voor de vloerverwarming.
Vanuit de woonkeuken is de woonkamer te bereiken, verdeeld in een zithoek, een werkhoek en een zitje bij de sfeervolle houtkachel. Volop ruimte, een speelse indeling en optimaal tuincontact maken de woonkamer tot een fijne plek om tv te kijken, te werken en bezoek te ontvangen.
Links van de woning is de aangebouwde hoge berging met een deur naar de oprit, een deur naar de achtertuin, een plavuizen vloer en elektra.
Eerste verdieping:
Via de hardhouten trap komt u op de overloop van waaruit twee (voorheen drie) slaapkamers, de badkamer, een bergkast en de separate toiletruimte te bereiken zijn. De beide slaapkamers zijn meer dan 5 meter breed en van de grote kamer aan de voorzijde zijn eenvoudig weer twee mooie slaapkamers te maken. Op de gehele verdiepingsvloer ligt een fraaie laminaatvloer.
De luxe, volledig betegelde, badkamer is voorzien van een ligbad met douchewand, een designradiator en een wastafelmeubel met twee wastafels. Het toilet bevindt zich in een aparte ruimte naast de badkamer, te bereiken vanaf de overloop.
De gehele eerste verdieping is voorzien van elektrisch bedienbare rolluiken in een mooie donkergrijze kleur die zeer goed bij de rest van het huis past.
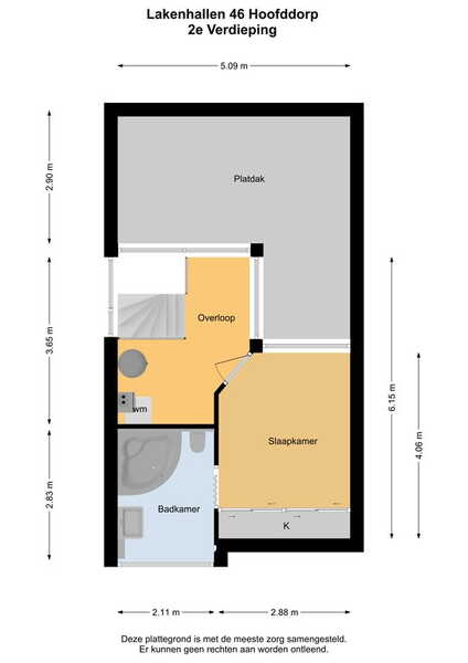
Tweede verdieping:
De luxe van een vijfsterrenhotel beleeft u op de tweede verdieping. Dankzij de grote ramen en de erker heeft u prachtig uitzicht en volop lichtinval. Deze verdieping is ingedeeld als derde slaapkamer met een tweede badkamer.
De master bedroom is een oase van rust. De op maat gemaakte garderobekast heeft hang- en legruimte en grote schuifdeuren met spiegels. Na plaatsing van een deur is het mogelijk om het platte dak te gebruiken als dakterras, maar ook een uitbouw, voor het creëren van twee extra kamers, behoort tot de mogelijkheden. Ook deze verdieping is voorzien van dezelfde elektrisch bedienbare rolluiken en laminaatvloer als op de eerste verdieping.
Aansluitend aan de master bedroom bevindt zich de tweede badkamer met een wastafelmeubel, toilet en een grote stoomdouche met geïntegreerde whirlpool. Deze badkamer is geheel betegeld met mooie wand- en vloertegels, wat zorgt voor een optimale beleving van luxe en weldaad.
Op deze verdieping zijn de HR-ketel en de mechanische ventilatie-unit geplaatst; ook hangt hier de boiler die is aangesloten op de zonnecollectoren. Onder het houten werkblad staat de wasmachine en is er voldoende ruimte voor het plaatsen van een wasdroger.
Exterieur:
De diepe achtertuin heeft meerdere terrassen, een houten berging met zonnepanelen en borders met een grote variatie aan beplanting. Tevens is de tuin te bereiken via een afsluitbare poort. Het terras aan de achterzijde kan eenvoudig worden verbouwd tot carport waardoor u uw auto op eigen terrein kunt parkeren.
Bijzonderheden:
-Verwarming via een HR-ketel (Nefit, 2016);
-Mechanische ventilatie voorzien van 2 units;
-Elektrisch bedienbare rolluiken op de eerste en tweede verdieping;
-Het buitenschilderwerk is in 2016 gedaan;
-Vloerverwarming op de begane grond;
-Verwarming is in vier zones verdeeld en apart te bedienen;
-Dubbele netwerkaansluiting in de woonkamer en alle slaapkamers;
-Mogelijkheid voor een carport (inrit reeds aanwezig).