LET OP: DE PREELOPPERVLAKTE DIENT 1100 M².
Stijlvol wonen in een verbouwde boerderij met rust, historie en modern comfort in Haarlem!
Deze charmante vrijstaande woning is oorspronkelijk gebouwd als boerderij en volledig verbouwd tot een comfortabel en modern woonhuis. Bij de renovatie is ervoor gekozen om het karakter van het boeren verleden op eigentijdse wijze terug te laten komen, met als opvallende elementen het rieten dak en de mooie houten balkenconstructie aan de binnenzijde van de woning. Deze sfeervolle details zijn stijlvol verweven met modern wooncomfort. Gelegen op een royaal perceel en op korte loopafstand van het vaarwater van de Ringvaart, vormt dit een unieke plek waar rust, historie en woongenot harmonieus samenkomen.
Karakteristiek wonen op een unieke locatie:
Deze woning ligt aan een rustige, autoluwe straat met een landelijk karakter, omgeven door groen en historie. De woning bevindt zich op slechts enkele minuten fietsen van het centrum van Haarlem en het uitgestrekte natuurgebied Spaarnwoude.
Dankzij de ligging vlakbij uitvalswegen zoals de A9 en A200 zijn steden als Amsterdam en Schiphol uitstekend bereikbaar. Ook met het openbaar vervoer ben je goed verbonden via nabijgelegen bushaltes en station Haarlem Spaarnwoude. Een ideale locatie voor wie houdt van rust, ruimte en bereikbaarheid.
Indeling:
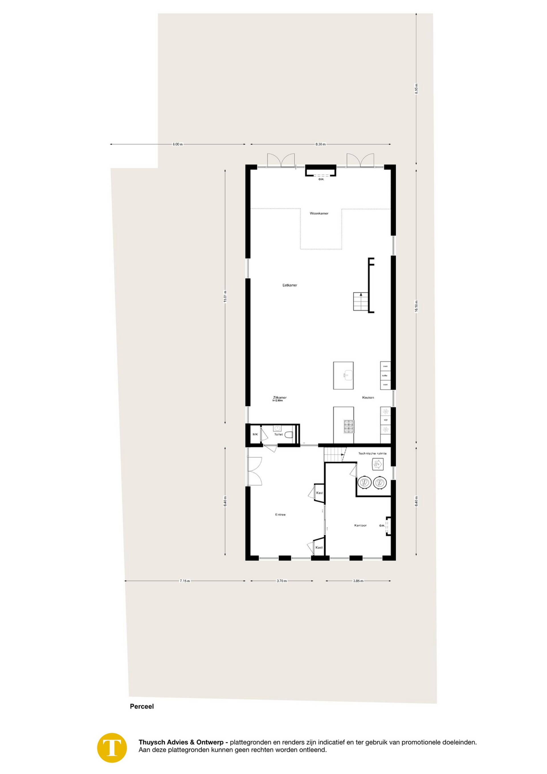
Begane grond:
Via de ruime voortuin, die is voorzien van een automatisch toegangshek en parkeergelegenheid voor meerdere auto’s, bereik je de entree van de woning. Het perceel is aan de zijde van de buren op natuurlijke wijze afgeschermd door water en mooie bomen, wat zorgt voor extra privacy.
Bij binnenkomst in de hal word je verwelkomd door een open, lichte ruimte met een sfeervolle piano, perfect voor de muziekliefhebber. Hier bevinden zich tevens de trap naar de eerste verdieping, een toilet met fontein en een aangrenzende ruime werkkamer met veel daglicht.
De riante, lichte woonkamer ademt sfeer dankzij de zichtbare houten balken, die een perfecte balans bieden tussen een moderne en landelijke uitstraling. De grote raampartijen laten veel natuurlijk licht binnen, terwijl de gezellige houtkachel een warme, uitnodigende sfeer creëert.
De open indeling is op een slimme en stijlvolle manier ingedeeld in verschillende leefgedeeltes. Zo is er een knusse tv-hoek waar je heerlijk kunt ontspannen, en een royale eettafel die niet alleen een eyecatcher is, maar ook de woonkamer subtiel van de keuken scheidt, zonder de open verbinding tussen de ruimtes te verliezen.
Boven de bank, tussen de houten balken constructie, bevindt zich een prachtig hoog plafond dat de ideale ruimte biedt voor een Swarovski-kroonluchter. Dit creëert een luxe en unieke uitstraling, waardoor de woonkamer echt bijzonder en indrukwekkend wordt.
De open keuken is modern ingericht, voorzien van hoogwaardige inbouwapparatuur van Miele en veel opbergruimte. De keuken beschikt over een royaal kookeiland en een apart spoeleiland, waaraan ruimte is gecreëerd voor barkrukken, ideaal voor wie tijdens het koken wil genieten van een goed glas wijn en een gezellig gesprek. Verder is de keuken uitgerust met twee vaatwassers, een inbouw stoomoven, oven, koffiemachine en een wijnklimaatkast. Daarnaast zijn er een ruime koelkast en een separate vriezer aanwezig.
Eerste verdieping:
Via de zwevende trap bereik je de voorkamer, die door de open vide een mooie connectie heeft met de woonkamer. Op de eerste verdieping bevinden zich drie slaapkamers, elk met een uniek uitzicht op de omgeving en sfeervolle details zoals houten dakspanten en raampartijen. De masterbedroom is bijzonder luxe, met een walk-in closet en een ensuite badkamer die is voorzien van een ligbad, inloopdouche en dubbele wastafel. Daarnaast is er een wasruimte voor de droger en wasmachine, een apart toilet.
De overige twee slaapkamers beschikken elk over een eigen badkamer, wat extra privacy biedt. De moderne badkamers op deze verdieping zijn uitgerust met een douche, wastafel en een toilet. Via de vlizotrap bereik je de bergzolder, die ideaal is als extra opslagruimte.
Buitenruimte:
De achtertuin ligt beschut en biedt volop privacy en ruimte om optimaal van het buitenleven te genieten. De tuin is strak en smaakvol aangelegd met een eigentijdse mix van modern design en groen. Een stijlvolle schutting zorgt voor een duidelijke en fraaie afscheiding tussen de oprit en de tuin, waardoor beide zones hun eigen functie en uitstraling behouden.
Bijzonderheden:
- Door een fout bij het kadaster is in de aanmelding de perceeloppervlakte onjuist vermeld. De correcte oppervlakte bedraagt 1100 m².
- Optie voor aanlegplaats voor een sloep, aan het vaarwater de Liede;
- Vrijstaande woning op een royaal perceel;
- Perfecte ligging;
- Van origine een oude boerderij, volledig verbouwd tot comfortabel woonhuis;
- Woonoppervlakte: ca. 306 m²;
- Bouwjaar: ca. 1916 (maar volledig gerenoveerd in 2014);
- Energielabel A;
- Grondwaterpomp, koud-warmte systeem, regel in elke kamer je eigen tempratuur;
- Volledige vloerverwarming;
- Drie slaapkamers;
- Drie badkamers;
- Parkeren op eigen terrein;
- Alarminstallatie;
- Camera beveiliging;
- Stofzuiger systeem;
- Eigen grond;
- Elektrische opladen voor de auto;
- Vaarwater (Ringvaart) in de directe omgeving;
- Rustige ligging nabij het centrum van Haarlem;
- Project notaris;
- Oplevering in overleg.
Wil jij deze unieke voormalige boerderij met karakter zelf ervaren?
Neem contact met ons op via het contactformulier, telefonisch op 023-2100703, of via fleurvandervegt@ remax.nl. Wij plannen graag een bezichtiging met je in.