Algemeen
Prijs
€ 650.000 k.k.
Bouwtype
bestaande bouw
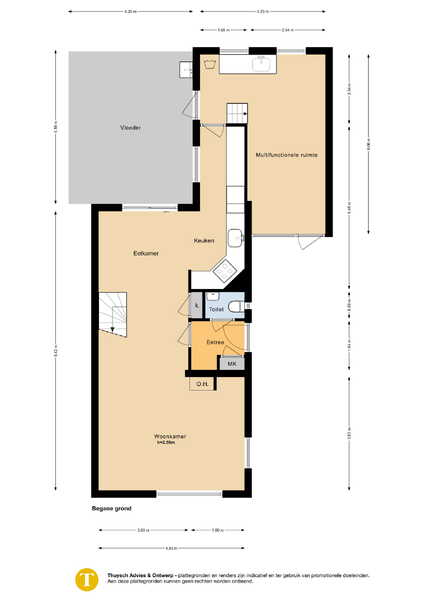
Woonoppervlakte
116 m2
Perceeloppervlakte
397 m2
Aantal kamers
4
Aantal slaapkamers
3
Aantal badkamers
1
Omschrijving
Kenmerken
Adres
Schipholdijk 261
1438 AE OUDE MEER
1438 AE OUDE MEER
Prijs
Soort
vraagprijs
Prijs
€ 650.000 k.k.
Aanvaarding
in overleg
Aangeboden sinds
10 Oktober 2025
Details
Type object
woonhuis
Soort object
villa
Bouwtype
bestaande bouw
Bouwjaar
1978
Woonoppervlakte
116 m2
Perceeloppervlakte
397 m2
Gebouwgebonden buitenruimte
22 m2
Externe bergruimte
8 m2
Inhoud
423 m3
Open portiek
nee
In aanbouw
nee
Ligging
aan water, vrij uitzicht, aan vaarwater, landelijk gelegen
Soort verwarming
cv ketel
Warmwaterinstallatie
cv ketel
Isolatievormen
dakisolatie, muurisolatie, hr glas
Dakmateriaal
pannen
Voorzieningen
alarminstallatie, schuifpui
Indeling
Aantal kamers
4
Aantal slaapkamers
3
Aantal badkamers
1
Typewoonkamer
woonkamer
Keukensoort
open keuken
Tuin
Aanwezig?
ja
Tuin
achtertuin, voortuin
Oppervlakte
225 m2
Diepte
25,00 m
Breedte
9,00 m
Ligging
west
Bereikbaar via achterom?
nee
Garage
Aanwezig?
nee
Bergruimte
Schuur/berging?
inpandig
Voorzieningen
voorzien van verwarming, voorzien van elektra, voorzien van water, met vliering
Isolatievormen
dakisolatie, dubbel glas
Energielabel
Aanwezig?
ja
Klasse
C
Uw makelaar
Fleur van der Vegt
Geïnteresseerd in deze woning? Vul dit formulier in voor een bezichtiging van deze woning of voor meer informatie. Dan nemen wij zo snel mogelijk contact met u op.









