Op zoek naar een ruim, comfortabel en energiezuinig gezinshuis met energielabel A+?
Deze royale tussenwoning, gebouwd in 2001 in jaren ’30-stijl, is rustig gelegen aan de rand van Getsewoud-Noord en heeft alles wat u zoekt. Met 138 m² woonoppervlak, vier slaapkamers, een moderne open keuken, een luxe badkamer en een fraai aangelegde voor- en achtertuin is dit de ideale plek voor gezinnen die waarde hechten aan ruimte, comfort en woongenot.
Ligging:
De woning ligt in een rustige en kindvriendelijke buurt, met scholen, kinderopvang, sportclubs, winkels en openbaar vervoer in de directe omgeving. Dankzij het R-net bent u snel in Amsterdam, Haarlem of Schiphol en via de A4, A5, A9 en A10 is ook de rest van de Randstad uitstekend bereikbaar.
Begane grond:
Via de ruime voortuin bereikt u de voordeur. De hal geeft toegang tot de meterkast, een toiletruimte met een luxe Japans toilet en vloer- en wandverwarming, de trapopgang en de woonkamer. Bij binnenkomst in de woonkamer valt direct de lichte en open indeling op. De tuingerichte woonkamer is voorzien van een marmeren vloer met vloerverwarming in een lichte kleurstelling. Grote raampartijen zorgen voor veel natuurlijk licht en een fijne sfeer. Via openslaande deuren is de achtertuin te bereiken.
De moderne open keuken met voldoende bergruimte is gelegen aan de voorzijde van de woning. De keuken is uitgevoerd in een zwart/grijze kleurstelling en voorzien van hoogwaardige inbouwapparatuur, waaronder een fornuis met oven en inductiekookplaat, combimagnetron, Quooker en koel-/vriescombinatie. Alles is aanwezig om hier met plezier te koken.
Eerste verdieping:
Op de eerste verdieping bevinden zich drie ruime en lichte slaapkamers. De luxe badkamer is volledig vernieuwd in 2023 en uitgerust met een inloopdouche, dubbele wastafel, toilet en vloerverwarming. De verdieping is afgewerkt met een fraaie laminaatvloer.
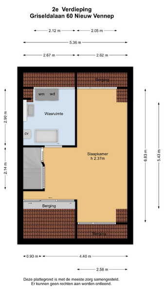
Tweede verdieping:
Dankzij de twee dakkapellen aan de voor- en achterzijde is deze verdieping verrassend ruim en licht. De ruimte wordt nu gebruikt als slaap- en hobbykamer, maar biedt volop mogelijkheden voor een extra slaapkamer of zelfs een tweede badkamer. Ook is hier een ruime wasruimte met aansluitingen voor wasmachine en droger. De airconditioning (2023) zorgt voor extra comfort, zowel in de zomer als in de winter.
Buitenruimte:
De fraai aangelegde achtertuin is een heerlijke plek om te ontspannen. Dankzij de gunstige ligging op het noordwesten geniet u hier van de middag- en avondzon. Achter in de tuin, die tevens via een achterom bereikbaar is, staat een houten berging, ideaal voor fietsen en tuingereedschap.
Pluspunten op een rij:
• Bouwjaar: 2001
• Woonoppervlakte: 138 m²
• Perceel: 157 m²
• Moderne keuken (2020)
• Luxe badkamer (2023)
• 4 slaapkamers (mogelijkheid tot 5)
• Cv-ketel (2023)
• Airco op 2e verdieping (2023)
• 7 zonnepanelen
• Energielabel A+
• Kunststof kozijnen
• Vloerverwarming
• Voor- en achtertuin
Enthousiast?
Plan snel een bezichtiging en ervaar zelf de ruimte, luxe en het comfort van deze prachtige woning.
Neem contact met ons op via het contactformulier, bel 023-2100700 of mail naar uwmakelaar @remax.nl. Wij helpen u graag verder.