Algemeen
Prijs
€ 595.000 k.k.
Bouwtype
bestaande bouw
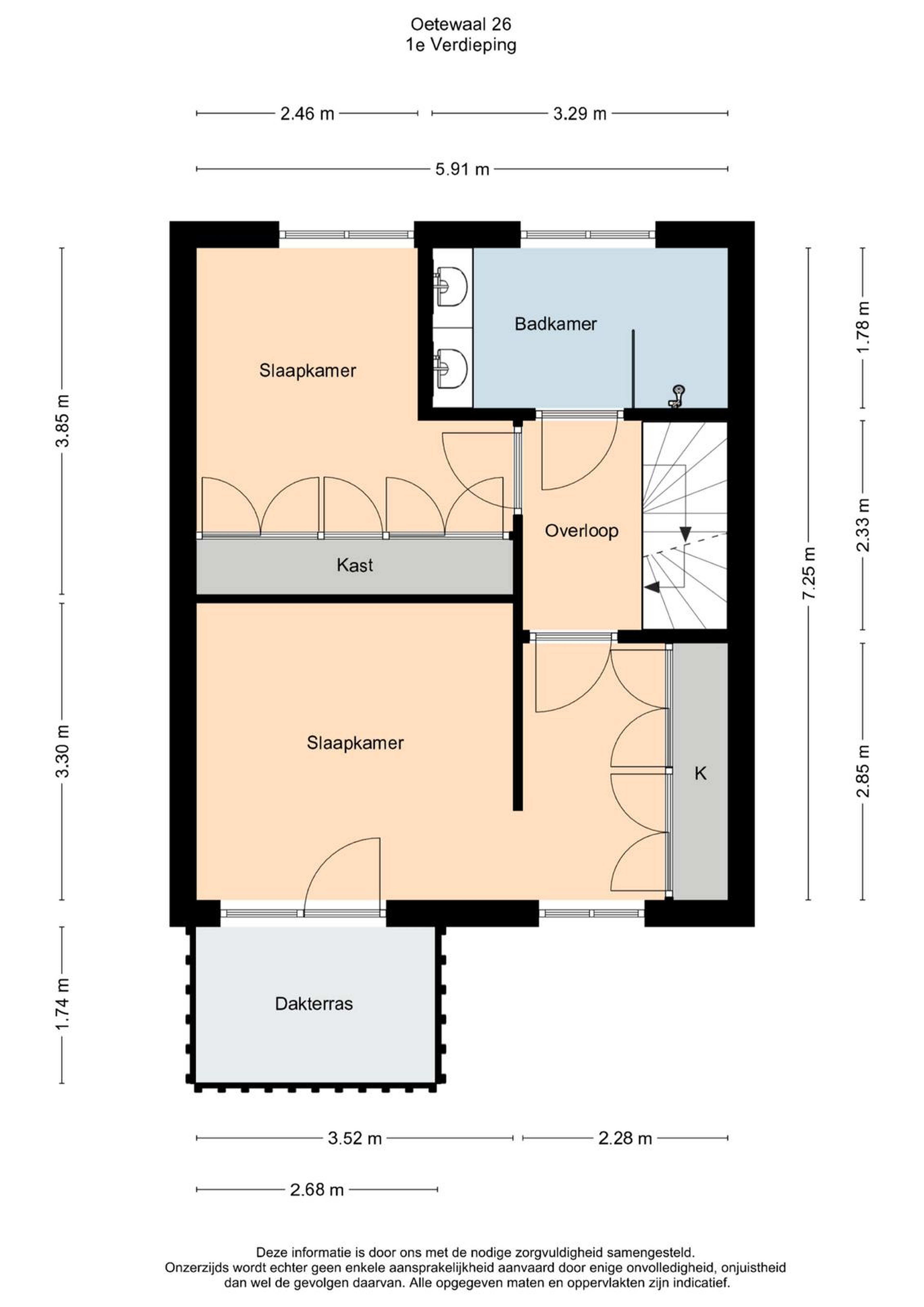
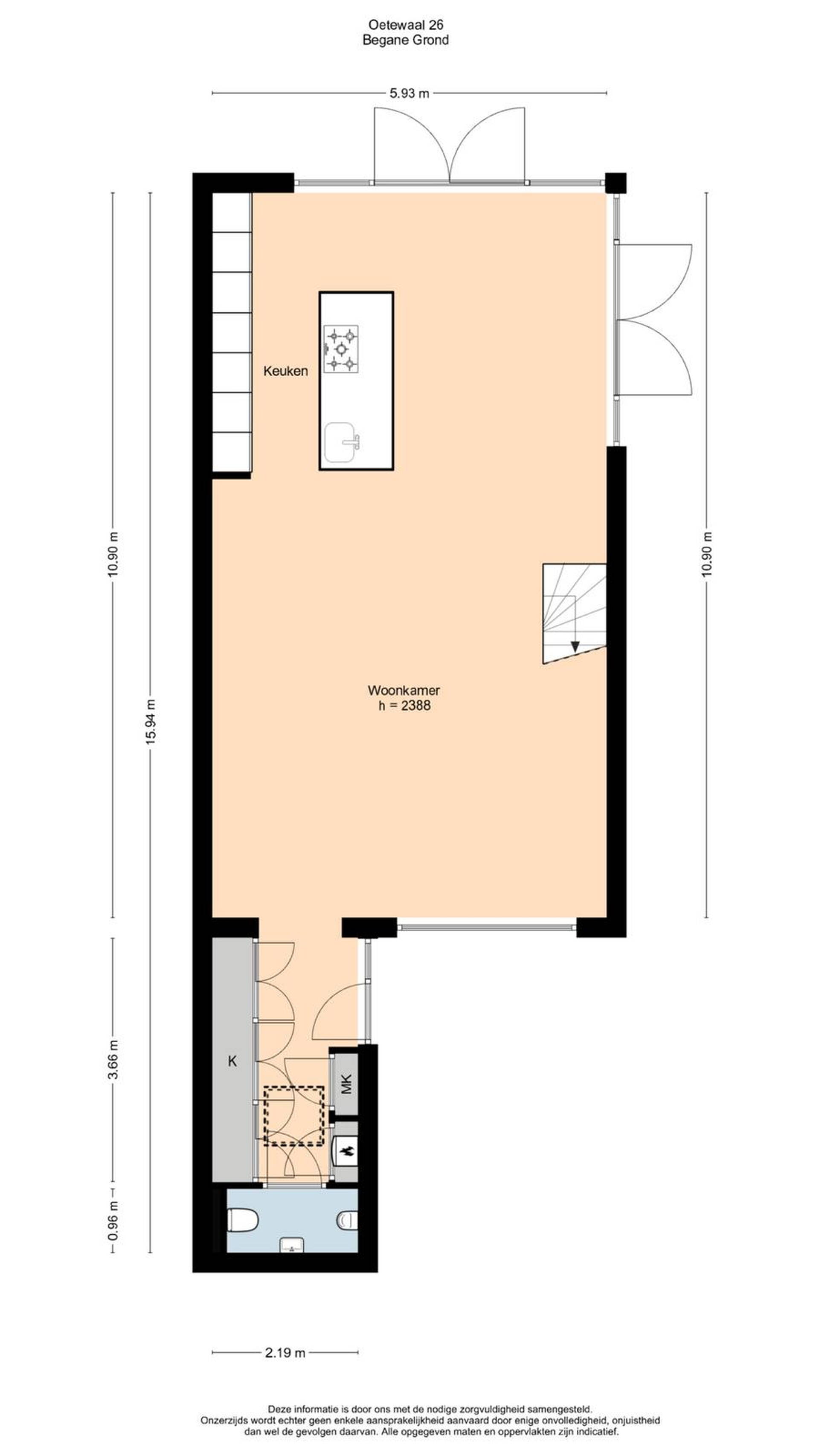
Woonoppervlakte
145 m2
Perceeloppervlakte
200 m2
Aantal kamers
3
Aantal slaapkamers
2
Aantal badkamers
1
Omschrijving
Kenmerken
Adres
Oetewaal 26
2151 SM NIEUW-VENNEP
2151 SM NIEUW-VENNEP
Prijs
Soort
Prijs
€ 595.000 k.k.
Aanvaarding
in overleg
Aangeboden sinds
18 April 2025
Details
Type object
woonhuis
Soort object
eengezinswoning
Bouwtype
bestaande bouw
Bouwjaar
1973
Woonoppervlakte
145 m2
Perceeloppervlakte
200 m2
Gebouwgebonden buitenruimte
15 m2
Externe bergruimte
5 m2
Inhoud
484 m3
Open portiek
nee
In aanbouw
nee
Ligging
in woonwijk
Soort verwarming
cv ketel
Warmwaterinstallatie
cv ketel
Dakmateriaal
pannen
Voorzieningen
mechanische ventilatie, airconditioning, glasvezel kabel, zonnepanelen, natuurlijke ventilatie
Indeling
Aantal kamers
3
Aantal slaapkamers
2
Aantal badkamers
1
Typewoonkamer
woonkamer
Keukensoort
open keuken, woonkeuken, inbouwapparatuur
Tuin
Aanwezig?
ja
Tuin
achtertuin, voortuin, zijtuin
Bereikbaar via achterom?
nee
Garage
Aanwezig?
nee
Bergruimte
Energielabel
Aanwezig?
ja
Klasse
C
Uw makelaar
Daniëlle Damstra
Geïnteresseerd in deze woning? Vul dit formulier in voor een bezichtiging van deze woning of voor meer informatie. Dan nemen wij zo snel mogelijk contact met u op.













