In het populaire Getsewoud Zuid staat deze stijlvolle twee-onder-een-kapwoning met een prachtige kantoor-/praktijkruimte, voorzien van een eigen entree. Verder heeft deze unieke woning vier (mogelijk zes) slaapkamers, een ruime woonkamer, luxe keuken, een oprit met carport, garage én een zonnige tuin op het zuidwesten. Sfeer, ruimte en wooncomfort vormen de perfecte match. Wonen en werken op hetzelfde adres met optimale privacy; het is een zeldzame kans die je met beide handen moet aangrijpen.
De Laan van Berlioz is één van de mooiste lanen in Getsewoud Zuid. Via het bruggetje loop je naar het Lentepark en de speeltuin aan de overzijde van het water. Ook aan het Ravelplantsoen (vlak om de hoek) is een leuke speeltuin en in het midden van de laan is een mooie groenstrook met hoge bomen. Praktische voorzieningen zoals winkelcentrum Getsewoud, (basis)scholen, sportfaciliteiten en de halte van R-net maken het wonen in deze wijk ideaal voor jong en oud. Via de uitvalswegen zijn de kust, Schiphol en omliggende steden goed te bereiken.
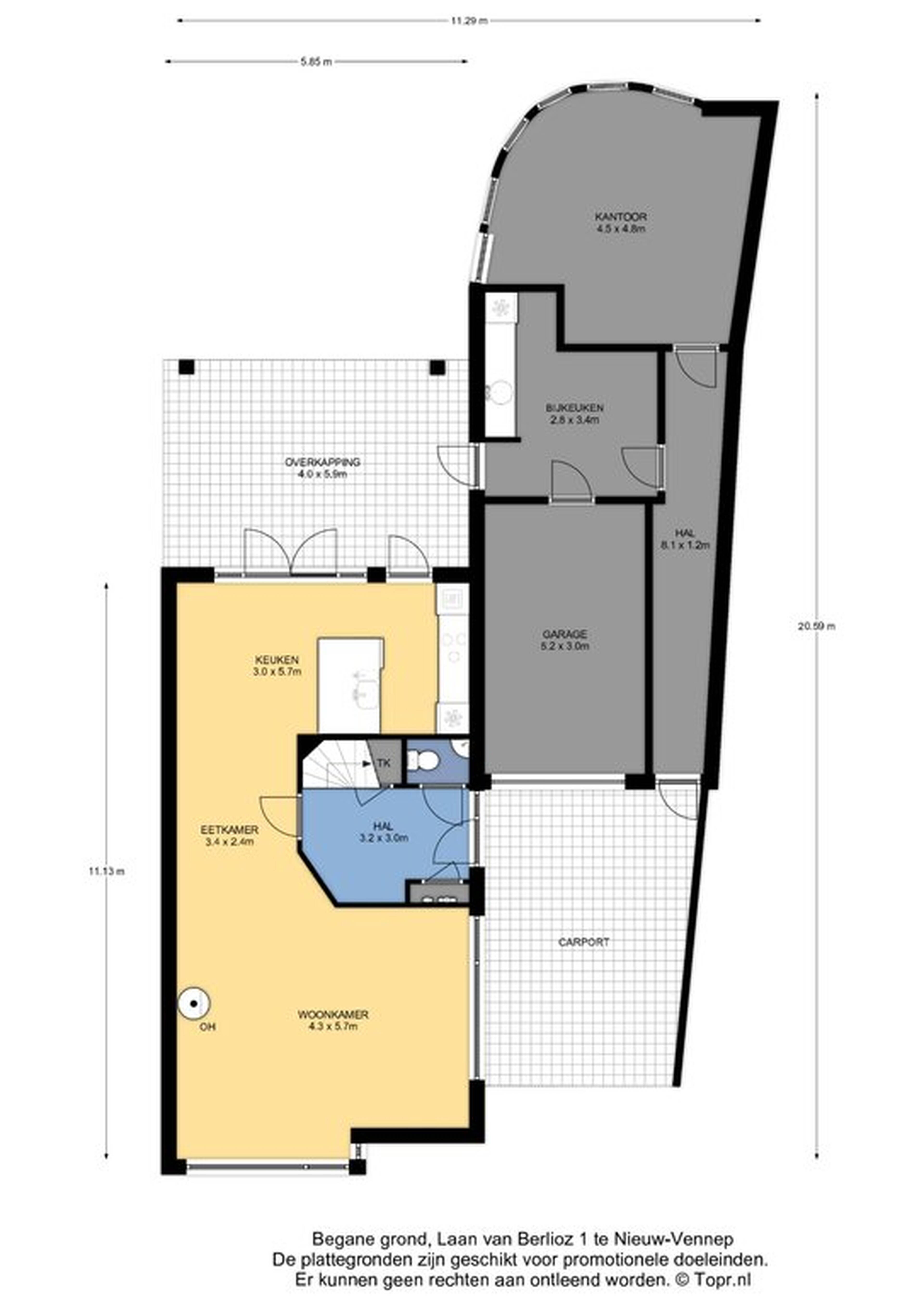
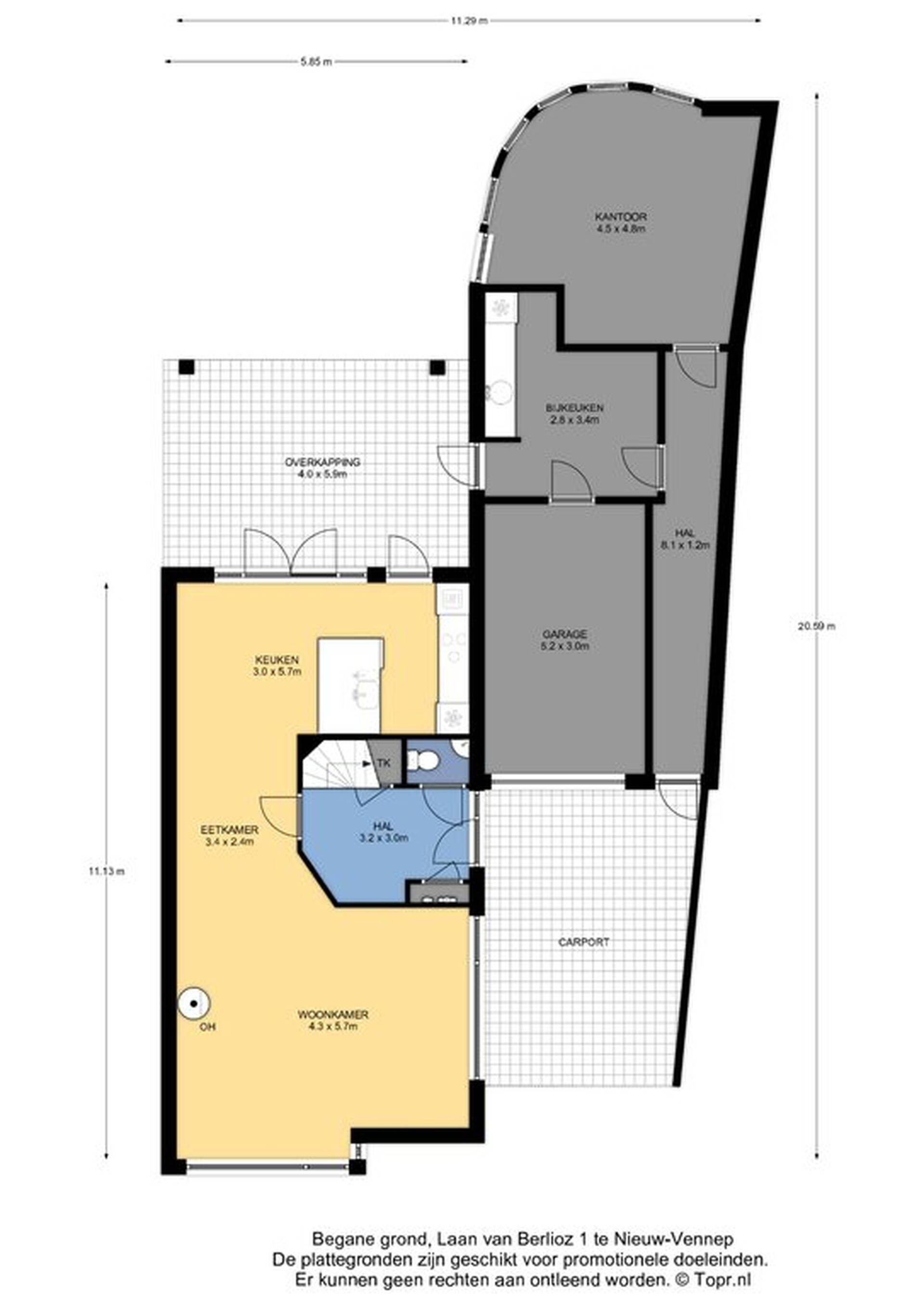
Indeling:
Begane grond:
Parkeer je auto op de oprit of onder de carport en loop naar de voordeur van deze fantastische woning. De hal is een grote ruimte met een geblokte tegelvloer en de trap naar de eerste verdieping. Onder de trap is een handige berg-/garderobekast en de nette toiletruimte is voorzien van een fonteintje.
Sfeer, ruimte en lichtinval vormen een prachtige combinatie in deze ruime woonkamer met halfopen keuken. Aan de voorzijde is het zitgedeelte met een erker, vele grote ramen en een stoere houtkachel. Op de vloer ligt laminaat en zowel de wanden als het plafond zijn geschilderd in een lichte kleur.
Bij het eetgedeelte valt je oog op de dubbele tuindeuren en de mooie verbinding met de keuken. Er is plek voor een zespersoons tafel en een breed dressoir; zonder dat de ruimte krap aanvoelt. De keuken heeft een warme kleur, granieten werkbladen, een granieten achterwand en brede lades die veel bergruimte bieden. Alle benodigde apparatuur van Miele en Quooker is ingebouwd: een gaskookplaat met wokbrander, een afzuigkap, heteluchtoven, stoomoven, koffiemachine, vaatwasser, Quooker heet waterkraan en een koelkast.
Via de deur in de keuken loop je dankzij de overkapping droog naar de bijkeuken, voorzien van een tweede keukenblok. In de bijkeuken is een deur naar de aangebouwde garage van 15.6m2, een prima plek voor een auto of de fietsen, scooter en motor. De garage heeft dezelfde plavuizen vloer als de bijkeuken, een lichtkoepel en een elektrisch bedienbare rolpoort naar de carport.
Deze woning is niet alleen een geweldige plek om te wonen maar ook om te werken. Onder de carport is een deur naar een lange hal die toegang geeft tot de kantoor-/praktijkruimte, voorzien van een erker met vele ramen en optimaal tuincontact.
Eerste verdieping:
Op de eerste verdieping zijn de overloop, badkamer, separate toiletruimte en twee (voorheen drie) slaapkamers. Aan de achterzijde is een ruime tweepersoonskamer en aan de voorzijde zijn twee kamers samengevoegd tot de prachtige hoofdslaapkamer met een apart zitgedeelte en een kleedkamer.
Tussen beide slaapkamers is de badkamer met een ligbad, aparte douche en een groot wastafelmeubel met een dubbele wastafel. De wanden en vloer zijn geheel betegeld in zwart en wit en de hoge wandradiator zorgt voor een aangename temperatuur.
Tweede verdieping:
Aan ruimte is op de tweede verdieping geen gebrek. Via een vaste trap kom je op de overloop met de opstelling van de cv-ketel, wasapparatuur en een wastafel. In de schuinte van het dak is veel bergruimte en op de overloop is een vlizotrap naar de bergzolder.
Verder zijn op deze verdieping twee (mogelijk drie) slaapkamers met een groot dakraam en veel sfeer dankzij de schuine dakvlakken. Op deze verdieping ligt laminaat op de vloer en de dakramen zijn voorzien van een verduisteringsgordijn.
Exterieur:
De voortuin heeft de sfeer van een strandtuin dankzij het houten erfafscheiding en de siergrassen. Een groot deel van de voortuin is bestraat, net als de oprit en carport. Er is parkeergelegenheid voor meerdere auto’s op eigen terrein.
Vanuit de woonkamer, keuken en bijkeuken is de stijlvolle achtertuin te bereiken, gelegen op het zonnige westen. De lei- en plataanbomen, de beukenhaag en de houten loopbrug naar het tweede terras zorgen voor de juiste sfeer. De grote overkapping is een heerlijke plek om buiten te zitten, ook als het bij een aangename temperatuur begint te regenen. Dit is een tuin voor levensgenieters, om bezoek te ontvangen en waar kinderen alle ruimte hebben om te spelen.
Bijzonderheden:
-Maar liefst vier (mogelijk zes) slaapkamers;
-Kantoor-/praktijkruimte met een eigen entree;
-Oprit, carport en een garage;
-Zonnige, stijlvolle tuin op het zuidwesten;
-Verwarming en warm water via een HR-ketel (Agpo Ferroli);
- Achterzijde reeds 3 meter onderheid;
- Oplevering voorkeur 1 okt 2021