Dit fantastische herenhuis staat aan de Bolwerksepoort, een straat met hoge bomen en een speelplantsoen. De statige voorgevel wordt gekenmerkt door de hoge ramen, strakke lijnen en het mooie metselwerk. Dankzij de uitbouw aan de achterzijde is de woonkamer een grote leefruimte en op de bovengelegen verdiepingen zijn vier ruime slaapkamers. Voor de fietsen is er een berging en de tuin is een gezellige plek om in de zon of schaduw te zitten.
De wijk Getsewoud heeft een gunstige ligging ten opzichte van diverse uitvalswegen waaronder de A4, A44 en de A9. Er zijn goede openbaar vervoersverbindingen (R-net en trein) richting Schiphol, Amsterdam, Haarlem, Leiden en Den Haag. Alle benodigde voorzieningen voor jong en oud zijn op korte afstand gelegen: kinderopvang, scholen, diverse sportverenigingen, een zwembad, supermarkten en winkels.
Indeling:
Begane grond:
Kom binnen in de hal van deze ruime, lichte woning en laat je verleiden door de mooie uitstraling. Links in de hal zijn de toiletruimte met fonteintje en de trap naar de eerste verdieping. De mooie woonkamerdeur met glas en de plavuizen zorgen voor de juiste sfeer. In de hal is voldoende plek voor een kapstok; aan ruimte geen gebrek.
De tuingerichte woonkamer heeft een grote uitbouw aan de achterzijde en een mooie parketvloer welke past bij diverse interieurstijlen. Onder de trap is een bergkast met een paneeldeur en de woonkamer heeft een mooie verdeling tussen het zit- en het eetgedeelte. De achtergevel bestaat voor een groot deel uit glas en heeft openslaande tuindeuren waardoor binnen en buiten een mooi geheel vormen.
Aan de voorzijde is de halfopen Siematic keuken met twee hoge ramen, een plavuizen vloer met vloerverwarming en een halfhoge muur die de scheiding vormt met de woonkamer. De hoekopstelling is voorzien van diverse onder- en bovenkasten in een neutrale kleur, een donker werkblad en alle benodigde apparatuur is ingebouwd: een 4-pits gaskookplaat, afzuigkap, combimagnetron, koelkast, vriezer en een vaatwasser. Aan de andere kant van de keuken is ruimte voor een servieskast.
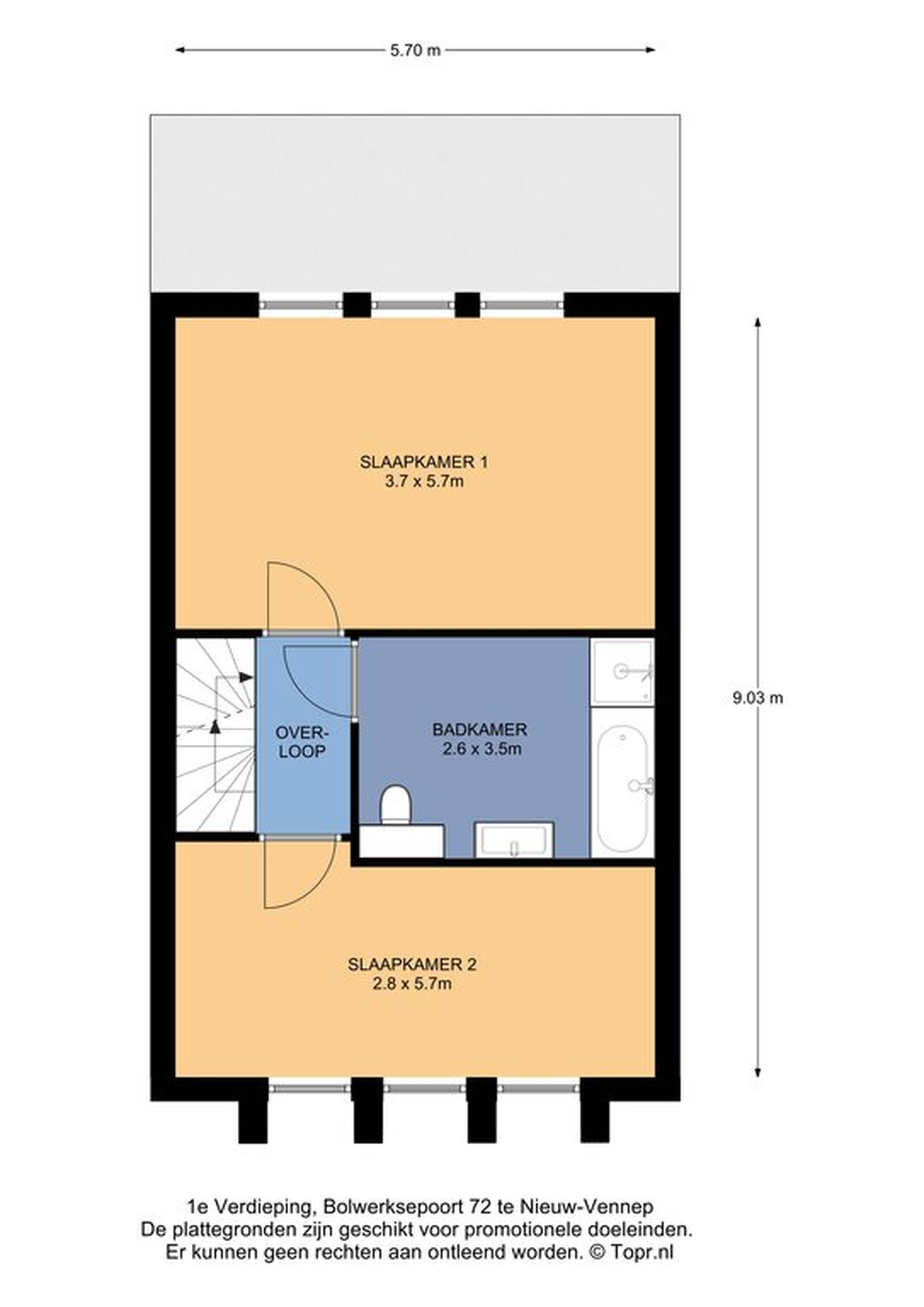
Eerste verdieping:
Op de eerste verdieping zijn twee zeer ruime slaapkamers en de badkamer. Beide slaapkamers zijn maar liefst 5,70 meter breed en hebben elk drie grote ramen. De kamer aan de voorzijde heeft verduisterende plisségordijnen (2019), drie screens (zonwering) en een laminaatvloer. Aan de achterzijde is de ouderslaapkamer met tapijt op de vloer en een ruime opstelling van het bed en de garderobekast. Alle ramen in de gehele woning die open kunnen zijn voorzien van insectenhorren (2019).
Tussen de slaapkamers is de badkamer, te bereiken vanaf de overloop. De wanden zijn geheel betegeld in een lichte kleur en de ruimte is ingedeeld met een ligbad, aparte douche, een handdoekenradiator, tweede toilet en een wastafel. Aan bergruimte geen gebrek; de wastafel heeft een spiegelkast en een kast onder de wastafel. De plavuizen op de vloer en bij het toilet vormen een smaakvolle combinatie met de kleur van de wandtegels en het wastafelmeubel.
Tweede verdieping:
De woning heeft een volwaardige tweede verdieping met een overloop, twee slaapkamers en een berging/wasruimte. In de berging zijn de aansluitingen voor de wasmachine en droger; ook hangen hier de cv-ketel, de WTW-ventilatieunit en de omvormer van de zonnepanelen.
Qua afmetingen zijn de slaapkamers identiek aan de kamers op de eerste verdieping; heerlijk ruim. De kamer aan de voorzijde is ingericht als werkkamer en heeft tapijt op de vloer, verduisterende plisségordijnen (2019) en drie screens (zonwering). Aan de achterzijde is de slaapkamer ingedeeld met een slaap-, werk- en een zithoek. Frisse kleuren op de muren en de laminaatvloer vormen in deze kamer een mooi geheel.
Exterieur:
De gezellige achtertuin ligt op het noordoosten en biedt zowel zon als schaduw. Achterin de tuin staat een houten zeer ruime berging voor de fietsen en opslag en er is een poort naar de gezamenlijke achterom. Houten schuttingen zorgen voor privacy en in de verhoogde borders staat diverse beplanting. Verder is de tuin geheel betegeld waardoor je alle ruimte hebt om buiten te zitten.
Bijzonderheden:
-10 zonnepanelen zorgen voor een lagere energienota; (jaaropbrengst 2,75MWh)
-Hardhouten kozijnen voorzien van draai-/kiepramen en HR++-glas;
-Verwarming en warm water via een HR-ketel;
-Vier zeer ruime slaapkamers;
-Buitenzijde geverfd zomer 2020;
-Zonwering, verduisterende plisségordijnen 2019;
-Vrije ligging aan een speelplantsoen.