Dé woning waar het voelt als thuiskomen........
Jij kunt de trotse bewoner worden van deze ruime sfeervolle woning met vier slaapkamers, complete keuken mét koffiemachine, een eigentijdse badkamer (2018) met dubbele wastafel om de verkeersdrukte in de ochtend te ontwijken, kunststof kozijnen & Pui (HR++ glas), een veranda in de achtertuin...en nog veel meer.
Welgelegen is een ruim opgezette wijk en heeft een gunstige ligging ten opzichte van winkels, sportfaciliteiten, scholen, restaurants, alles is op 5 fietsminuten bereikbaar. Nieuw-Vennep heeft een gunstige ligging ten opzichte van de uitvalswegen richting Haarlem, Schiphol, Amsterdam, Schiphol en Den Haag.
Indeling:
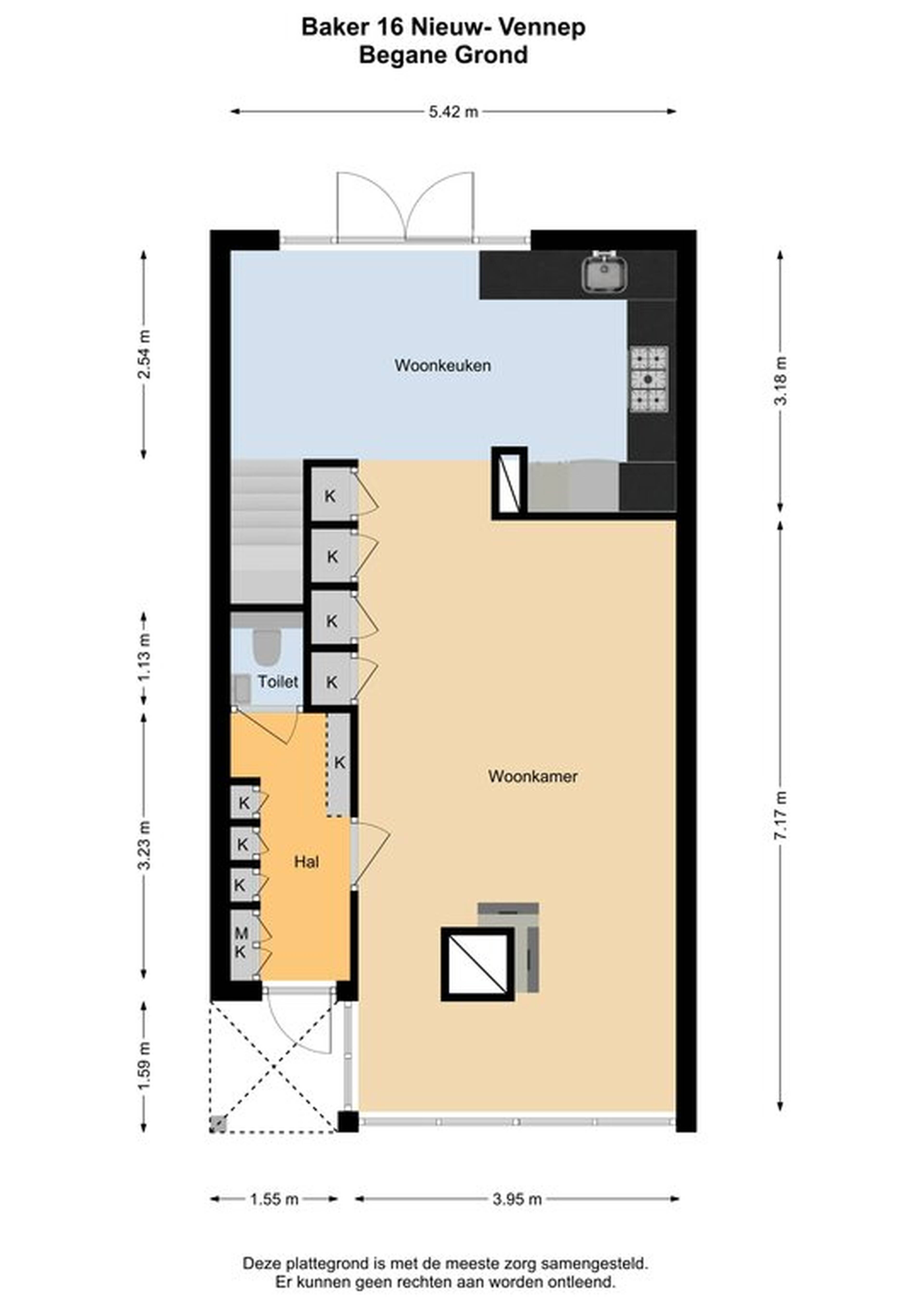
Begane grond:
Links in de hal is de meterkast en een opbergkast, aan de rechterkant tref je een grote kast aan waar je met gemak al je schoenen in kwijt kunt en achterin de gang bevindt zich het moderne wandcloset met hardstenen fonteintje. De woonkamer is vergroot aan de voorzijde doordat de voormalige serre bij de woning is betrokken. Zowel in de woonkamer als in de eigentijdse keuken is de vloer voorzien van eikenhouten kasteelplanken. In de woonkamer zijn, naast de televisie, een viertal inbouwkasten op maat gemaakt, zeer praktisch om al je spullen in op te bergen. De keuken (2010) betreft een U- opstelling in een moderne champagne parelmoer uitvoering met composiet blad en voorzien van alle benodigde inbouwapparatuur van Siemens: een 5-pits gasfornuis, een vaatwasser, afzuigkap, koelkast vriezer, combi-oven en koffiemachine.
Eerste verdieping: Vanaf de overloop zijn drie slaapkamers en de badkamer te bereiken. Aan de voorzijde zijn twee slaapkamers, de masterbedroom en een kinderkamer en aan de achterzijde is de derde slaapkamer, thans in gebruik als werkkamer. Op alle slaapkamers ligt een nette laminaatvloer. De moderne badkamer (2018) is ingedeeld met een ruime inloopdouche, tweede toilet en een wastafelmeubel met twee wastafels met bergruimte en een opbergkast. Ook op de overloop onder de trap is opberguimte. Tweede verdieping: Vanaf de overloop, waar een airconditioning (2009) is bevestigd is er een ruime slaapkamer en een ruimte voor de heteluchtverwarming en een wasruimte voor de wasmachine en droger. Er is tevens een kleine ingebouwde opbergkast. Deze verdieping is voorzien van een laminaatvloer.
Exterieur: De woning heeft een leuke voortuin waar je volop van de zon kunt genieten. De fraaie aangelegde achtertuin met stenen berging heeft een doorgang naar het achtergelegen parkeerterrein. Achterin de tuin bevindt zich een heerlijke veranda waar u kunt genieten van de zon.
Bijzonderheden:
- Bouwjaar 1985
- Gebruiksoppervlakte ca. 120m2
- Perceeloppervlakte 164m2 - Inhoud 389m3 - Heteluchtverwarming Brinks;
- Kunststof kozijnen voorzien van draai-/kiepramen en HR++ glas met horren 2017;
- Volledig voorzien van kunststof kozijnen & pui (HR++ glas - 2017-2020)
- Dakbedekking bovenste verdieping vernieuwd in 2016
RE/MAX Uw Makelaar houdt zich aan de richtlijnen van het RIVM en de Rijksoverheid, voor meer informatie verwijzen wij u graag naar onze website.