Het is altijd lente in jouw ogen als je eigenaar wordt van dit splitlevel herenhuis aan het Lentepark. De speelse indeling, grote ramen en parkeergelegenheid op eigen terrein zijn slechts enkele facetten die deze woning tot een topwoning maken. De moderne architectuur met Romeinse kenmerken maakt je nieuwsgierig… wat gaat er verscholen achter de imposante gevel? Het terras op het zuidwesten, de achtertuin op de begane grond, de eetkeuken met hoog plafond en de splitlevel woonkamer veroveren je hart…
De voorzijde grenst aan het groene Lentepark en aan de achterzijde grenst het perceel aan de straat Goudensteinpark. Vlak om de hoek is een speeltuin voor de kinderen en op korte afstand zijn voorzieningen zoals winkelcentrum ‘Getsewoud’, diverse basisscholen, middelbare scholen, sportfaciliteiten en openbaar vervoer (R-net). Nieuw-Vennep heeft een gunstige ligging ten opzichte van de uitvalswegen richting Schiphol, Haarlem, Amsterdam en Den Haag. Met de trein vertrek je vanaf station Nieuw-Vennep richting Amsterdam, Leiden, Den Haag en Schiphol.
Bekijk onze bezichtigingsvideo!
Indeling:
Begane grond:
Via het autovrije Lentepark kom je bij de overdekte entree van dit stijlvol, speels ingedeeld herenhuis. In de hal merk je direct dat ruimte in de woning ruimschoots aanwezig is. Aan de rechterzijde zijn de garderobenis, meterkast en de toiletruimte met fonteintje. Het hardhouten trappenhuis vormt de verbinding met de bovengelegen verdiepingen en op de begane grond ligt een mooie plavuizen vloer met vloerverwarming.
Aan de achterzijde is de eetkamer met keuken, een fantastische ruimte met een plafond tot 4 meter hoog, grote ramen en openslaande deuren naar de tuin. De hoogglans Siematic keuken is van hoge kwaliteit en heeft alle benodigde inbouwapparatuur: een 5-pits gasfornuis met grote oven, een afzuigkap, vaatwasser, combioven, heteluchtoven en een grote koel-/vriescombinatie. De eetkeuken biedt ruimte aan een grote eettafel om met vrienden en familie te genieten van een heerlijk diner.
De bijkeuken is een multifunctionele ruimte; hier heb je veel bergruimte in de wandrekken, er zijn aansluitingen voor de wasmachine en droger en er is een werk-/studeerplek bij het raam gemaakt.
Daarnaast is de gehele woning voorzien van een draadloos alarmsysteem.
Eerste verdieping:
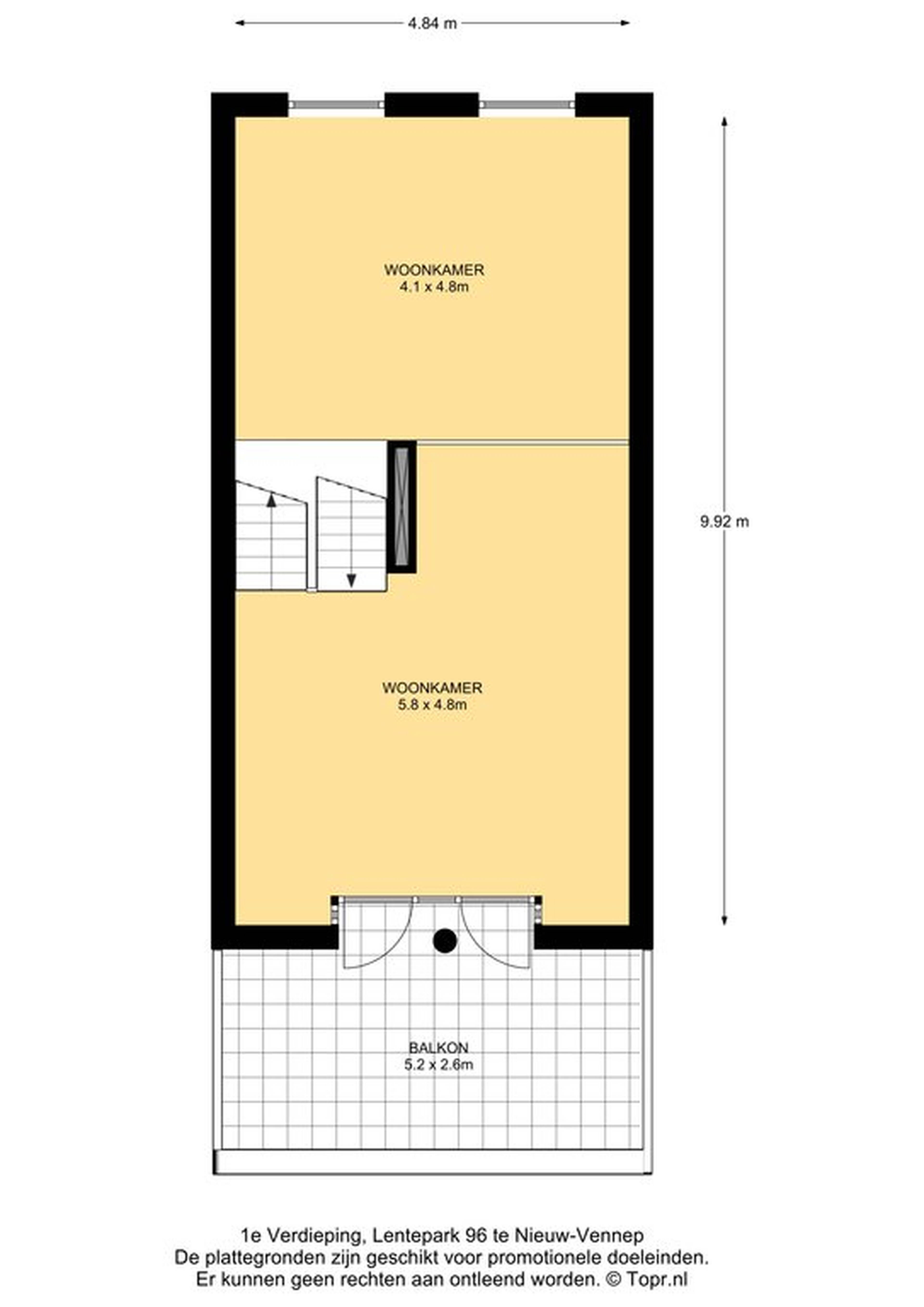
Zoek je een speels ingedeelde woonkamer met veel lichtinval en hoge plafonds? Dan is de woonkamer aan het Lentepark perfect voor jou.
Aan de voorzijde is de ruime zitkamer met een hoog plafond, grote ramen en openslaande deuren naar het terras aan de zuidwestzijde. In deze kamer geniet je volop van de zon en het uitzicht op het Lentepark. Bij de draaitafel is een raam die uitzicht biedt op de keuken en de achtertuin; het zijn speelse elementen die dit type woning erg geliefd maken.
Aan de achterzijde is de tweede woonkamer waar nu naar muziek wordt geluisterd én gespeeld. Door de grote ramen kijk je de achterliggende straten Goudensteinpark en Gunterstein in; het uitzicht geeft een gevoel van vrijheid. In zowel de muziekkamer als de zitkamer ligt een mooie laminaatvloer.
Tweede verdieping:
Volg de hardhouten bordestrap naar de tweede verdieping, verdeeld in een overloop, drie slaapkamers en de badkamer. Vanuit de masterbedroom aan de voorzijde kijk je uit op het Lentepark en aan de achterzijde zijn twee mooie kinder-/werkkamers. Op zowel de overloop als de slaapkamers ligt een laminaatvloer en krijg je een ‘thuisgevoel’.
De moderne badkamer is ingedeeld met een ligbad, wandradiator, een wastafel met spiegelkast, tweede toilet en een douche. De donkere vloertegels vormen een mooie combinatie met de lichte wandtegels en het moderne sanitair.
Bergzolder:
Via de vlizotrap op de overloop is de bergzolder, welke voorzien is van een laminaatvloer, te bereiken met een nokhoogte van 1,50 meter.
Exterieur:
Vanuit de woonkamer is het terras aan de zuidwestzijde te bereiken waar je volop geniet van de zon en het uitzicht op het Lentepark. Openslaande deuren in de eetkeuken geven toegang tot de onderhoudsvriendelijke achtertuin waar je geniet van de zon en tevens van de verkoelende schaduw tijdens een warme zomerdag. De achtertuin staat in verbinding met de stenen berging en de oprit. Qua ruimte is het mogelijk om de berging te verbouwen tot garage voor een motor, er zijn al woningen in de rij die een sectionaalpoort hebben geplaatst.
Bijzonderheden:
-Hardhouten kozijnen met HR glas;
-Uitstekende isolatie van de begane grondvloer, spouwmuren en het koepelvormige dak van zink;
-Energielabel A;
-Verwarming en warm water via een Agpo Ferroli cv-ketel 2015;
-Eigen parkeerplaats aan de achterzijde;
-Stenen berging met mogelijkheid voor een garage voor een motor.