Algemeen
Prijs
€ 325.000 k.k.
Bouwtype
bestaande bouw
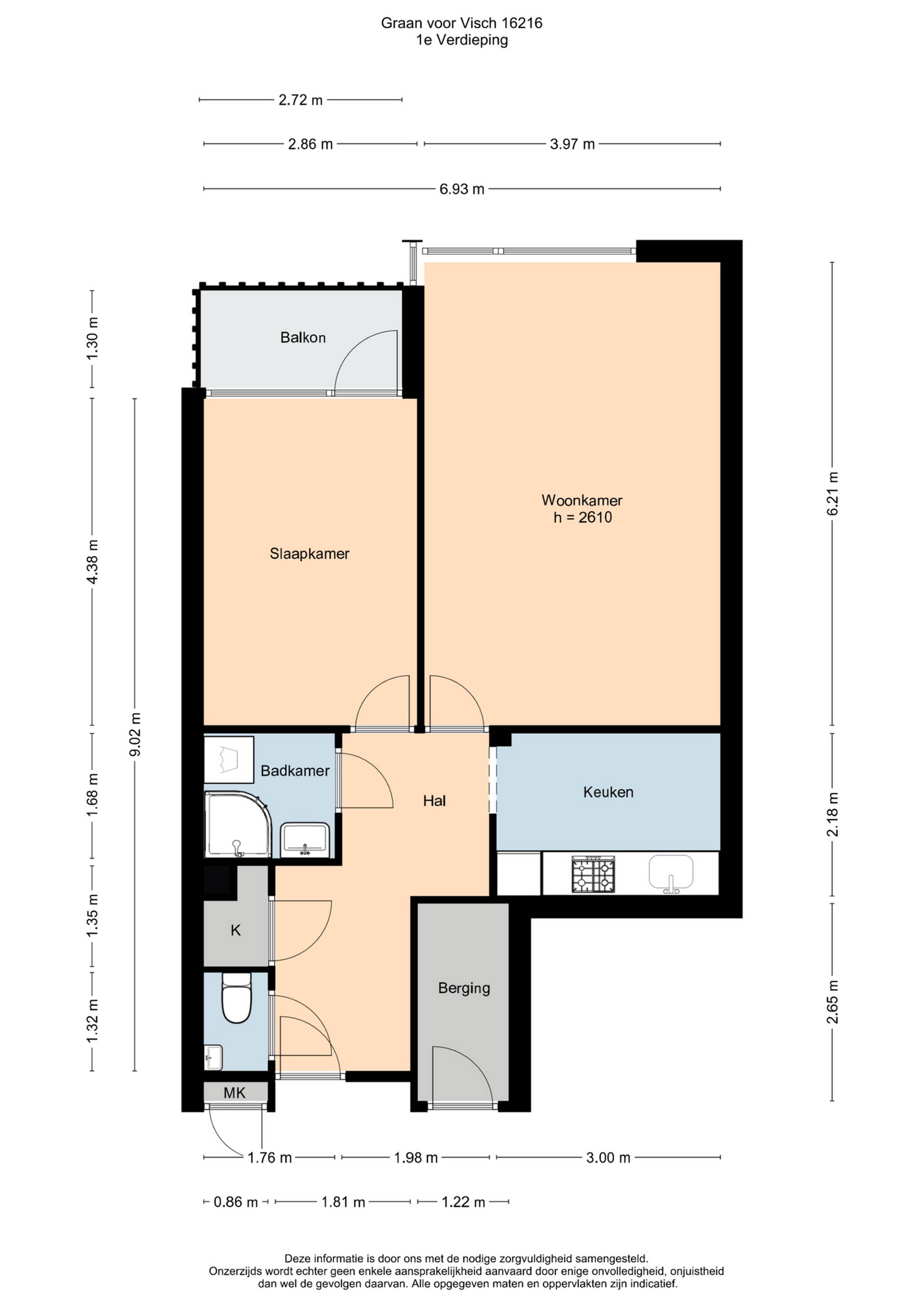
Woonoppervlakte
60 m2
Aantal kamers
2
Aantal slaapkamers
1
Aantal badkamers
1
Omschrijving
Kenmerken
Adres
Graan voor Visch 16216
2132 XK HOOFDDORP
2132 XK HOOFDDORP
Prijs
Soort
Prijs
€ 325.000 k.k.
Aanvaarding
in overleg
Aangeboden sinds
5 December 2025
Details
Type object
appartement/portiekwoning
Bouwtype
bestaande bouw
Bouwjaar
1975
Woonoppervlakte
60 m2
Gebouwgebonden buitenruimte
4 m2
Inhoud
205 m3
Open portiek
nee
In aanbouw
nee
Ligging
aan water, in woonwijk, open ligging
Soort verwarming
cv ketel
Warmwaterinstallatie
cv ketel
Dakmateriaal
bitumineuze dakbedekking
Voorzieningen
mechanische ventilatie, tv kabel, lift, natuurlijke ventilatie
Indeling
Aantal kamers
2
Aantal slaapkamers
1
Aantal badkamers
1
Typewoonkamer
woonkamer
Keukensoort
half open keuken
Tuin
Aanwezig?
nee
Garage
Aanwezig?
nee
Bergruimte
Voorzieningen
voorzien van elektra
VVE
Ingeschreven in Kamer van Koophandel
ja
Actief
ja
Reservefonds
ja
Onderhoudsplan
ja
Opstalverzekering
ja
Periodieke bijdrage
€ 350
Energielabel
Aanwezig?
ja
Klasse
C
Interesse? Maak een afspraak!
Daniëlle Damstra
Plan zelf online een bezichtiging in via de onderstaande button:








