OPEN HUIS 17-01-2026 10:00 - 12:00
Welkom op de Weeterbos 92.
Op een rustige, maar toch centraal gelegen locatie staat deze tussenwoning in de kindvriendelijke wijk Overbos. De woning biedt een lichte woonkamer, drie slaapkamers, een praktische zolderverdieping en een diepe achtertuin die in 2023 is vernieuwd. Een verzorgde woning op een praktische en prettig gelegen locatie.
Ligging
De woning ligt in de wijk Overbos, op loopafstand van winkelcentrum ’t Paradijs. Hier vind je diverse supermarkten en winkels, waaronder een bakker, een bloemenwinkel en een slager. Op steenworp afstand zijn er verschillende basisscholen zoals een openbare en internationale school en is er een dag- en naschoolse kinderopvang. Voor recreatie zijn het Haarlemmermeerse Bos, de Toolenburgerplas en Sportcomplex Koning Willem-Alexander snel bereikbaar.
Door de ligging nabij de N201 en N205 zijn de snelwegen richting Haarlem, Schiphol en Amsterdam goed bereikbaar. Openbaar vervoer is eveneens goed geregeld met een bushalte op loopafstand.
Begane grond
Via de ruime voortuin bereik je de entree met meterkast. Vanuit de hal kom je in de lichte woonkamer van ca. 29 m², met een praktische indeling en voldoende ruimte voor zowel een zithoek als een eethoek. Onder de trap bevindt zich een handige trapkast. De begane grond is voorzien van een laminaatvloer.
Aan de tuinzijde ligt de open keuken in U-opstelling, uitgerust met diverse inbouwapparatuur: een gaskookplaat, afzuigkap, oven, combimagnetron, koel-/vriescombinatie en vaatwasser op werkhoogte.
Via een deur in de woonkamer kom je in de tweede hal met het toilet, de deur naar de achtertuin en de trap naar de eerste verdieping.
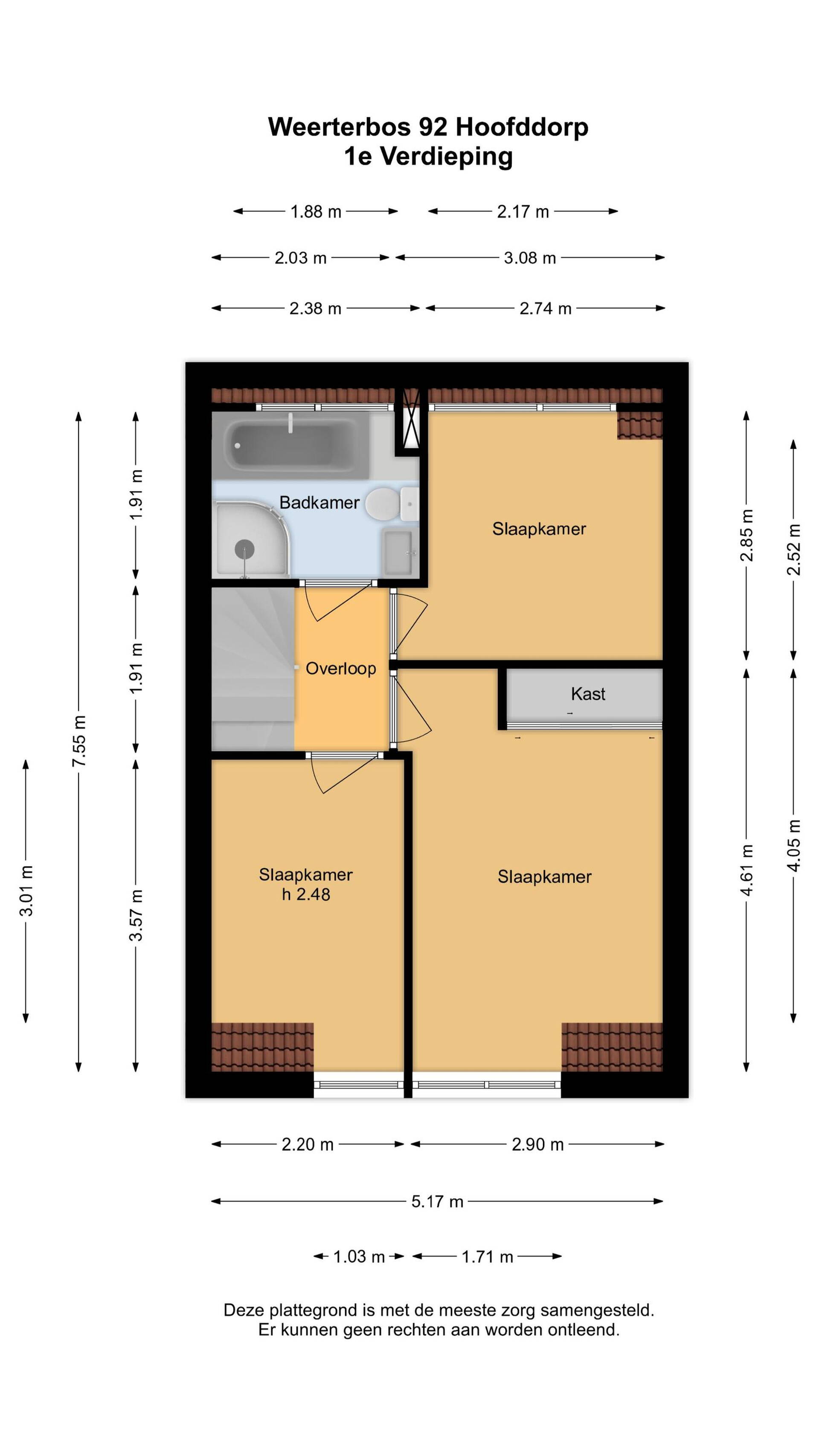
Eerste verdieping
Vanaf de overloop zijn drie slaapkamers en de badkamer bereikbaar. Aan zowel de voor- als achterzijde zijn dakkapellen geplaatst, waardoor de slaapkamers licht en functioneel zijn. Alle kamers zijn voorzien van een laminaatvloer.
De badkamer is compleet ingericht met een douchehoek, wastafelmeubel, ligbad en een tweede toilet.
Tweede verdieping
Via een vaste trap bereik je de tweede verdieping. Hier bevindt zich een ruime zolder met een kastenwand over de gehele lengte. Deze verdieping is momenteel in gebruik als werkplek en biedt tevens plaats aan de cv-ketel, wasmachine en droger. Ook deze verdieping is voorzien van een laminaatvloer.
Tuin
De ruim 10 meter diepe achtertuin is in 2023 vernieuwd en ligt op het noorden. De tuin is onderhoudsvriendelijk aangelegd, biedt veel privacy en beschikt over een achterom en een ruime berging. Aan de voorzijde bevindt zich eveneens een goed bemeten voortuin.
Parkeren
In de directe omgeving is voldoende openbare parkeergelegenheid aanwezig.
Bijzonderheden
• Kindvriendelijke en centrale ligging
• Bouwjaar 1986
• Woonoppervlakte 87 m²
• Perceeloppervlakte 140 m²
• Lichte woonkamer met open keuken
• Drie slaapkamers
• Dakkapellen aan voor- en achterzijde
• Ruime voor- en achtertuin, achtertuin vernieuwd in 2023
• Cv-ketel uit 2005
• Energielabel B
• Oplevering in overleg
Ben je enthousiast geworden en wil je deze woning graag bezichtigen?
Neem dan contact met ons op via het contactformulier, telefonisch via 023 – 210 07 00, of per e-mail op uwmakelaar@ remax.nl.
Wij plannen graag een bezichtiging met je in!