Algemeen
Prijs
€ 550.000 k.k.
Bouwtype
bestaande bouw
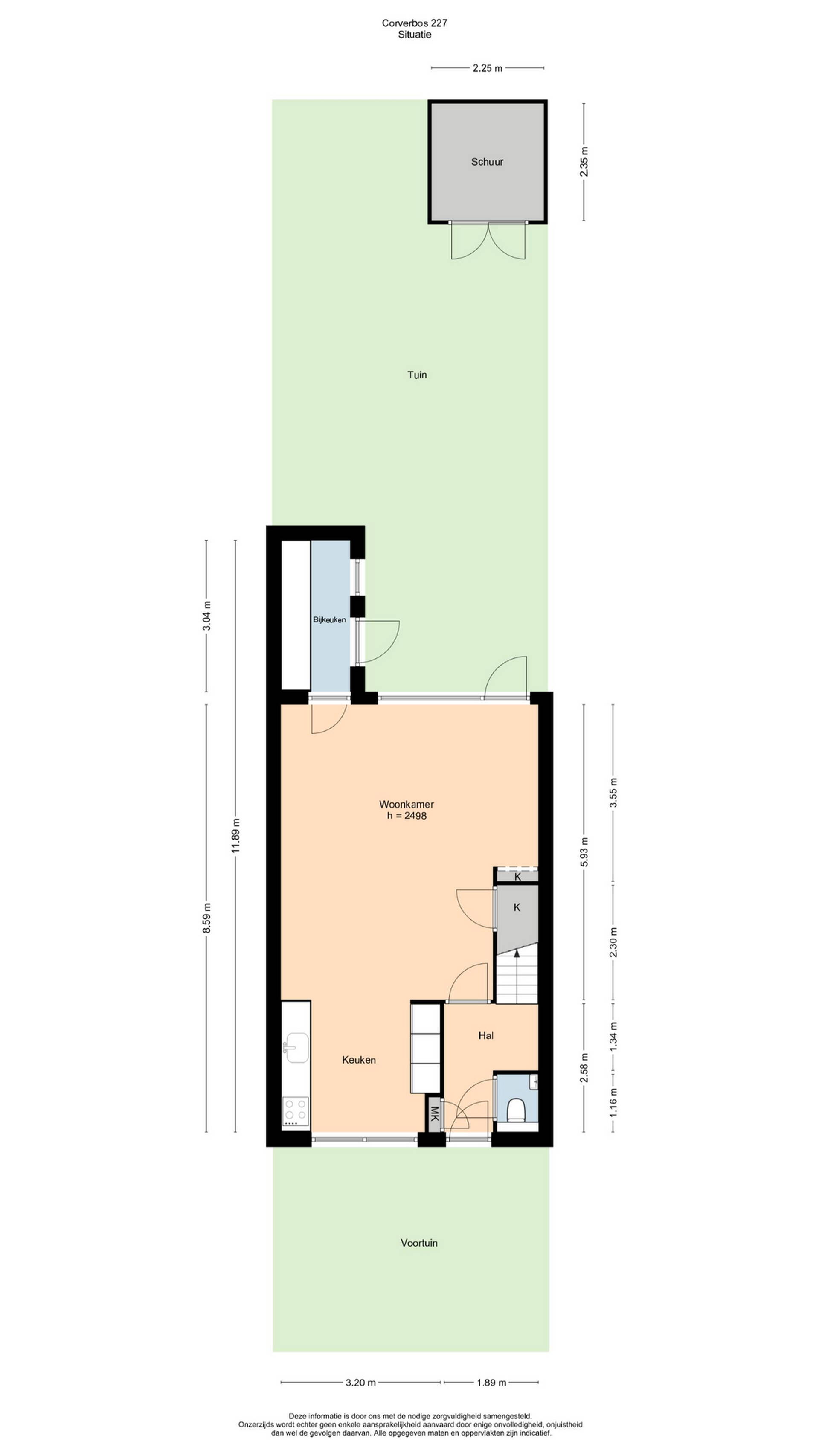
Woonoppervlakte
98 m2
Perceeloppervlakte
137 m2
Aantal kamers
5
Aantal slaapkamers
4
Aantal badkamers
1
Omschrijving
Kenmerken
Adres
Corversbos 227
2134 MG HOOFDDORP
2134 MG HOOFDDORP
Prijs
Soort
Prijs
€ 550.000 k.k.
Aanvaarding
in overleg
Aangeboden sinds
28 Oktober 2025
Details
Type object
woonhuis
Soort object
eengezinswoning
Bouwtype
bestaande bouw
Bouwjaar
1983
Woonoppervlakte
98 m2
Perceeloppervlakte
137 m2
Externe bergruimte
5 m2
Inhoud
349 m3
Open portiek
nee
In aanbouw
nee
Ligging
in woonwijk, beschutte ligging
Soort verwarming
cv ketel, vloerverwarming gedeeltelijk
Warmwaterinstallatie
cv ketel
Isolatievormen
dakisolatie, muurisolatie, vloerisolatie, dubbel glas
Dakmateriaal
pannen
Voorzieningen
mechanische ventilatie, tv kabel, buitenzonwering, dakraam, glasvezel kabel, zonnepanelen, natuurlijke ventilatie
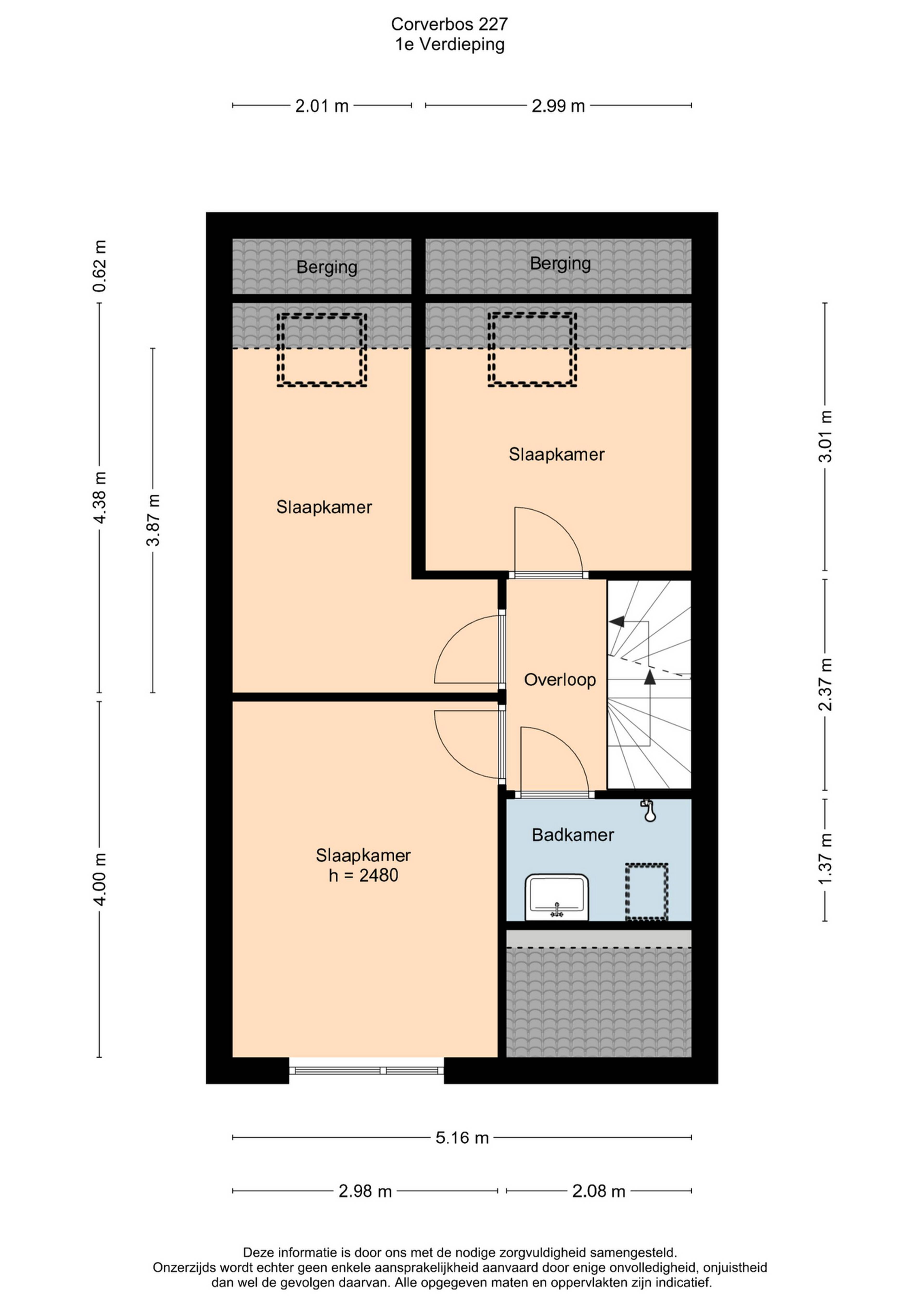
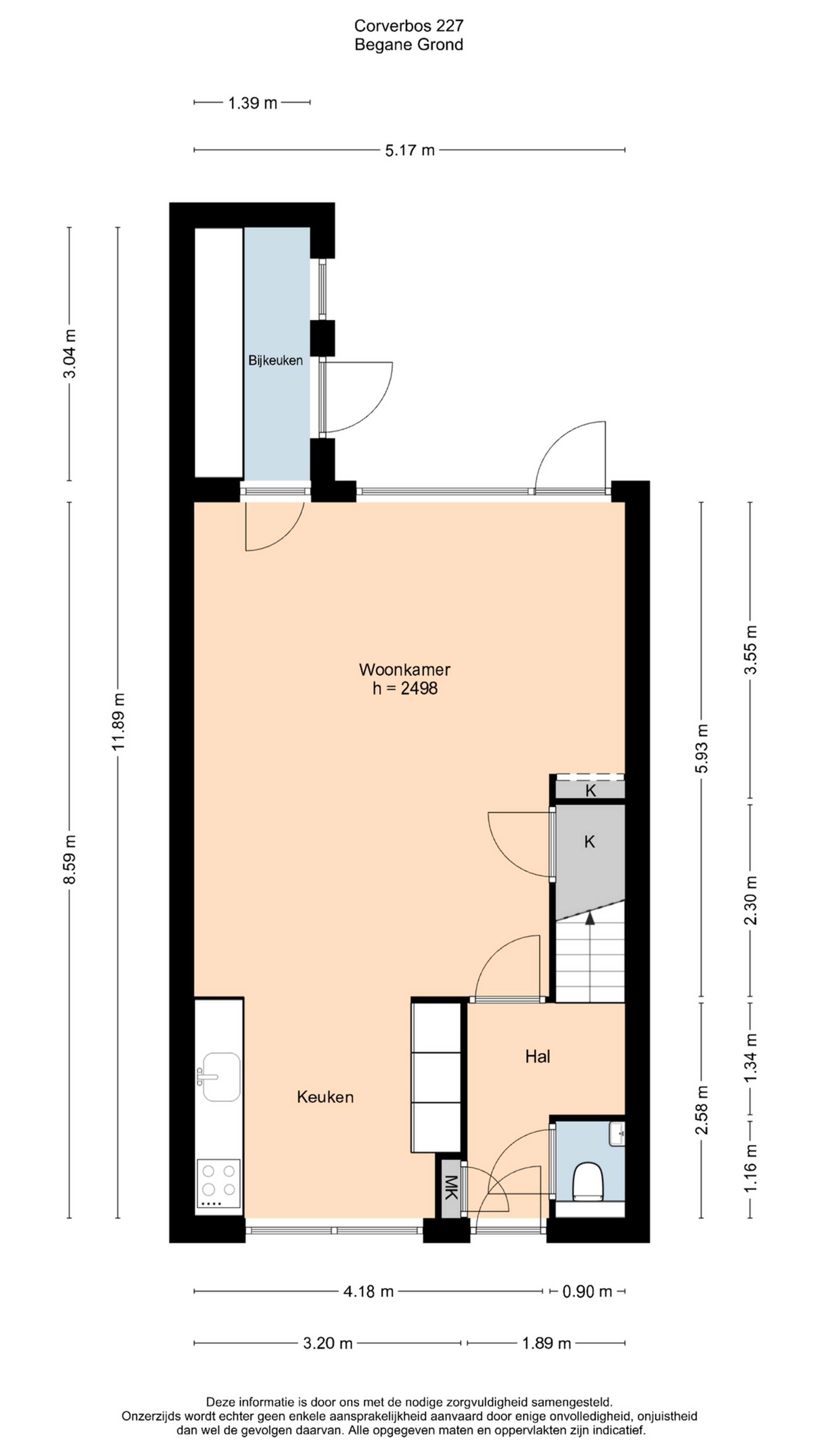
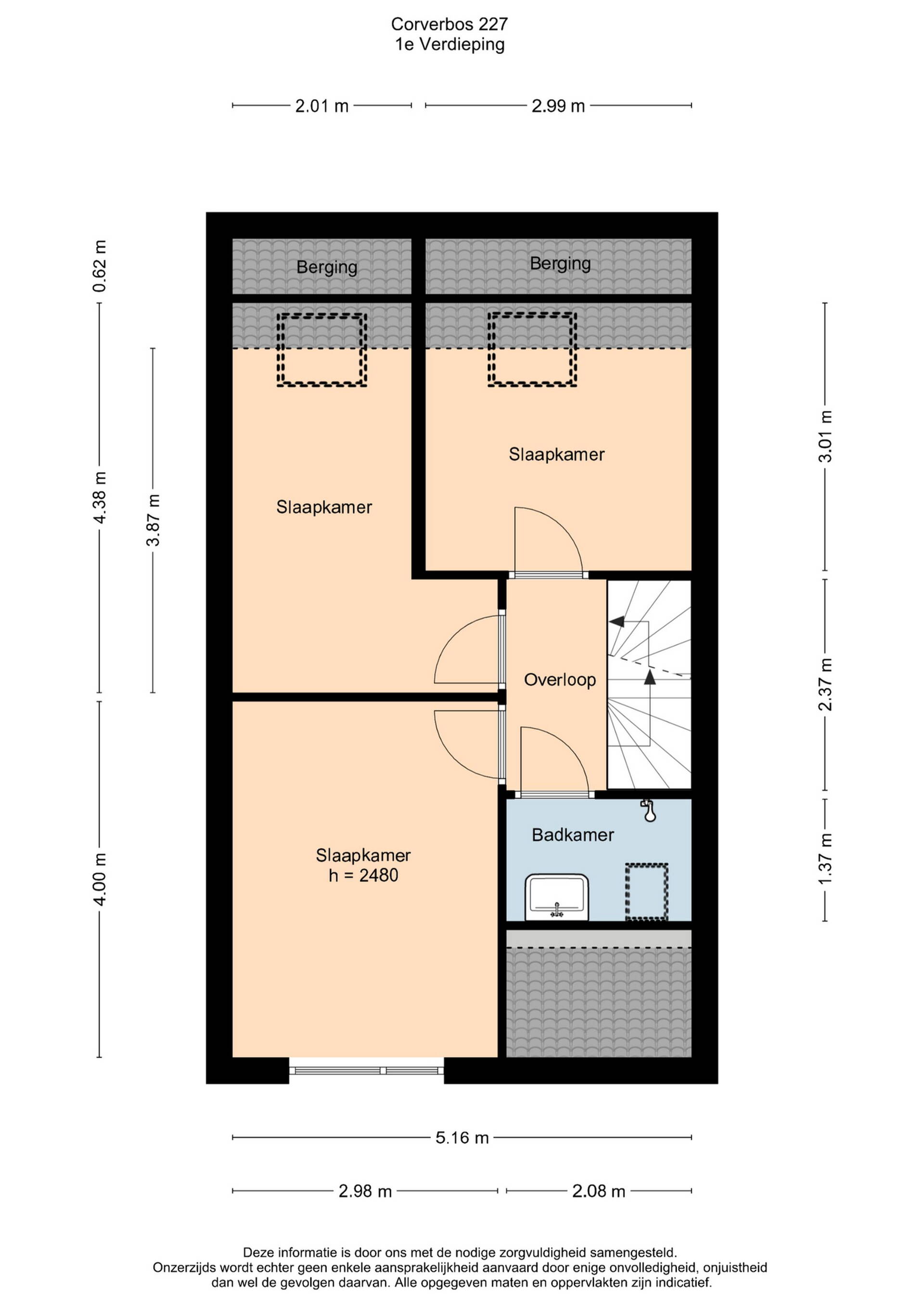
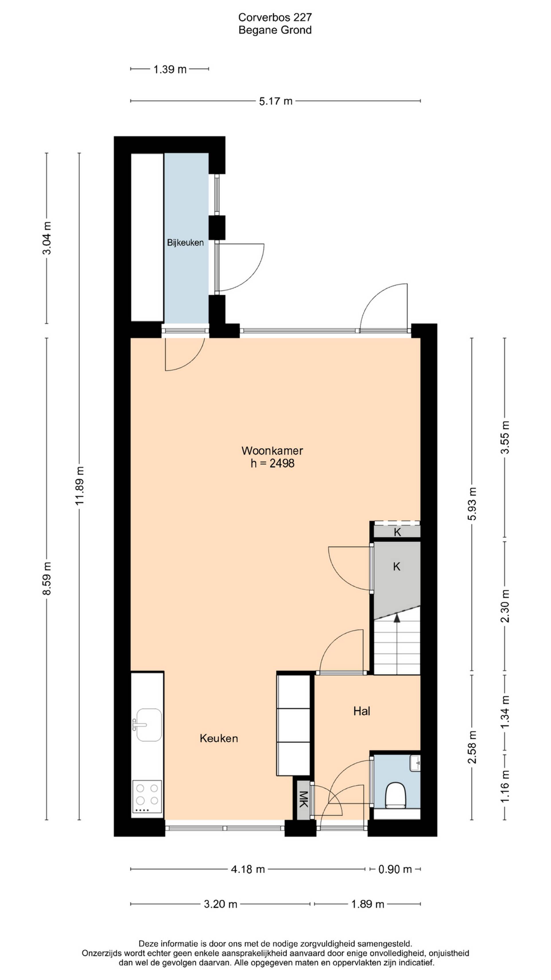
Indeling
Aantal kamers
5
Aantal slaapkamers
4
Aantal badkamers
1
Typewoonkamer
woonkamer
Keukensoort
open keuken, inbouwapparatuur
Tuin
Aanwezig?
ja
Tot. oppervlakte
70 m2
Tuin
achtertuin, voortuin
Oppervlakte
54 m2
Diepte
0,11 m
Breedte
0,05 m
Ligging
zuidwest
Bereikbaar via achterom?
nee
Garage
Aanwezig?
nee
Bergruimte
Schuur/berging?
vrijstaand hout
Voorzieningen
voorzien van elektra
Isolatievormen
geen isolatie
Energielabel
Aanwezig?
ja
Klasse
A
Uw makelaar
Daniëlle Damstra
Geïnteresseerd in deze woning? Vul dit formulier in voor een bezichtiging van deze woning of voor meer informatie. Dan nemen wij zo snel mogelijk contact met u op.

















