Dit mooie maisonnette appartement van 99 m² ligt op de vierde verdieping en heeft een Frans balkon met vrij uitzicht!
Dit appartement is gelegen in de wijk Floriande West. Op een paar minuten lopen vindt u de bushalte van R-net met verbindingen richting Amsterdam, Haarlem en Schiphol. Met de auto bent u snel bij de uitvalswegen. Voor uw dagelijkse boodschappen kunt u terecht bij winkelcentrum ’t Paradijs in de wijk Overbos en winkelcentrum Floriande. Recreatiegebied het Haarlemmermeerse bos bevindt zich op steenworp afstand en is een mooie plek voor een wandeling of hardlooptraining. Binnen een kwartier fietsen bent u in het centrum van Hoofddorp. Naast het gebouw is voldoende parkeerruimte waar u met een vergunning tegen lage kosten kunt parkeren.
Indeling:
Begane grond:
Gezamenlijke entree met een videofoon en brievenbus opstelling. Tevens bevindt zich hier het trappenhuis en de lift naar de bovengelegen verdiepingen. Op de begane grond heeft u de beschikking over een eigen berging voor de fiets en andere spullen. Rondom het gebouw is veel groen en water kenmerkend voor de wijk Floriande.
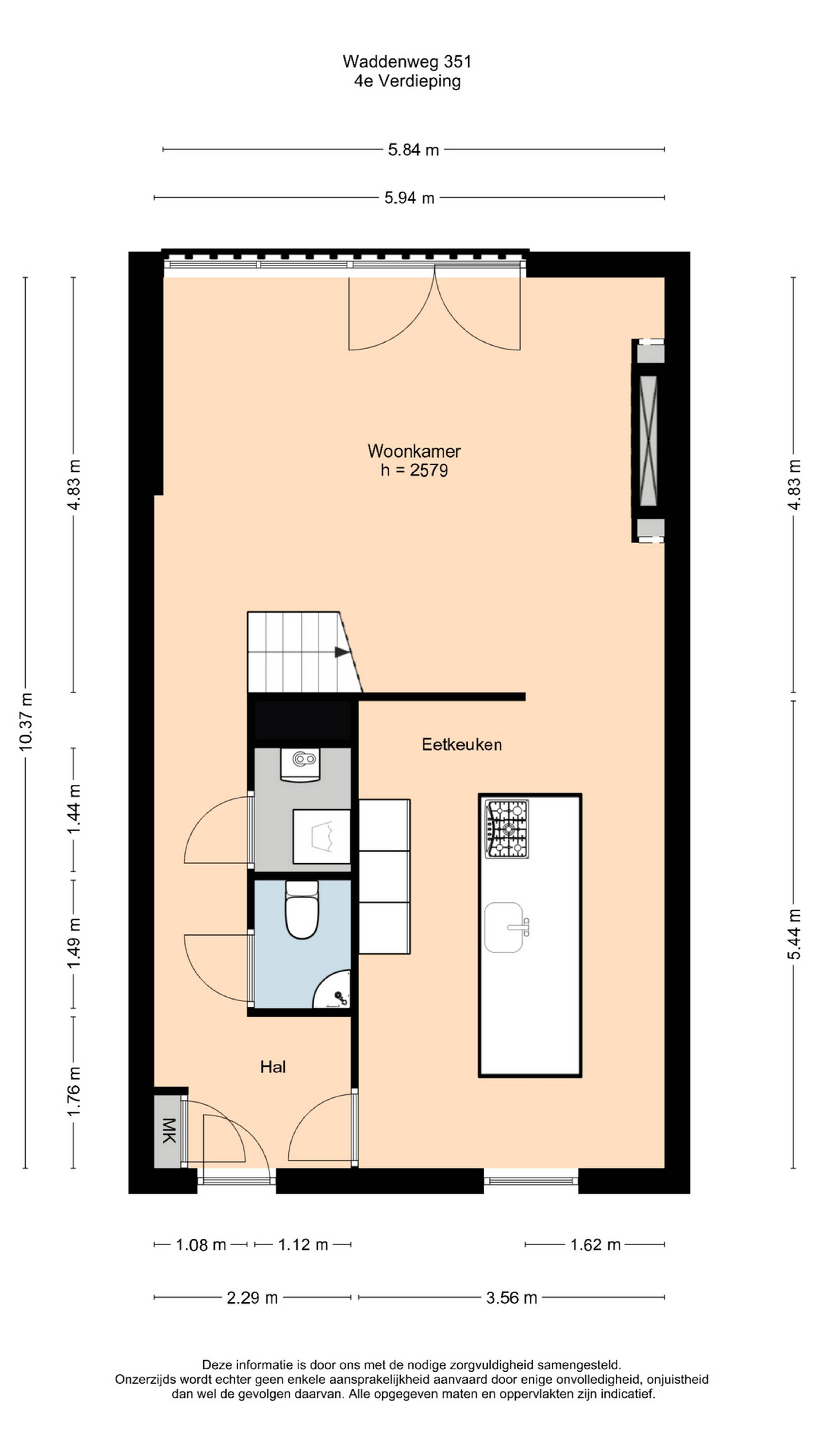
Vierde verdieping:
Bij binnenkomst kom je in de hal, waar zich het toilet, de garderobe, het washok en de technische ruimte bevinden. Loop je vanuit de hal door naar de woonkamer. De lichte en sfeervolle woonkamer met Frans balkon biedt een vrij uitzicht over het omliggende groen en de lage bebouwing. De nette open keuken sluit mooi aan op de woonruimte en bevindt zich aan de voorzijde van de woning.
De royale keuken is uitgerust met een kookeiland en een praktische wandopstelling met veel bergruimte. Daarnaast is de keuken voorzien van diverse inbouwapparatuur, waaronder een vaatwasser, combi oven, koel-vriescombinatie, 4-pits gaskookplaat met wokbrander, afzuigkap en voldoende kastruimte.
Vijfde verdieping:
Op deze verdieping bevinden zich de ruime slaapkamer en de badkamer. De badkamer is voorzien van een toilet, wastafel met spiegel en een douchecabine. De slaapkamer beschikt over een extra ruimte die ideaal is voor extra opbergruimte, een make-uptafel of een studeer of werkplek. Daarnaast is er onder het schuine dak een verrassend ruime berging aanwezig.
Frans balkon:
Het Franse balkon is gelegen op het zuidwesten. Op zonnige dagen kun je de openslaande deuren wijd openen en genieten van een heerlijk buitengevoel met een prachtig, vrij uitzicht.
Bijzonderheden:
- Maisonnette appartement, gelegen op de vierde tevens bovenste verdieping;
- Bouwjaar: 2011;
- Woonoppervlakte ca. 99 m²;
- Volledig geïsoleerd;
- 1 slaapkamer;
- Servicekosten € 167,70 + € 20,- voorschot water;
- Frans balkon gelegen op het zuidwesten;
- Eigen berging op de begane grond;
- Parkeervergunning € 60,- per jaar met recht op een eventuele tweede plek.
- Energielabel A;
- Goede bereikbaarheid van voorzieningen en uitvalswegen;
- Nabij het Haarlemmermeerse Bos;
- Oplevering in overleg.
Wil jij deze woning komen bezichtigen?
Neem contact met ons op via het contactformulier, telefonisch op 023-2100 703, of via fleurvandervegt@ remax.nl. Wij nemen zo snel mogelijk contact met je op.