INSTAPKLAAR EN HELEMAAL AF- DEZE WONING WIL JE NIET MISSEN
Welkom op de Maria Rutgerslaan 33. Deze prachtige tussenwoning is instapklaar, verrassend ruim en met veel aandacht afgewerkt. Met een lichte woonkamer, open keuken, vier slaapkamers en een fraaie badkamer biedt dit huis alles wat je nodig hebt om comfortabel te wonen.
De ligging is ideaal: in de nabijheid van de Toolenburgerplas en op loopafstand van scholen, een winkelcentrum en het openbaar vervoer. Het centrum van Hoofddorp is binnen 10 minuten fietsen te bereiken, en diverse snelwegen richting Amsterdam, Haarlem, Leiden en Den Haag zijn eenvoudig aan te rijden. Dit alles maakt de Maria Rutgerslaan 33 een bijzonder aantrekkelijke plek om te wonen.
Indeling:
Begane grond:
Bij binnenkomst via de voortuin word je in de hal verwelkomd door een prettige sfeer en een verzorgde afwerking. Hier bevinden zich de meterkast, de toiletruimte met fontein, een bergkast, de trapopgang en de toegang tot de woonkamer.
De tuingerichte en uitgebouwde woonkamer is voorzien van een laminaatvloer in lichte kleurstelling en behaaglijke vloerverwarming. De muren zijn strak gestuct in neutrale tinten en de grote raampartijen zorgen voor veel natuurlijk licht. De indeling is praktisch, met voldoende ruimte voor een royale zithoek en een eethoek. De schuifpui aan de achterzijde zorgt voor een mooie verbinding met de tuin – ideaal tijdens zomerse dagen wanneer binnen en buiten in elkaar overlopen.
Aan de voorzijde bevindt zich de open keuken in hoekopstelling, voorzien van diverse inbouwapparatuur, waaronder een gaskookplaat, afzuigkap, oven, combimagnetron, koel-vriescombinatie en vaatwasser. Een fijne plek voor wie graag kookt en toch in contact wil blijven met de rest van het gezin of gasten.
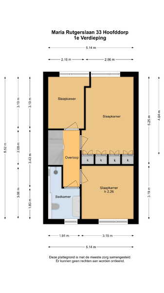
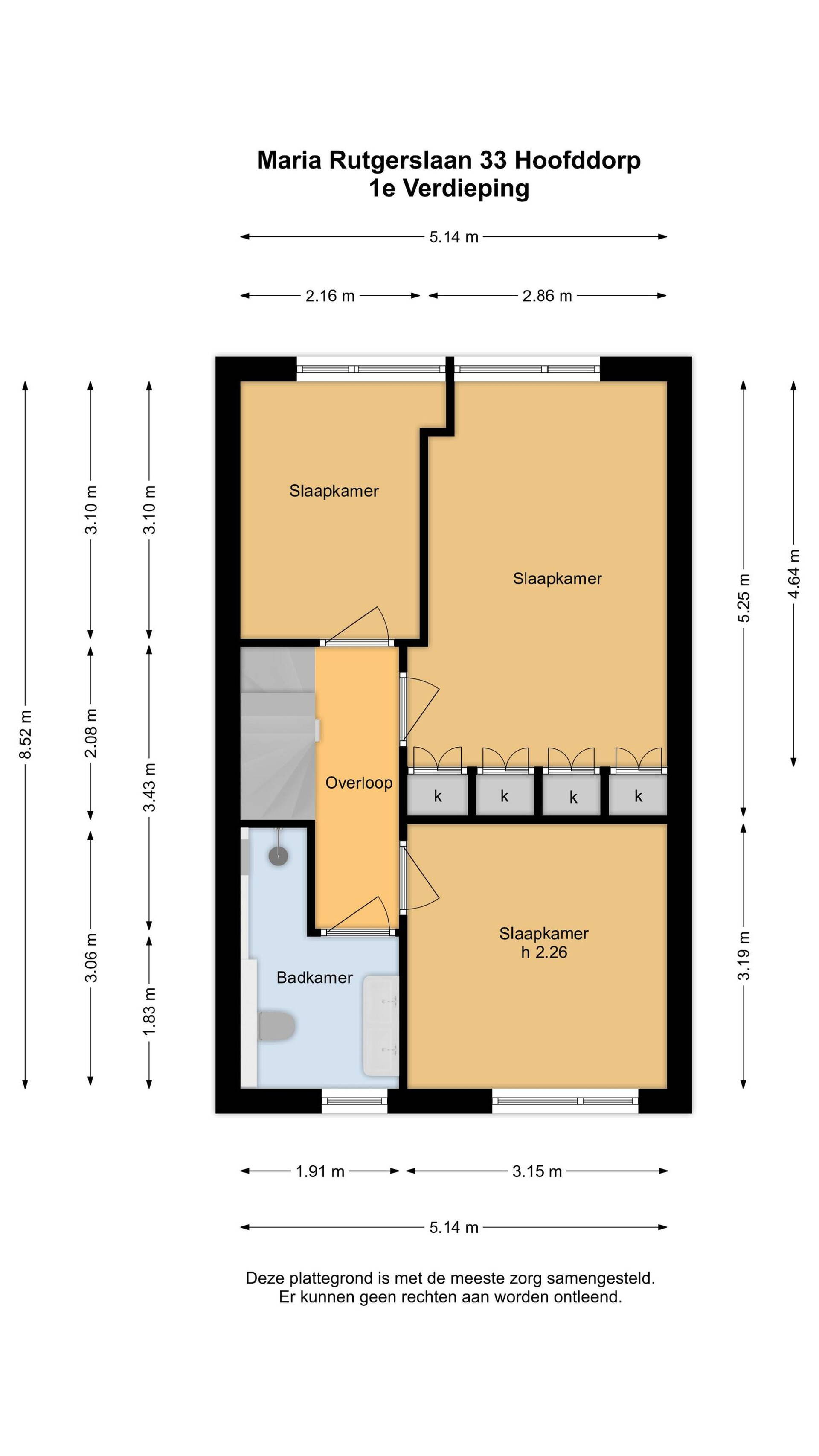
Eerste verdieping
Ook de eerste verdieping is smaakvol afgewerkt. Via de overloop zijn drie slaapkamers en de badkamer bereikbaar. De kamers zijn voorzien van een laminaatvloer en gestucte wanden, wat zorgt voor een rustige en verzorgde uitstraling.
De moderne badkamer is uitgerust met een inloopdouche, wastafelmeubel en een tweede toilet. De lichte kleurstelling en strakke afwerking maken het een frisse en eigentijdse ruimte.
Tweede verdieping
Via een vaste trap bereik je de tweede verdieping, waar zich een ruime zolder bevindt met volop mogelijkheden. Deze ruimte is ideaal als vierde slaapkamer, werkkamer of hobbyruimte. Daarnaast is er ruimte voor de wasmachine en droger. Een praktische en flexibele verdieping die je eenvoudig kunt aanpassen aan je eigen wensen.
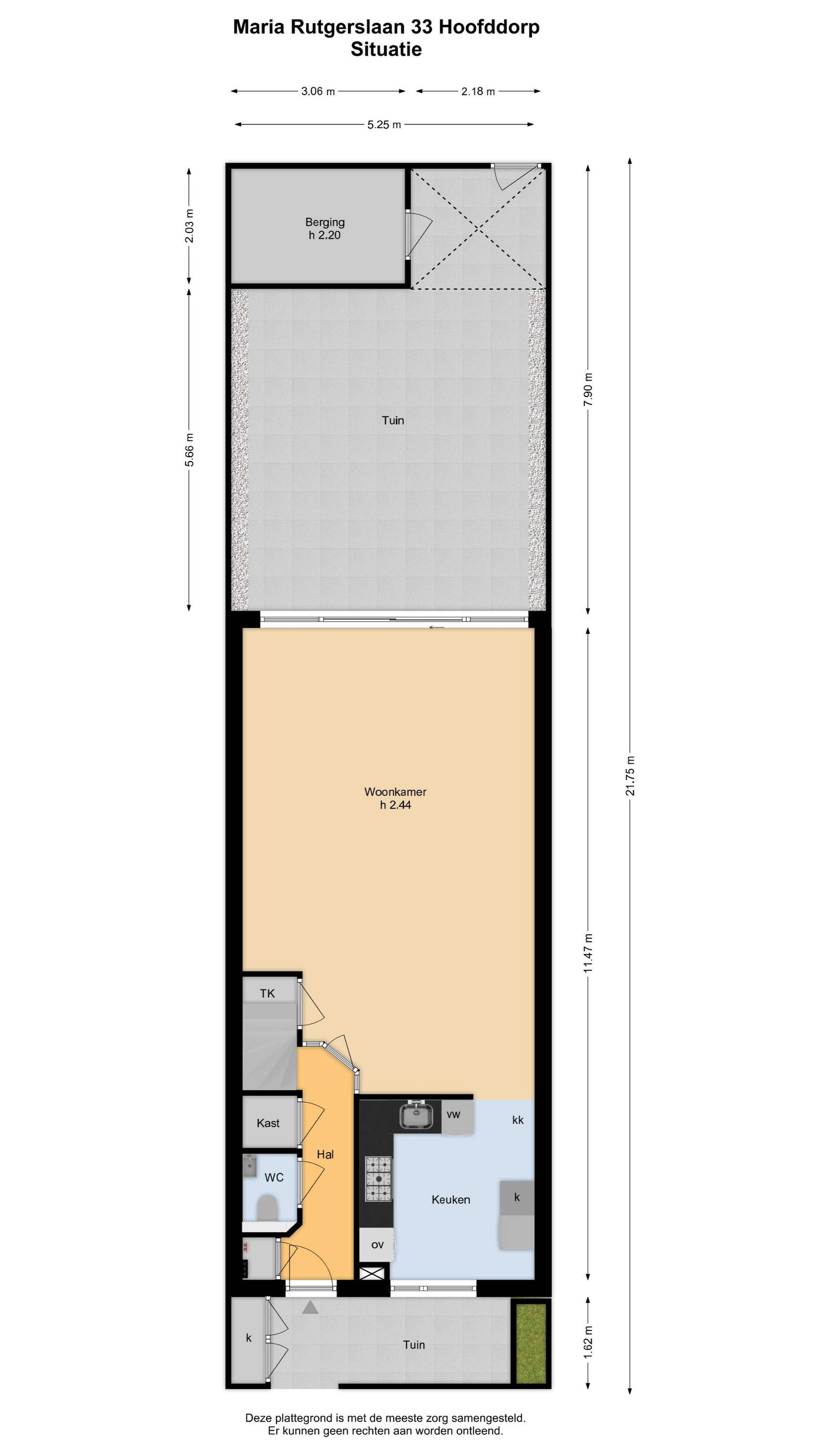
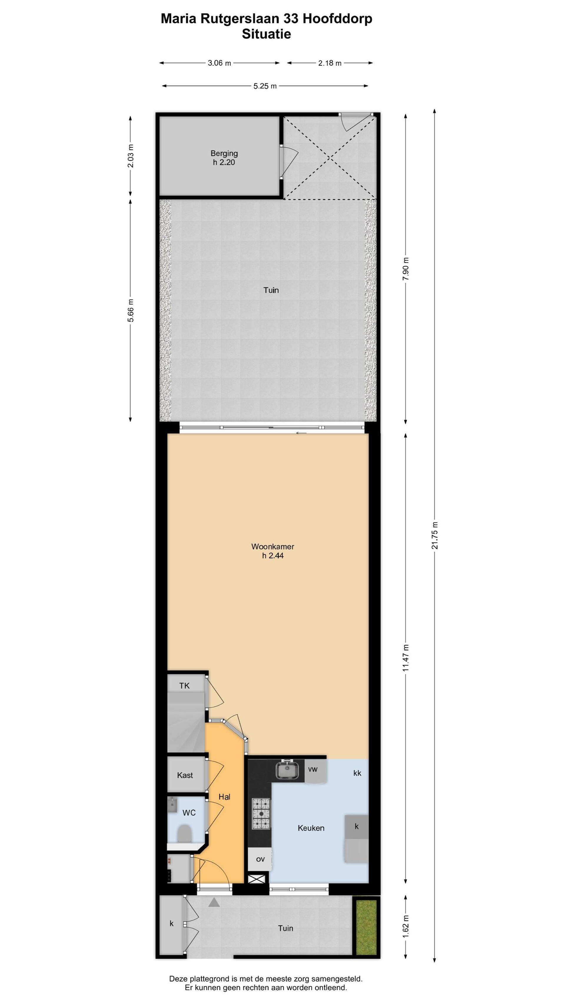
Tuin
Via de schuifpui stap je direct de verzorgde achtertuin welke is vernieuwd in 2021 in, gelegen op het noordoosten. De tuin is onderhoudsvriendelijk aangelegd, biedt veel privacy en beschikt over een achterom en een ruime berging.
Parkeren
Er is voldoende parkeergelegenheid direct voor de woning op openbaar terrein.
Highlights
• Kindvriendelijke en centrale ligging
• Bouwjaar 1992
• Woonoppervlak ca. 113 m²
• Perceeloppervlak ca. 120 m²
• Ruime, uitgebouwde woonkamer met open keuken
• Vloer in lichte kleurstelling
• Vloerverwarming op de begane grond
• Gestucte wanden
• Moderne badkamer (2021)
• Drie slaapkamers met mogelijk tot vier
• Rolluiken
• Schuifpui 2022
• Verzorgde tuin op het noordoosten
• CV-ketel (2020)
• Energielabel B
• Oplevering in overleg
Ben je enthousiast geworden en wil je deze woning graag bezichtigen?
Neem dan contact met ons op via het contactformulier, telefonisch via 023 – 210 07 01, of per e-mail op
uwmakelaar@ remax.nl.
Wij plannen graag een bezichtiging met je in!