Ruime eengezinswoning met zonnige tuin – klaar voor jouw eigen touch!
Op een rustige, kindvriendelijke locatie in Hoofddorp ligt deze ruime eengezinswoning met vier slaapkamers, lichte woonkamer en zonnige achtertuin en eigen carport.
De woning is netjes onderhouden, maar biedt volop mogelijkheden om geheel naar eigen smaak te moderniseren. Hier creëer je in no-time jouw droomhuis!
Welkom op Birkholm 256 een fijne eengezinswoning in een geliefde woonwijk, waar rust, ruimte en potentie samenkomen.
Deze woning is keurig bewoond en heeft een solide basis, maar vraagt om wat liefde en aandacht om weer helemaal te stralen.
Indeling
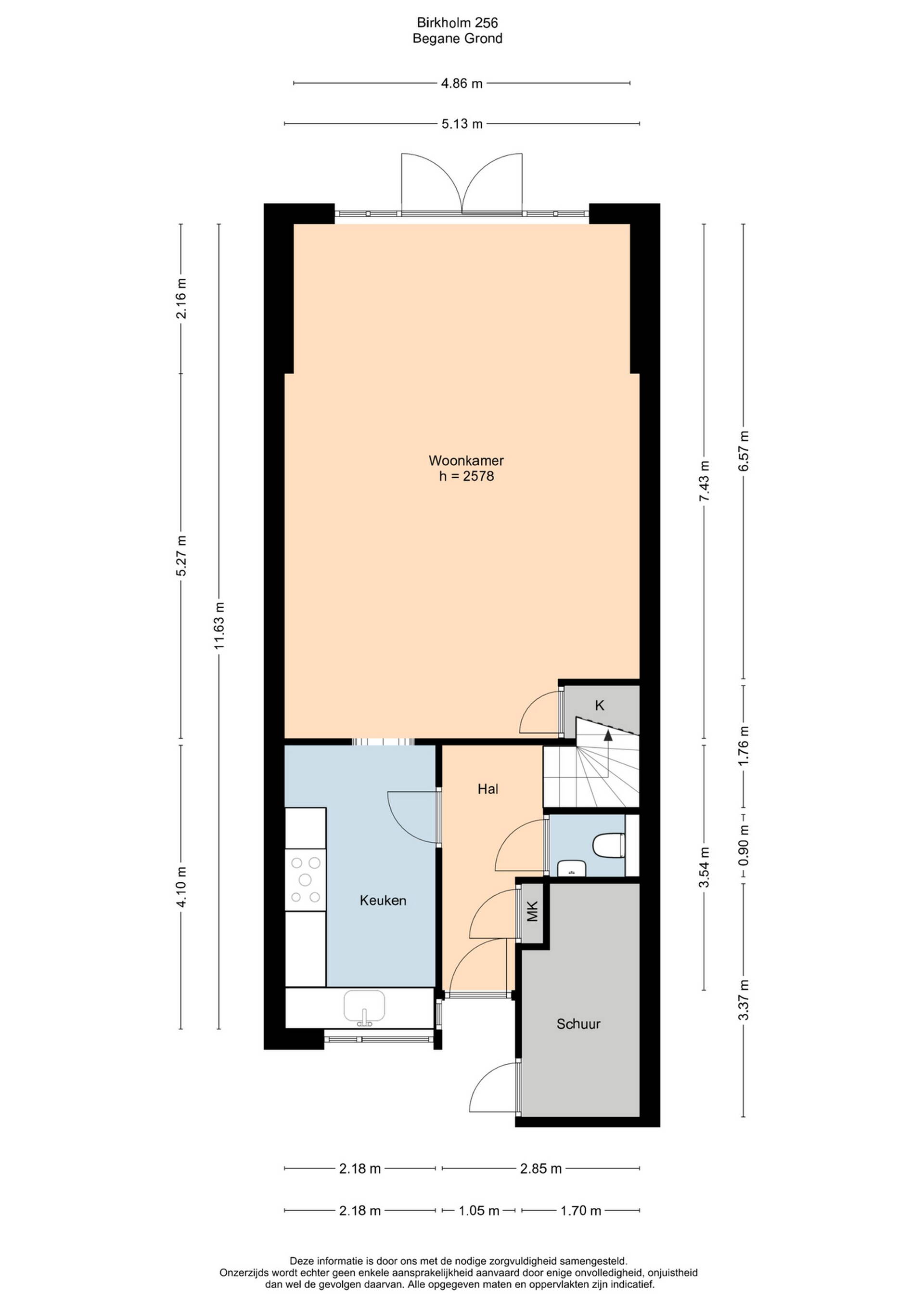
Begane grond
Via de entree kom je in de hal met garderobe, toilet en trapopgang. De woonkamer is verrassend licht dankzij de grote raampartijen aan de achterzijde en heeft een prettig uitzicht op de tuin. De neutrale vloer en rechte wanden bieden een uitstekende basis om jouw eigen woonstijl door te voeren.
Aan de voorzijde vind je de keuken in hoekopstelling: functioneel en netjes, maar ideaal om te moderniseren naar jouw wensen.
Eerste verdieping
Hier bevinden zich drie slaapkamers, stuk voor stuk van goed formaat en voorzien van grote ramen voor veel daglicht. De badkamer is voorzien van een ruime inloopdouche, een ligbad wastafel en toilet netjes, maar met ruimte voor een eigentijdse make-over.
Tweede verdieping
Hier bevind zich 1 slaapkamer, cv opstelling en de wasruimte
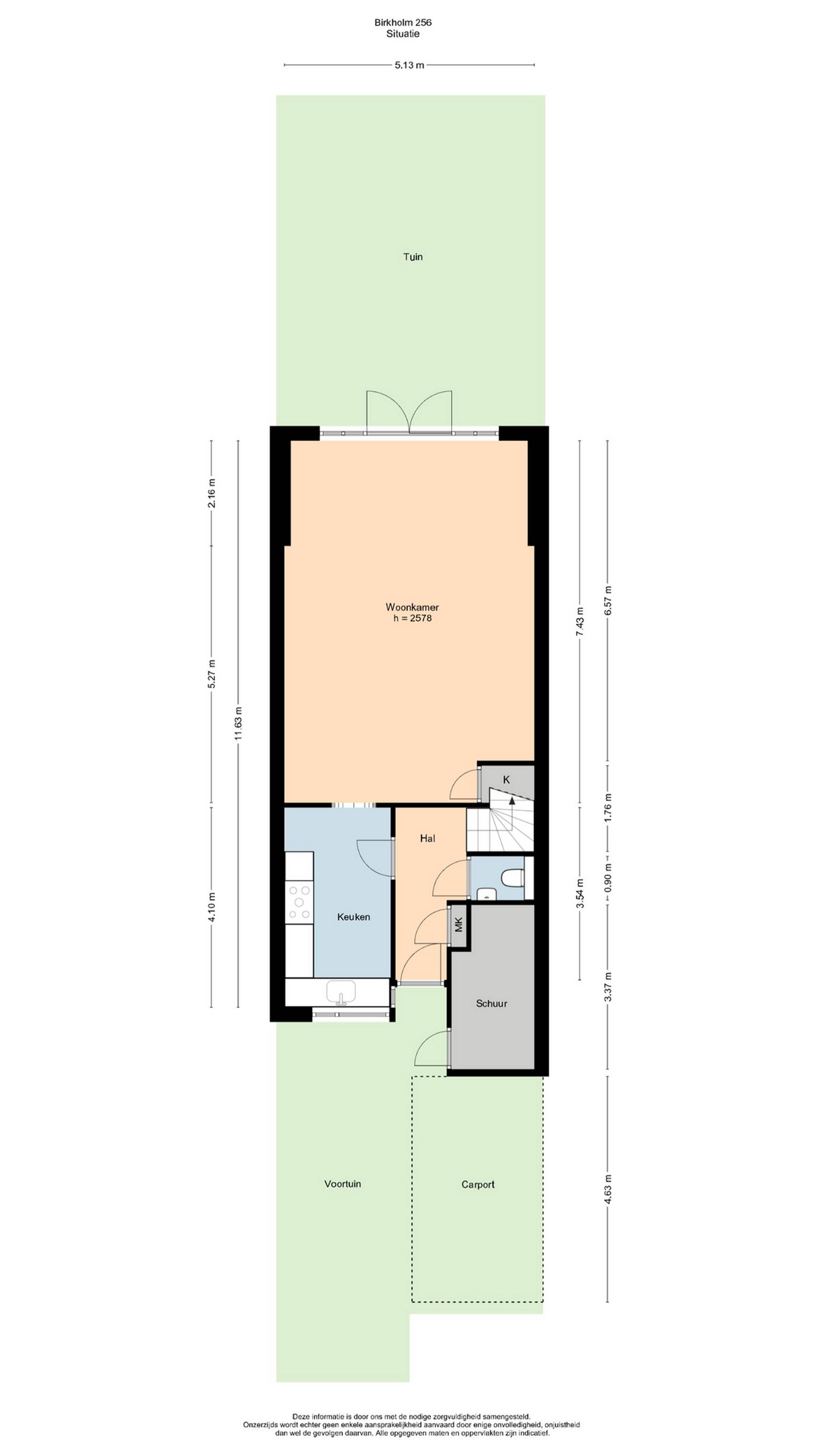
Buiten
De achtertuin is zonnig, in de voortuin vind je een berging en je eigen parkeerplek
Pluspunten van deze woning
•Ruime, lichte woonkamer
•Vier volwaardige slaapkamers
•Zonnige tuin
•Ruime stenen berging en Carport
•Rustige, kindvriendelijke straat
•Uitvalswegen, winkels, scholen en openbaar vervoer binnen handbereik
De buurt
Birkholm ligt in een rustige en groene woonwijk in Hoofddorp, dicht bij alle voorzieningen. Binnen enkele minuten fietsen bereik je winkelcentra, scholen, sportverenigingen en het Haarlemmermeerse bos. Ook de verbindingen naar Amsterdam, Haarlem en Schiphol zijn uitstekend.
Kortom:
Birkholm 256 is een huis met een goede basis, waar je met wat creativiteit en modernisering een prachtig, eigentijds thuis van maakt.
Interesse gewekt ? Neem dan contact op voor een bezichtiging.