Deze ruime tussenwoning biedt volop mogelijkheden voor veel woonplezier. U beschikt over ca. 125 m² en een eigen oprit!
De woning is gelegen in de rustige en kindvriendelijke wijk Overbos, op korte afstand van het centrum van Hoofddorp. Diverse voorzieningen, zoals scholen, kinderopvang, supermarkten en sportverenigingen, zijn op loop- of fietsafstand bereikbaar. Ook het Haarlemmermeerse Bos ligt om de hoek, ideaal voor een wandeling, een rondje joggen of een gezellig dagje uit. De woning is goed bereikbaar met het openbaar vervoer. Met de auto ben je bovendien snel op de uitvalswegen A4, A5 en A9, waardoor steden als Amsterdam, Haarlem en Schiphol uitstekend bereikbaar zijn.
Indeling:
Begane grond:
Via de voortuin bereik je de entree van de woning, waar zich een uitbouw bevindt. De hal geeft toegang tot het toilet met fonteintje en de garderobe. De ruime woonkamer is licht en biedt voldoende ruimte voor zowel een gezellige zithoek als een eethoek. Dankzij de uitbouw aan de achterzijde is de woonkamer aanzienlijk vergroot, wat zorgt voor extra leefruimte en een ruimtelijk gevoel.
Aan de voorzijde bevindt zich de royale open keuken, voorzien van diverse inbouwapparatuur, zoals een vaatwasser, oven, magnetron, koel-vriescombinatie, inductiekookplaat, afzuigkap en voldoende opbergruimte.
Vanuit de woonkamer heb je via een grote schuifpui toegang tot de achtertuin. Deze pui zorgt voor een mooie overgang tussen binnen en buiten, waardoor je in de zomermaanden de tuin eenvoudig bij de leefruimte kunt betrekken.
Eerste verdieping:
Op de eerste verdieping bevinden zich drie slaapkamers, waarvan er twee ruim van formaat zijn. De slaapkamers zijn licht en bieden voldoende indelingsmogelijkheden. De kleinere slaapkamer kan eventueel ook worden ingericht als walk-in closet of werkruimte. De badkamer is voorzien van een stoomdouchecabine, een wastafel en een toilet.
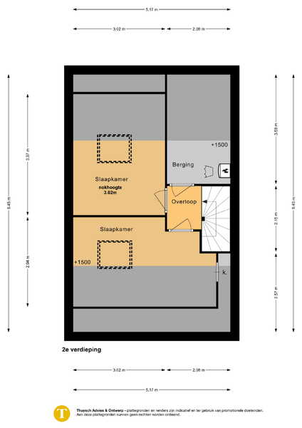
Zolderverdieping:
Via een vaste trap bereik je de zolderverdieping. Deze verdieping is slim ingedeeld en biedt nog twee volwaardige slaapkamers, die ook uitstekend kunnen dienen als werk- of hobbyruimte. Daarnaast is er een separate technische ruimte met de wasmachineaansluiting, de cv-installatie en extra bergruimte.
Tuin:
De achtertuin is gelegen op het westen, waardoor je tot in de avonduren van de zon kunt genieten. Het is een heerlijke plek om ’s ochtends rustig een kopje koffie te drinken of ’s avonds gezellig buiten te dineren. De tuin is onderhoudsvriendelijk aangelegd. Achter de tuin loopt een fietspad met daarachter een waterpartij, wat betekent dat je geen directe achterburen hebt. Dit zorgt voor een vrij uitzicht en draagt bij aan een gevoel van ruimte en ontspanning.
Bijzonderheden:
- Woonoppervlakte: 125 m²
- Bouwjaar: 1985
- Uitbouw begane grond;
- Energielabel A;
- 5 slaapkamers;
- Tuin gelegen op het westen;
- Schilderwerk aan binnen en buitenzijde uitgevoerd in 2024;
- 11 zonnepanelen;
- Eigen oprit;
- Vrij parkeren in de buurt;
- Kindvriendelijke buurt;
- Goede bereikbaarheid van voorzieningen en uitvalswegen;
- Nabij het Haarlemmermeerse Bos;
- Oplevering in overleg.
Wil jij deze woning komen bezichtigen?
Neem contact met ons op via het contactformulier, telefonisch op 023-2100 703, of via fleurvandervegt@ remax.nl. Wij nemen zo snel mogelijk contact met je op.