Wonen op een toplocatie!
In de kindvriendelijke wijk Floriande Sportdorp staat deze keurig onderhouden tussenwoning met drie slaapkamers op de eerste verdieping én een royale tweede verdieping die naar wens is in te richten met bijvoorbeeld een vierde slaapkamer. De fraai aangelegde en extra diepe achtertuin biedt volop ruimte om van het buitenleven te genieten en parkeren op eigen terrein is hier eveneens mogelijk.
De ligging is perfect: op loopafstand bevindt zich winkelcentrum Floriande, waar u niet alleen diverse winkels en een bushalte vindt maar ook elke zaterdag kunt genieten van een gezellige markt. In de directe omgeving zijn basisscholen, middelbare scholen (Haarlemmermeer Lyceum met tweetalig onderwijs), kinderopvang en verschillende sportverenigingen te vinden.
Spring op de fiets en ontdek de Toolenburgerplas en het Haarlemmermeerse Bos – ideale plekken om te wandelen, fietsen of in de zomer heerlijk te ontspannen aan het water. Met de auto bereikt u snel de uitvalswegen richting Haarlem, Leiden/Den Haag, Amsterdam en Schiphol.
Kortom, een moderne woning met een warme, sfeervolle uitstraling, gelegen in een rustige en centrale wijk.
U kunt hier uitpakken en gaan genieten!
Indeling:
Begane grond:
U komt via de voortuin bij de deur waar u binnenkomt in de hal, hier heeft u een ruime plek voor de garderobe. Daarnaast vindt u hier het nette toilet met een fonteintje.
Vanuit de hal komt u in de lichte woonkamer met een open verbinding naar de keuken. De vloer is voorzien van eiken lamelparket en de wanden zijn afgewerkt met gladstuc, wat zorgt voor een verzorgde en sfeervolle uitstraling.
Achter de televisie vindt u een prachtige wand van houtpanelen (2023) en via de openslaande deuren heeft u toegang tot de fraai aangelegde tuin.
De keuken is uitgevoerd in een neutrale kleurstelling en beschikt over een royaal werkblad. Daarnaast is deze uitgerust met diverse inbouwapparatuur, waaronder koel/vries combinatie (2022), oven, losse magnetron, vaatwasser (2015), afzuigkap en inductie kookplaat.
Vanuit de keuken heeft u uitzicht op de rustige straat, waar enkel bestemmingsverkeer komt.
U zult hier met veel plezier koken, terwijl familie en vrienden gezellig aanschuiven aan de eettafel.
In de trapkast heeft men plek voor voorraad en overige spullen, zoals bijvoorbeeld een stofzuiger.
Op de begane grond is een airco systeem geplaatst in 2023 wat zorgt voor heerlijke verkoeling op warme dagen en warmte op de wat koudere dagen.
Eerste verdieping:
Aan de overloop grenzen drie slaapkamers, de master bedroom bevindt zich aan de achterzijde van de woning en kijkt uit over de tuin. Tevens geniet u hier van het vrije uitzicht. Op de gehele bovenverdieping ligt een mooie eiken lamelparket vloer net als op de begane grond.
De overige twee slaapkamers zijn goed in te delen als kinderslaapkamer, werkkamer of kledingkast.
De nette badkamer is geheel betegeld en is voorzien van een tweede toilet, douche en wastafelmeubel, de prachtige douchedeur is in 2023 geplaatst.
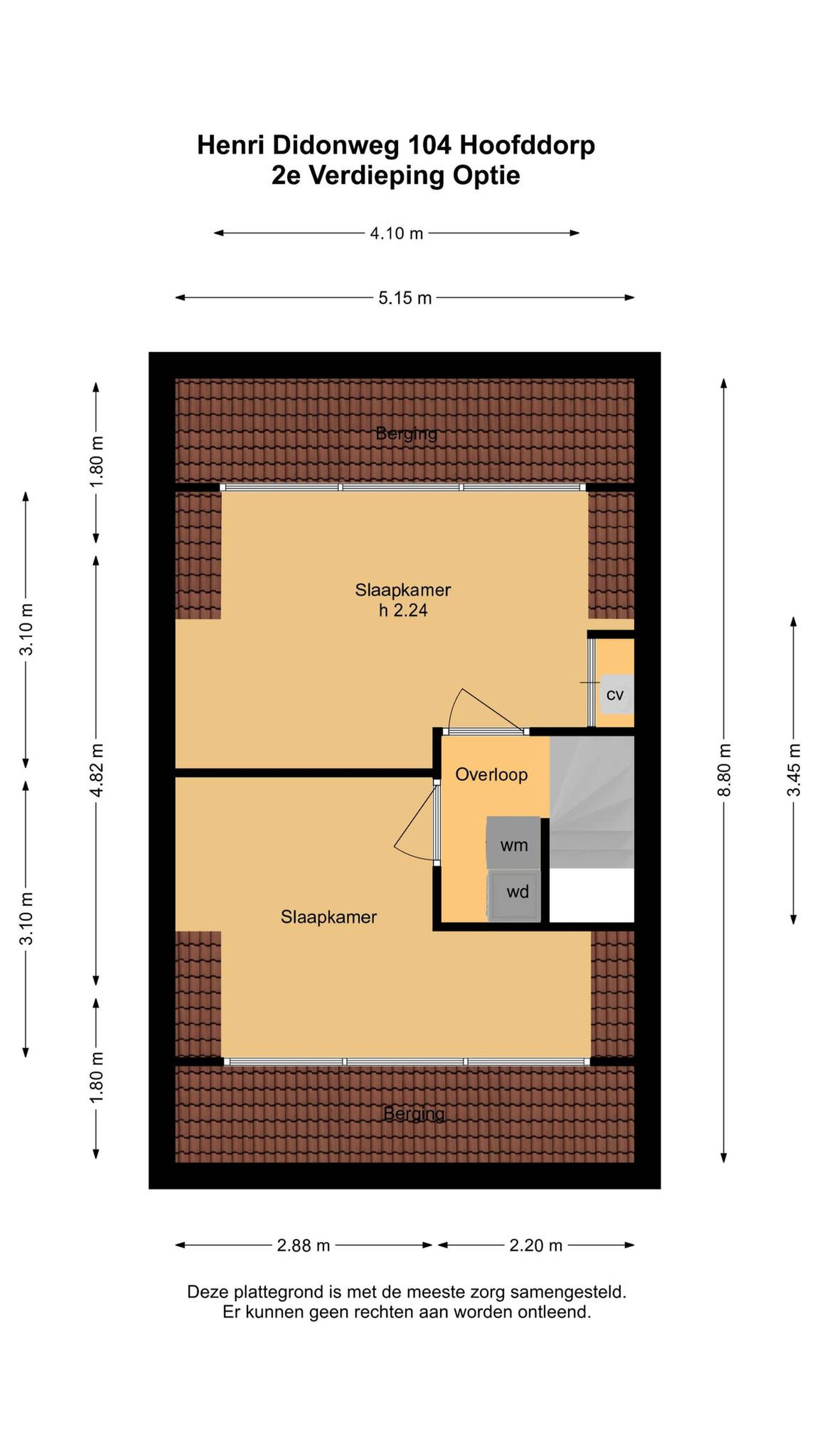
Tweede verdieping:
Via de vaste trap bereikt u de tweede verdieping. Hier bestaat de mogelijkheid om zowel aan de voor- als achterzijde een dakkapel te plaatsen (zie optie plattegrond), waardoor er eenvoudig twee extra slaapkamers kunnen worden gerealiseerd. Daarnaast is er volop bergruimte en vindt u hier de opstelling van de cv-ketel en de aansluiting voor de wasmachine en droger.
Exterieur:
De woning beschikt over een royale achtertuin op het zuidoosten, waar u heerlijk van de zon kunt genieten. Met meerdere terrassen en volop ruimte voor beplanting is dit een ideale plek voor liefhebbers van groen.
De afsluitbare carport is op dit moment in gebruik als “mancave” maar u zou hier ook uw auto op eigen terrein kunnen parkeren.
De grote berging biedt voldoende ruimte voor de (race)fiets, tuingereedschap en overige spullen.
Aan de achterzijde van de carport bevinden zich nog meer parkeerplaatsen voor de bewoners net zoals aan de voorzijde van de woning.
Bijzonderheden:
-Buitenkant geschilderd in 2023;
-In 2023 is er een airco systeem geplaatst en een nieuwe douche deur;
-Zonnenpanelen, 8 stuks geplaatst in 2022 (totaal 2960wp);
-Mogelijkheid tot plaatsen van een uitbouw aan de achterzijde van de woning;
-Tweede verdieping naar wens te vergroten;
-Verschillende internet aansluitingen in de woning;
-Centrale locatie;
-Zonnige fraai aangelegde tuin;
-Parkeren op eigen terrein;
-Energielabel A;