Ruim, comfortabel en uitstekend onderhouden familiehuis met 4 slaapkamers en een zonnige tuin!
Welkom in deze royale tussenwoning, gelegen op het ruim opgezette en populaire Eiland 1 in de wijk Floriande in Hoofddorp. Deze tussenwoning uit 2003 biedt een zee aan ruimte met maar liefst 168 m² woonoppervlak, verdeeld over drie verdiepingen. Het huis is met zorg onderhouden en ligt aan een rustige straat voor alleen bestemmingsverkeer. Met 4 ruime slaapkamers én mogelijkheden om extra slaapkamers te creëren, is dit de perfecte gezinswoning. De praktische indeling en grote raampartijen zorgen voor een heerlijk lichte en uitnodigende woning.
Ligging
De locatie is ideaal! De woning bevindt zich op Eiland 1 "Walcheren" in Floriande, een kindvriendelijke buurt met alle voorzieningen binnen handbereik. Het winkelcentrum Floriande, met een gezellige markt op zaterdag, ligt op loop- of fietsafstand. Ook (internationale) scholen, kinderopvang, het Haarlemmermeer Lyceum en de bibliotheek zijn vlakbij.
Voor de natuurliefhebber en sportieveling zijn de Toolenburger Plas en het Haarlemmermeerse Bos dé plekken om te wandelen, fietsen, joggen of skaten.
Hoofddorp heeft daarnaast uitstekende verbindingen. Het openbaar vervoer (R-net) brengt je snel naar Amsterdam-Zuidoost, Haarlem of Schiphol. Met de auto zijn de A4, A5, A9 en A10 eenvoudig te bereiken.
Indeling
Begane grond
Via de ruime voortuin, met parkeergelegenheid voor twee auto's, bereik je de voordeur. De hal geeft toegang tot de meterkast, een toilet met fontein, garderobe, trapopgang en de ruime woonkamer.
De uitgebouwde, tuingerichte woonkamer is voorzien van een stijlvolle houten visgraatvloer, die de ruimte een luxe uitstraling geeft. Een sfeervolle (gas)haard vormt het hart van de woonkamer en zorgt voor extra warmte en gezelligheid. De strak gestucte wanden in lichte kleuren dragen bij aan een fris interieur. De grote raampartijen zorgen voor een overvloed aan natuurlijk licht, waardoor de woonkamer een fijne plek is om te ontspannen of te genieten met familie en vrienden. Vanuit de woonkamer heb je via dubbele openslaande deuren en een loopdeur toegang tot de zonnige achtertuin, ideaal voor binnen-buitenleven.
De halfopen keuken aan de voorzijde van de woning is heerlijk ruim en uitgerust met moderne inbouwapparatuur, waaronder een inductiekookplaat, oven, magnetron en een koel-vriescombinatie. Daarnaast biedt de keuken voldoende kastruimte en een praktische indeling, waardoor koken hier een plezier wordt.
De zonnige achtertuin, gelegen op het zuidwesten, biedt veel privacy en is een heerlijke plek om te ontspannen en te genieten van de zon. De tuin is fraai en onderhoudsvrij aangelegd, wat het een ideale plek maakt voor zowel ontspanning als gezellige barbecue-avonden. Achterin de tuin vind je een ruime houten berging met voldoende plek voor fietsen, gereedschap en andere spullen. De tuin is bovendien via een achterom bereikbaar, wat extra gemak biedt.
Eerste verdieping
Via de trap in de hal bereik je de ruime overloop, die toegang geeft tot drie grote slaapkamers, een badkamer en een tweede separaat toilet. De slaapkamers zijn licht en ruim. De badkamer is uitgerust met een dubbele wastafel, een ligbad en een douchecabine. Op de vloer ligt een keurige laminaatvloer.
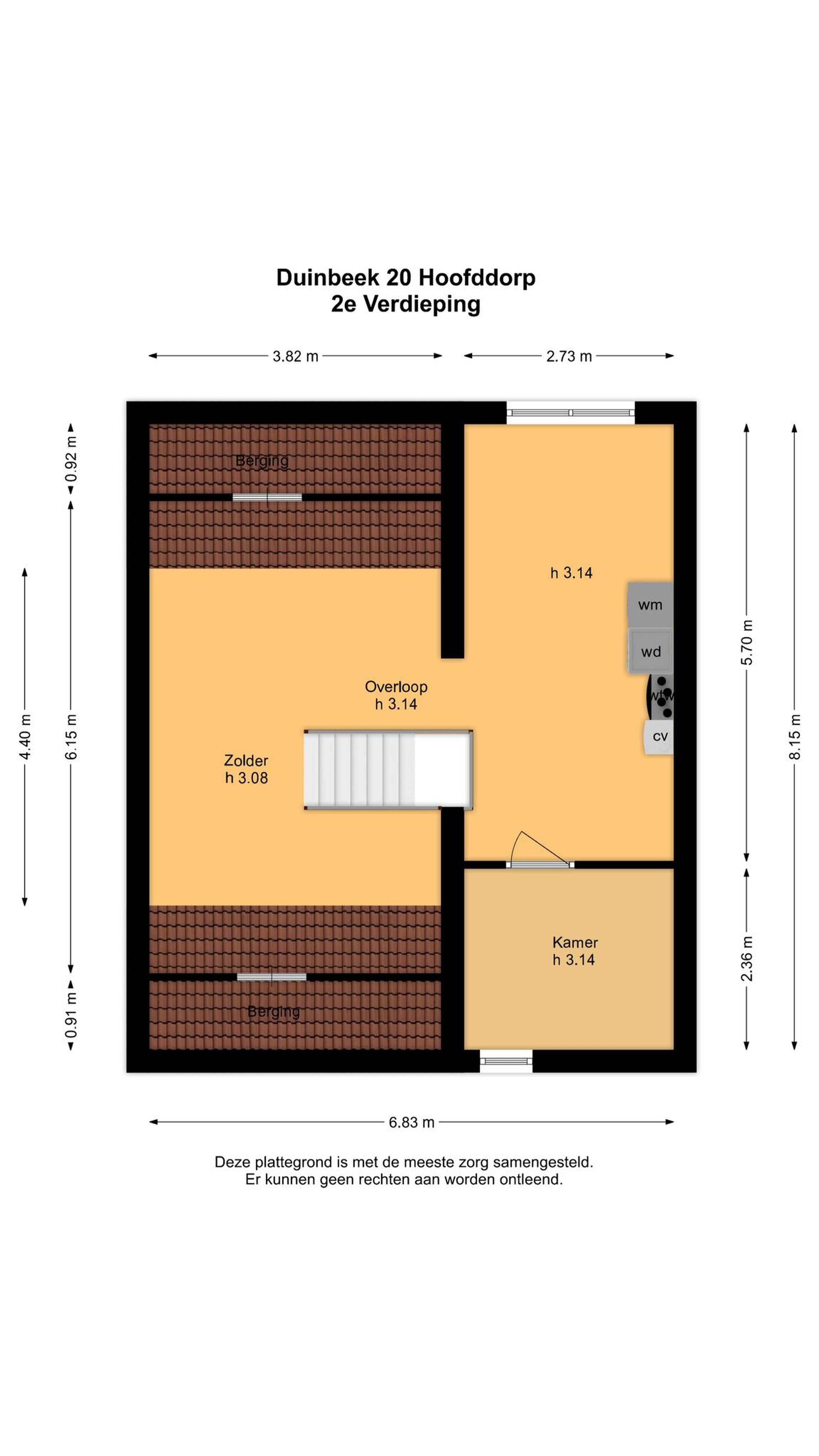
Tweede verdieping
De tweede verdieping biedt nog meer ruimte en mogelijkheden. Naast de bestaande slaapkamer kun je hier extra (slaap)kamers realiseren of bijvoorbeeld een kantoor of hobbyruimte. Ook deze verdieping is voorzien van een keurige laminaatvloer. Daarnaast vind je hier de opstelplaats voor de wasmachine en droger, de zonneboiler en de mechanische ventilatie-unit.
Highlights
•Bouwjaar: 2003
•Woonoppervlakte: 168 m²
•Perceeloppervlakte: 199 m²
•Kindvriendelijke ligging: Rustige buurt met speeltuinen en scholen in de nabijheid.
•Uitstekend onderhoud
•Slaapkamers: 4 slaapkamers met mogelijkheid tot 2 extra kamers.
•(Gas)openhaard: Voor extra sfeer en warmte.
•C.V ketel 2019
•Energielabel A: Energiezuinig dankzij goede isolatie en zonneboiler.
•Tuin op het zuidwesten: Ideaal voor zonliefhebbers.
•Parkeren op eigen terrein: Ruimte voor 2 auto's.
Enthousiast?
Plan snel een bezichtiging en ervaar zelf de ruimte, en het comfort van deze prachtige woning!
Neem contact met ons op via het contactformulier, op telefoonnummer 023-2100700 of via uwmakelaar@ remax.nl.