Knusse gezinswoning in de wijk Pax, nabij Hoofddorp centrum.
Welkom in deze sfeervolle, goed onderhouden woning, gelegen in de geliefde wijk Pax, op korte afstand van het bruisende centrum van Hoofddorp. Deze woning biedt een perfecte mix van comfort, ruimte en energiezuinige oplossingen, ideaal voor gezinnen die op zoek zijn naar een nieuwe thuisbasis.
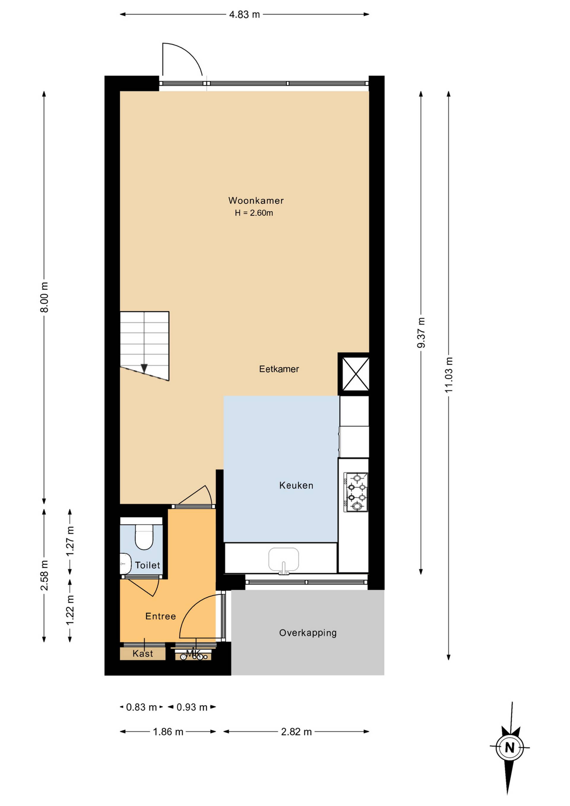
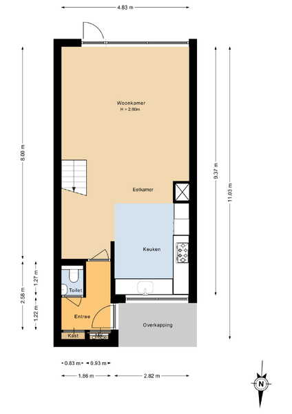
Begane grond
Bij binnenkomst voel je direct de warme sfeer van het huis. De ruime hal biedt toegang tot een modern toilet en is voorzien van een ingebouwde kapstok en meterkast. Vanuit de hal stap je de lichte woonkeuken in, die van alle gemakken is voorzien met hoogwaardige inbouwapparatuur. De ruime woonkamer leidt naar de zonnige achtertuin, die op het zuiden ligt. De tuin beschikt over een handig zonnescherm en een externe bergruimte, met een achterom die uitkomt op een rustig pad.
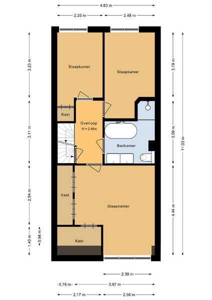
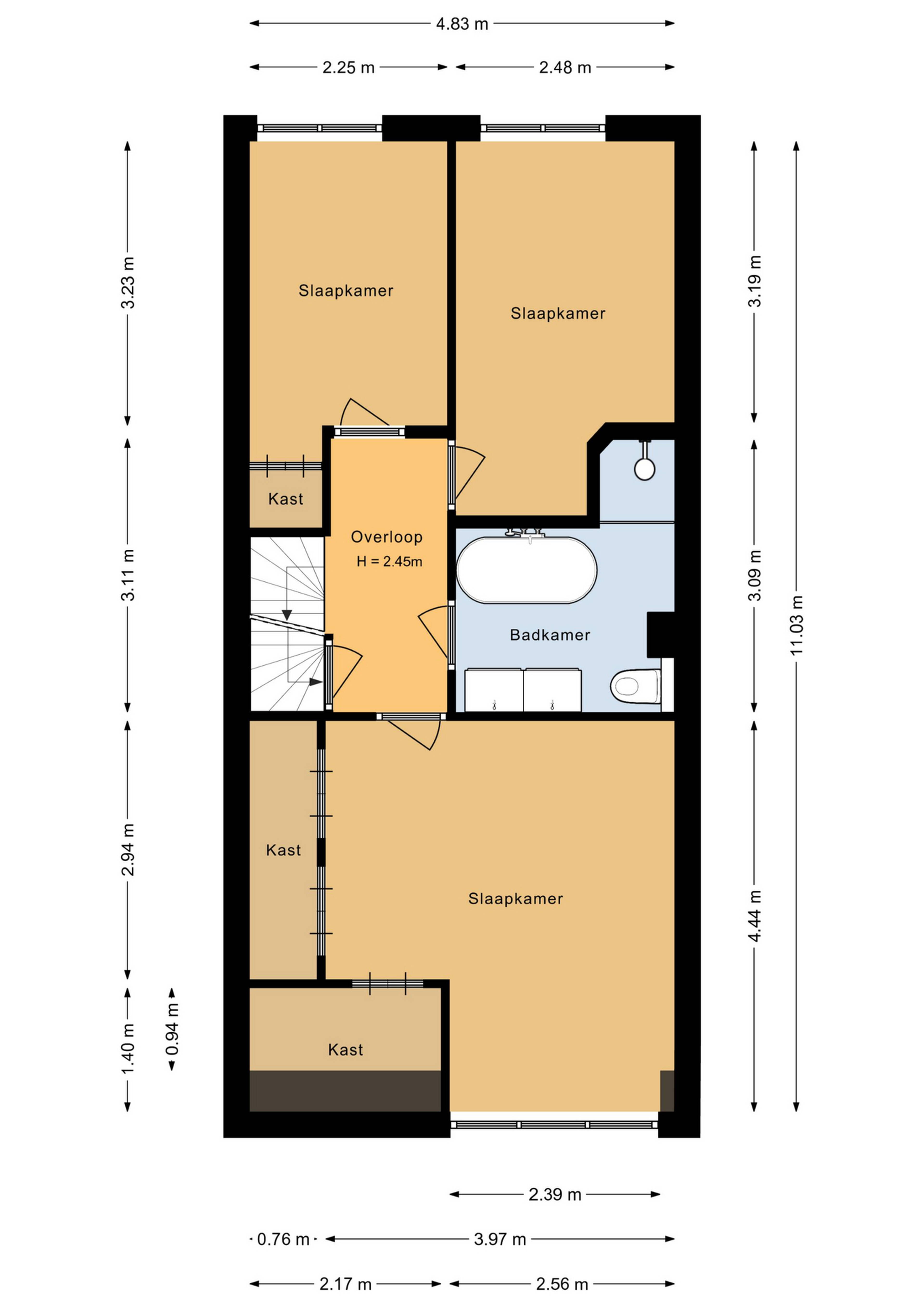
Eerste verdieping
Op de eerste verdieping bevinden zich drie ruime slaapkamers, waaronder een comfortabele master bedroom. Alle kamers zijn voorzien van rolluiken voor extra comfort en privacy. De moderne badkamer, die in 2022 is geplaatst, biedt een luxe ligbad, inloopdouche, een dubbele wastafel en een toilet, perfect voor een gezin.
Tweede verdieping
De tweede verdieping biedt een extra ruime kamer die momenteel dienst doet als gastenkamer en kantoor. Daarnaast is er toegang tot de technische ruimte en washok waar de cv-ketel, wasmachine en zonnepaneel omvormer zijn geïnstalleerd, wat bijdraagt aan het energiezuinige karakter van de woning.
Highlights:
- Ruim familiehuis met 4 slaapkamers: Ruimte voor het hele gezin, met mogelijkheden voor extra werk- of hobbyruimte.
- Grote woonkamer met open keuken: De lichte en ruime woonkeuken is volledig uitgerust met moderne inbouwapparatuur.
- Op de begane grond en eerste etage zijn de kozijnen aan de achterkant van de woning duurzame kunststof kozijnen.
- Parkeren op eigenterrein: Gemakkelijke en veilige parkeergelegenheid direct voor de deur.
- Ruime tuin met achterom op het zuiden: Ideaal om te ontspannen, met een zonnescherm en een externe berging.
- Moderne badkamer geplaatst in 2022: Luxe afwerking met een ligbad, inloopdouche en dubbele wastafel.
- 3 ruime slaapkamers met rolluiken: Voor extra comfort en verduistering.
- Ruime zolder met dakkapel: Veel lichtinval, perfect als extra slaapkamer, kantoor of speelruimte.
- Energielabel A: Energiezuinig dankzij moderne isolatie en voorzieningen.
- 12 zonnepanelen van 300 WP: Duurzame energieoplossing voor lagere energiekosten.
- CV-ketel uit 2015: Efficiënte en goed onderhouden verwarming.
Deze woning biedt alles wat een gezin nodig heeft voor een comfortabel en duurzaam leven. Maak snel een afspraak voor een bezichtiging en ontdek zelf de charme van deze prachtige woning in de wijk Pax!