Wonen in een ruim turnkey familiehuis in de kindvriendelijke wijk Toolenburg, op loopafstand van winkels en de Toolenburgerplas?
Dit heerlijke, ruime en gemeubileerde huis biedt alles wat je nodig hebt om comfortabel te wonen. Een lichte woonkamer met open keuken, vijf slaapkamers en twee badkamers.
De locatie is perfect voor gezinnen. Gelegen in de populaire en kindvriendelijke wijk Toolenburg, met scholen, een winkelcentrum en het openbaar vervoer op loopafstand. Het centrum van Hoofddorp is op 10 minuten fietsafstand bereikbaar. De ligging ten opzichte van diverse snelwegen en openbaar vervoer naar Amsterdam, Haarlem, Leiden en Den Haag maakt Hoofddorp een zeer aantrekkelijke plek om te wonen.
Het huis heeft energielabel A, is goed geïsoleerd en uitgerust met 16 zonnepanelen. Als kers op de taart heeft deze woning een nieuwe visgraatvloer, een nieuwe keuken en badkamer, én airconditioning.
Indeling:
Begane grond:
De ruime, tuingerichte woonkamer is voorzien van een nieuwe visgraatvloer en de grote raampartijen zorgen voor veel natuurlijk licht. Door de ligging van het huis is privacy gegarandeerd.
Zodra je in de hal staat, zie je dat dit een huis met veel ruimte is. Aan de linkerzijde bevinden zich de meterkast, de toiletruimte met fontein, een bergkast en de trapopgang. De ruime, tuingerichte woonkamer is voorzien van een nieuwe visgraatvloer, airconditioning en de grote raampartijen zorgen voor veel natuurlijk licht. De fantastisch ruime open keuken (2024) is aan de voorzijde van de woning gelegen en beschikt over alle benodigde inbouwapparatuur, waaronder een inductiekookplaat, afzuigkap, twee ovens en een koel-vriescombinatie.
Eerste verdieping:
Niet alleen op de begane grond, maar ook op de eerste verdieping is dit een huis met veel ruimte. Vanaf de overloop zijn drie slaapkamers (met airco) en een badkamer te bereiken. Aan de voorzijde bevinden zich de ouderslaapkamer en de badkamer met een speels, rond raam. De moderne badkamer is fraai ingedeeld met een ligbad, inloopdouche, toilet, dubbele wastafel en vloerverwarming. Lichte wandtegels en mooi sanitair zorgen voor een ruimte met een luxe uitstraling. De twee andere slaapkamers liggen aan de achterzijde en bieden meer dan genoeg ruimte voor een tweepersoonsbed, kast of een eventuele werkplek.
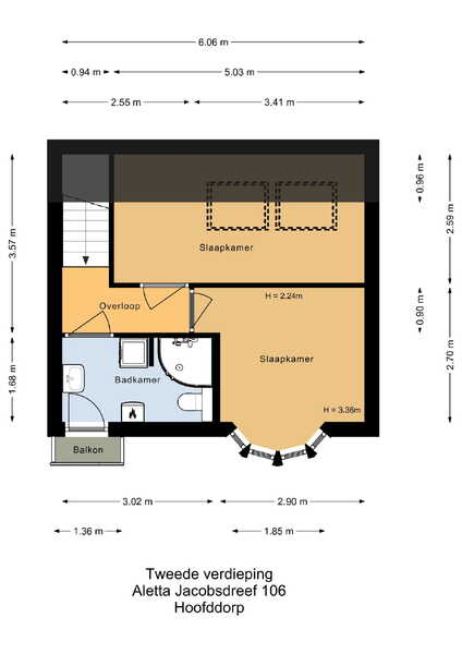
Tweede verdieping:
Op de tweede verdieping bevinden zich twee ruime slaapkamers met airconditioning en een tweede badkamer. De badkamer is voorzien van een douchecabine, wastafel en toilet. Op de overloop is er ruimte voor de wasmachine, droger, cv-ketel en toegang tot een klein balkon.
Berging:
In de achtertuin staat een houten berging met een grote overkapping. Zo is er voldoende ruimte voor fietsen en tuin-/klusgereedschap. Onder de overkapping bevindt zich een poort naar de steeg.
Tuin:
De zonnige achtertuin ligt op het zuidwesten en is onderhoudsvriendelijk met mooie fruitbomen en bestrating. Achterin de tuin vind je een houten berging met overkapping, perfect voor fietsen en tuingereedschap.
Parkeren:
Voldoende parkeergelegenheid voor de woning op openbaar terrein.
Highlights:
•Ruim en gemeubileerd familiehuis met vijf slaapkamers;
•Twee badkamers;
•Hue-verlichting;
•Grote woonkamer met open keuken;
•Nieuwe visgraatvloer (2024);
•Zonnige tuin op het zuidwesten;
•Airconditioning (6 units);
•Nieuwe keuken en badkamer;
•CV-ketel en warmtepomp;
•Energielabel A;
•Schilderwerk (2024);
•Zonnepanelen (16 stuks, 2 jaar oud);
•Oplevering kan snel.
Enthousiast geworden en wil je deze woning graag bezichtigen?
Neem contact met ons op via het contactformulier, op telefoonnummer 023-2100701 of op uwmakelaar@ remax.nl. Wij nemen zo snel mogelijk contact met u op.