Niet alleen voor gezinnen, maar voor iedereen is Overbos een heerlijke plek om te wonen. Het Haarlemmermeerse Bos is maar een paar minuten lopen of fietsen en u woont op korte afstand van de bushalte, scholen en andere voorzieningen. Als dit is wat u zoekt, dan is deze woning aan de Puttersbos perfect! De diepe achtertuin met bierlift heeft een uitstekende zonligging en in totaal zijn er in de woning maar liefst vier slaapkamers, waarvan een op de tweede verdieping. Vorig jaar zijn er 8 zonnepanelen geplaatst en in 2019 is de HR-ketel vervangen door een zuinige VHR-ketel.
Met het bos op loopafstand is er genoeg ruimte om te wandelen, joggen en te recreëren. Er zijn diverse scholen (basis- en sbo-onderwijs) op loop-/fietsafstand. Er is een goede busverbinding, onder andere met Haarlem en Amsterdam. Snelwegen als de A4, A5 en A9 zijn goed bereikbaar vanuit Overbos.
Indeling:
Begane grond:
Parkeer uw auto langs de openbare weg of zet de fiets in de voortuin, waarna u naar de voordeur van deze heerlijke woning loopt. Als u hier eenmaal woont, dan kan de fiets ook in de stenen berging aan de voorzijde staan. Deze is groot genoeg voor meerdere fietsen en andere spullen.
In de hal, boven de radiatorombouw, is ruimte voor een kapstok. Aan de andere zijde zijn de toiletruimte met fonteintje en de trap naar de eerste verdieping. Onder deze trap is een handige bergkast, te bereiken vanuit de woonkamer. In de hal, woonkamer en keuken ligt laminaat in een mooi patroon.
De tuingerichte woonkamer staat in open verbinding met de keuken. Dankzij de ligging aan de westkant valt de middag- en avondzon in de woonkamer naar binnen. Er is genoeg ruimte voor een grote zithoek, tv-meubel, eettafel en uw favoriete woonaccessoires. Welke invulling geeft u aan deze woonkamer?
Via het eetgedeelte loopt u de keuken in, waar een royale hoekopstelling staat. Voorheen had de keuken een lichte kleur, maar deze is door de huidige bewoners in trendy zwart geschilderd. Alle apparatuur is ingebouwd: een 5-pits gaskookplaat, afzuigkap, Siemens vaatwasser (2020), koel-/vriescombinatie, oven en een magnetron.
Eerste verdieping:
Vanaf de overloop zijn drie slaapkamers en de badkamer te bereiken. Op bijna de hele verdieping ligt laminaat, in een lichte kleur en van extra brede delen. Aan de achterzijde zijn twee slaapkamers en de derde, eveneens ruime slaapkamer is aan de voorzijde. Een van de kamers is in gebruik als kleedruimte.
De badkamer is ingedeeld met een inloopdouche, wandcloset en een dubbel wastafelmeubel. De wandtegels passen qua kleur goed bij de grote, grijze vloertegels en het sanitair. Naast het raam hangt een designradiator en boven de wastafels ziet u een grote, ronde spiegel met zwarte rand.
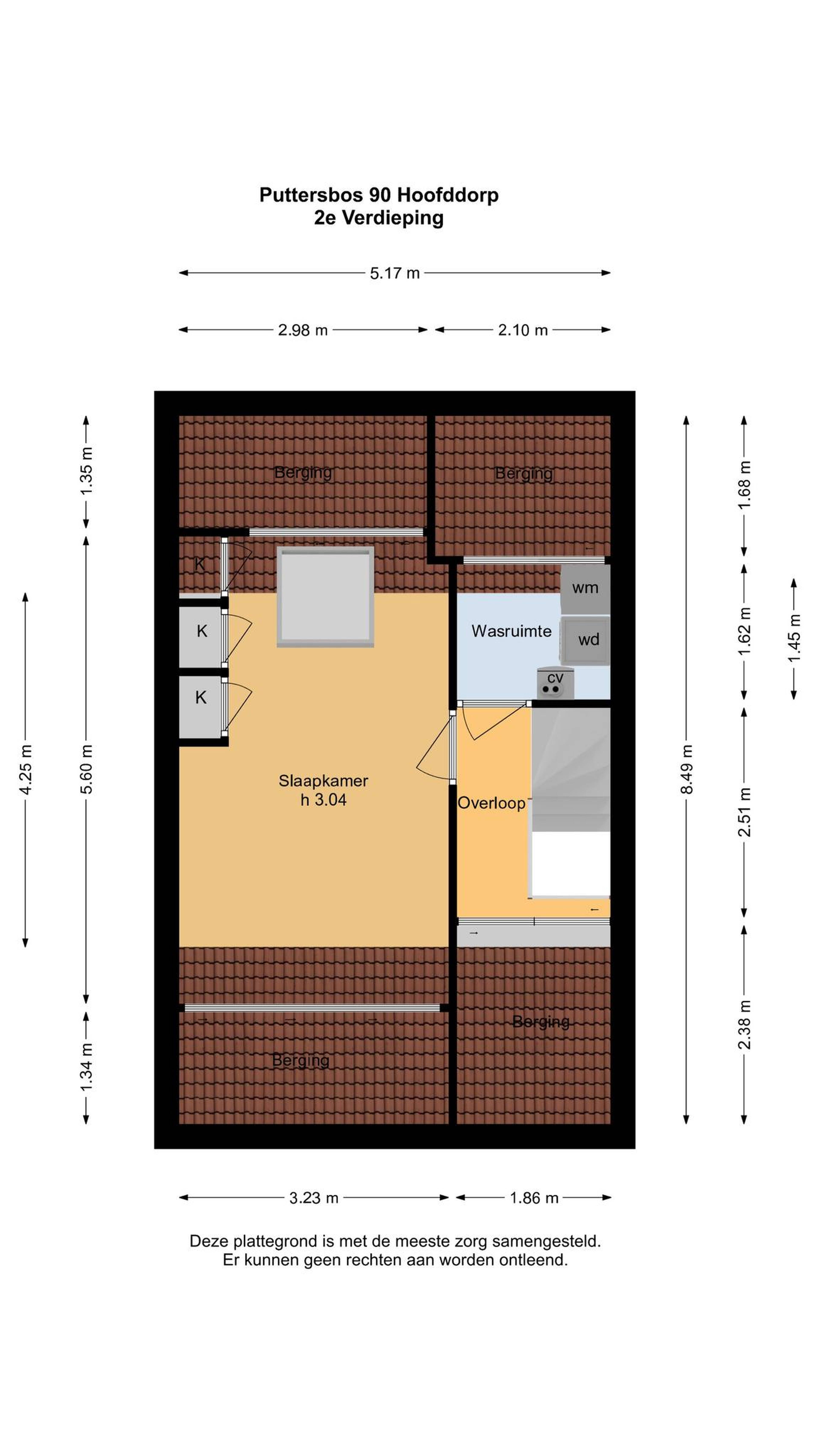
Tweede verdieping:
Deze woning heeft geen drie, maar vier slaapkamers. Deze slaapkamer, met inbouwkasten en een dakraam, bevindt zich op de tweede verdieping. De kinderen slapen een verdieping lager, waardoor de ouders de tweede verdieping als privédomein hebben.
U kunt deze slaapkamer bereiken vanaf de overloop, die verder toegang geeft tot de wasruimte. Hier hangt de HR-ketel en kunnen de wasmachine en droger staan. Op deze verdieping ziet u meerdere schuifdeuren in de schuinten van het dak, waarachter veel praktische bergruimte verborgen gaat.
Tuin:
De voor- en achtertuin zijn grotendeels bestraat, waardoor u geen groene vingers nodig heeft. De voortuin is gesitueerd op het oosten en de diepe, in 2020 opnieuw aangelegde achtertuin op het westen. Twee terrassen zorgen de hele dag voor een plekje in de zon en aan twee kanten zijn nieuwe schuttingen met betonpalen geplaatst. Er is niet alleen een achterom en een buitenkraan, maar ook een heuse bierlift. Perfect voor de housewarming, de verjaardag en een zwoele zomeravond met vrienden of familie!
Bijzonderheden:
-Verwarming en warm water via een VHR-ketel (Vaillant VHR-Eco, 2019, eigendom);
-(hard)houten kozijnen met isolatieglas (deels HR++);
-Deels stucwerk op de begane grond en tweede verdieping;
-Laminaatvloeren op alle verdiepingen (m.u.v. toiletruimte en badkamer);
-Mechanische ventilatie unit vervangen in 2019;
-8 zonnepanelen van 415 Wp per paneel, geplaatst in maart 2023;
-Achtertuin (west) vernieuwd in 2020;
- Parkeren op eigen terrein mogelijk;
-Energielabel A