Wordt u de nieuwe bewoner van dit droomhuis in de Floriande met vijf slaapkamers, een prachtige tuin, 20 zonnepanelen en twee parkeerplaatsen op eigen terrein?
Aan een autovrije straat in deelplan ‘De Hoven’ van de wijk Floriande staat deze fantastische, uitstekend onderhouden twee-onder-een-kapwoning met fraai lichtinval en volop leefruimte. Met vijf slaapkamers van goed formaat is dit een perfect huis voor een gezin. Geen auto’s voor de deur, maar een plantsoen met speelgelegenheid, en in de achtergelegen straat komt alleen bestemmingsverkeer. Kinderen kunnen voor de deur spelen en op eigen terrein kunnen twee auto’s staan. De locatie is ideaal: u woont op slechts 5 minuten lopen van winkelcentrum Floriande, met supermarkten, (vers)winkels, een bibliotheek, een gezondheidscentrum en een weekmarkt. Voor gezinnen zijn kinderopvang, basis- en middelbaar onderwijs op korte fiets- of wandelafstand. Het SKWA sportcomplex ligt om de hoek. Wandelen, joggen, fietsen of skaten kunt u onder andere bij de Toolenburger Plas en het Haarlemmermeerse Bos. Hoofddorp heeft goede OV-verbindingen (R-net) met Amsterdam-Zuidoost, Haarlem en Schiphol. De snelwegen A4, A5, A9 en A10 zijn goed bereikbaar, waardoor u centraal in de Randstad woont.
Indeling:
Begane grond:
De entree van deze fantastische woning bevindt zich in de zijgevel, die fraai is begroeid en u uitnodigt voor een nadere kennismaking. Via de stijlvolle voordeur is de hal te bereiken, met een op maat gemaakte schuifwandkast aan de linkerzijde. Aan de andere zijde, naast de meterkast, is de toiletruimte met fonteintje. De lichte tegelvloer met vloerverwarming ligt niet alleen in de hal, maar op de hele begane grond. De riante woonkamer van ca. 46 m², met openslaande deuren en een aparte loopdeur, allen met een groot raam aan de zuidwestkant, zorgen voor veel lichtinval. Ook in de zijgevel ziet u een groot raam, waardoor u aan twee kanten fraai uitzicht op de tuin heeft. De woonkamer biedt genoeg ruimte voor een grote hoekbank, tv-meubel, meerdere kasten en een 6-persoons eettafel. Aan de voorzijde, met uitzicht op een plantsoen, is de eetkeuken van ca. 18,5 m² gelegen, met ruimte voor een tweede eettafel. De lichte keukenopstelling in een L-vorm heeft een stijlvol aanrechtblad en een achterwand van zwart graniet. Aan de andere zijde van de keuken staat een hoge kastenwand van bijna 3 meter breed. Deze keuken biedt veel bergruimte en alle benodigde apparatuur is ingebouwd: een inductiekookplaat met wokbrander, afzuigkap, een oven en een stoomoven met bordenwarmer, vaatwasser, koelkast en een vriezer.
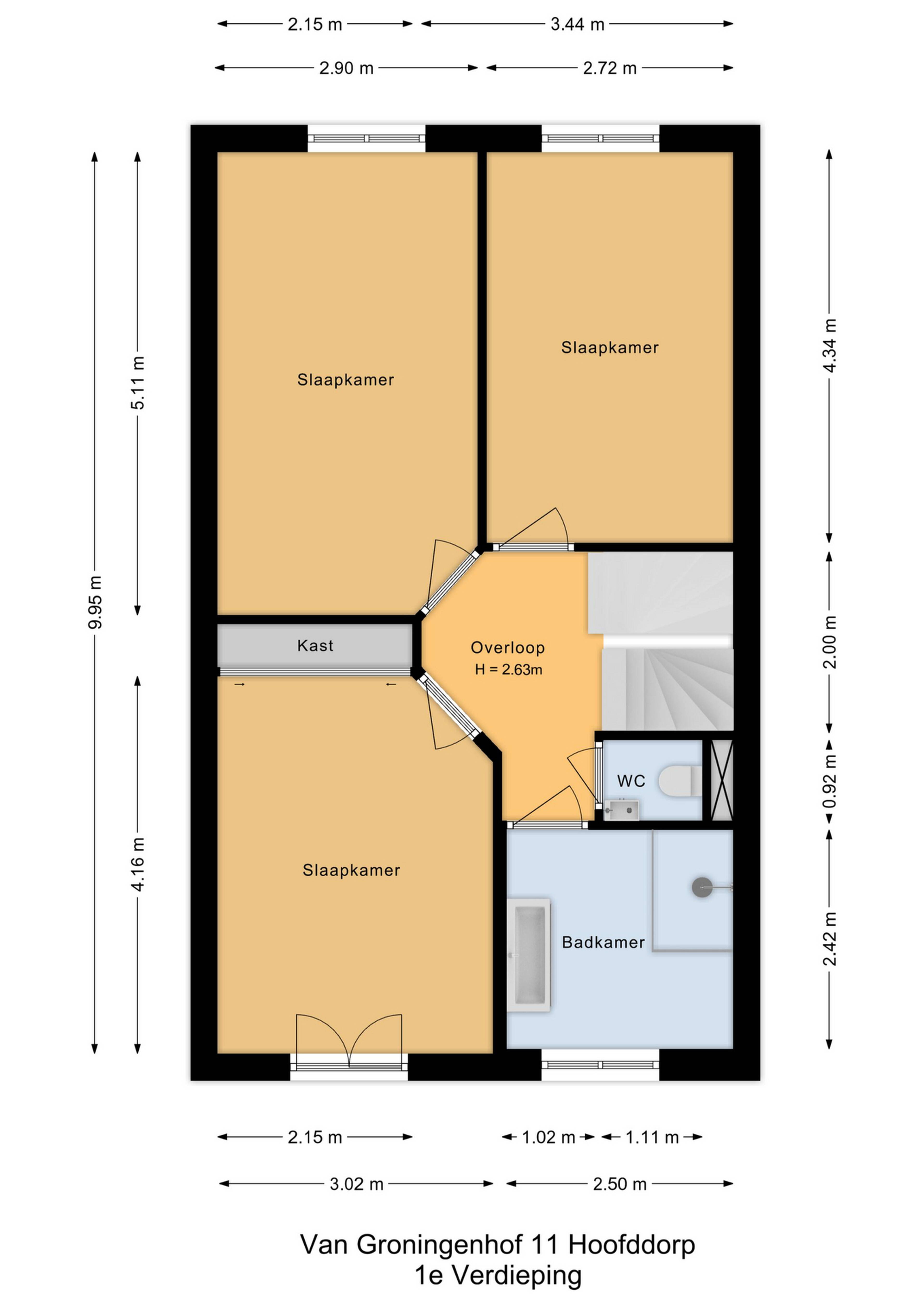
Eerste verdieping:
In de woonkamer bevindt zich de trap naar de eerste verdieping, waar drie grote slaapkamers, een ruime badkamer en een separaat toilet zijn gesitueerd. De slaapkamer aan de voorzijde is voorzien van een op maat gemaakte schuifwandkast en de slaapkamers aan de achterzijde zijn, gezien de grootte, ook geschikt als tweepersoonskamer. Alle slaapkamers zijn voorzien van een Frans balkon met grote, draai-kiep ramen voorzien van hor en rolluik. In alle slaapkamers en op de overloop ligt laminaat. In de ruime, lichte badkamer ziet u een brede dubbele wastafel met wandkranen, een licht badmeubel, grote spiegel, designradiator en een XL-inloopdouche.
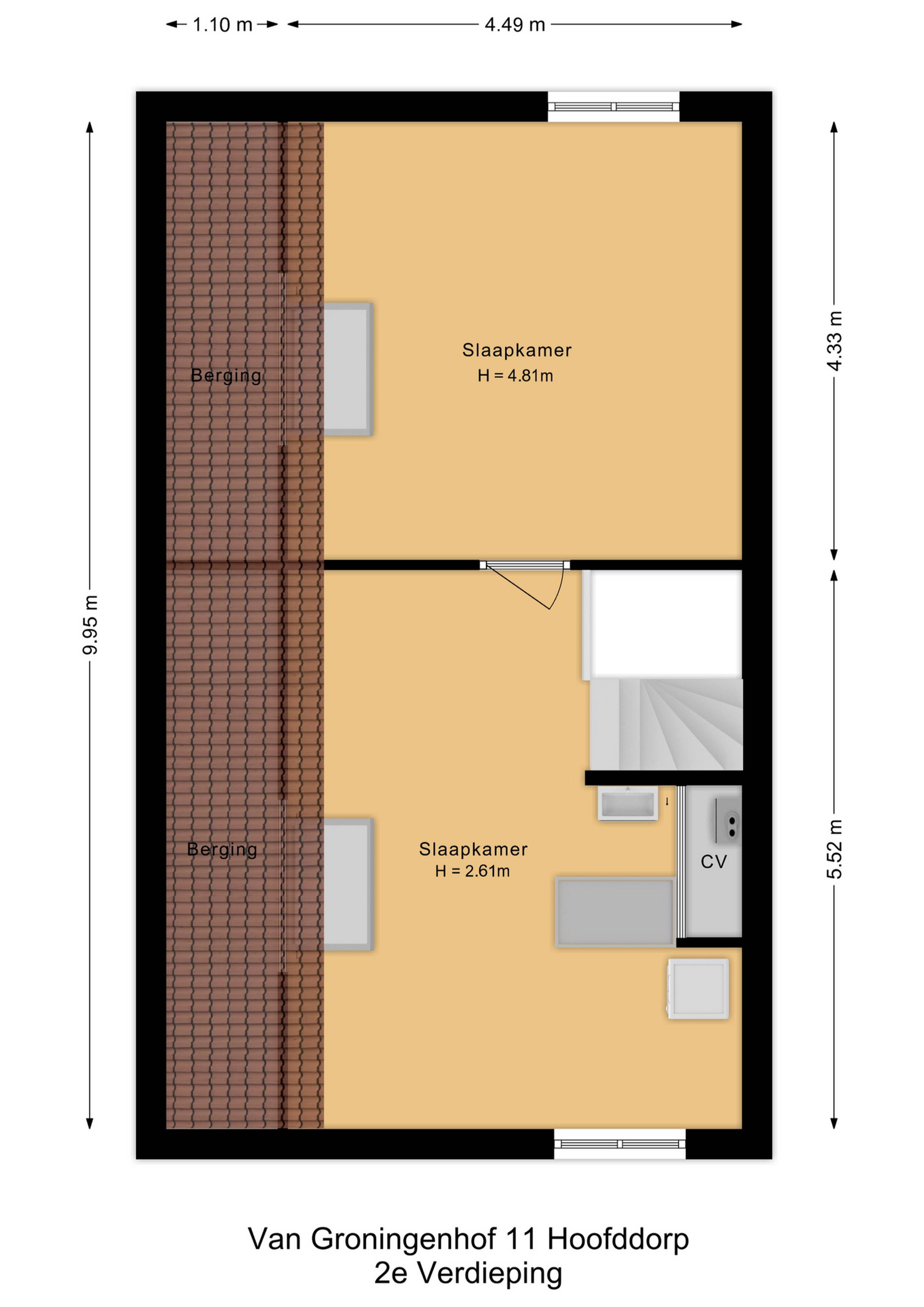
Tweede verdieping:
Dat dit een huis met ruimte is, bewijst ook de tweede verdieping. Hier ziet u twee slaapkamers, waarvan er één in gebruik is als werkkamer. Beide slaapkamers zijn voorzien van een groot raam met buitenzonwering in het schuine dakvlak, een Frans balkon met draai-kiep ramen en laminaat op de vloer. Het is mogelijk om een separate overloop te realiseren, waarbij de slaapkamer nog altijd een royale maatvoering heeft. In de schuinte van het dak, achter de schuifdeuren, en op de bovengelegen zolder is veel praktische bergruimte.
Tuin:
Vanuit de woonkamer is de prachtig aangelegde tuin te bereiken, gesitueerd op het zuidwesten. Het overdekte terras met glazen dak en zonnedoek is een heerlijke plek om buiten te zitten, net als het terras met fijne schaduw van de bomen. Verder ziet u veel groen, fruitbomen en een vijver in de achtertuin. De brede zijtuin is een oase van groen, met een kas voor het kweken van groente en fruit, en grenst aan de fraai aangelegde en uitstekend onderhouden voortuin. Achterin de tuin staat de houten berging, die voldoende ruimte biedt voor onder andere fietsen. Via een poort is de op eigen terrein gelegen parkeergelegenheid te bereiken.
Bijzonderheden:
•Bouwjaar 2007;
•Woonoppervlakte 171 m²;
•Perceeloppervlakte 315 m²;
•5 slaapkamers;
•Dak-, spouwmuur- en vloerisolatie;
•Verwarming en warm water via HR-ketel (Remeha Tzerra 39c);
•Vloerverwarming op de gehele begane grond;
•Kunststof kozijnen met HR++ glas;
•Vernieuwde meterkast;
•Centraal stofzuigsysteem in het gehele huis;
•Parkeergelegenheid voor twee auto’s op eigen terrein;
•20 zonnepanelen (6600 kWh jaaropbrengst);
•Energielabel A+.
Enthousiast geworden en wilt u deze woning graag bezichtigen?
Neem contact met ons op via het contactformulier, op telefoonnummer 023-2100701 of via uwmakelaar@ remax.nl. Wij nemen zo snel mogelijk contact met u op.