Exclusief en stijlvol wonen op een van de mooiste plekken van Tudorpark, met een diepe tuin grenzend direct aan het water. Deze zeer royale hoekwoning heeft een vloeroppervlakte van maar liefst 190 m², een luxe keuken, stijlvolle badkamer en een woonkamer van uitzonderlijk formaat. Dit is een droomhuis met veel extra’s en het gunstige energielabel A. Op de eerste verdieping zijn drie ruime slaapkamers en op de tweede verdieping vind u nu één kamer maar deze ruimte heeft de mogelijkheid tot het realiseren van twee extra kamers en een tweede badkamer. De diepe tuin met eigen achterom biedt een fijne speelplek voor de kinderen en ruimte om van de zon te genieten.
Tudorpark in Toolenburg-Zuid is niet voor niets een van de meest populaire wijken van Hoofddorp. De prachtige architectuur, het vele groen en water, de rustige straten en uitstekende ligging zorgen voor een grote aantrekkingskracht. De Toolenburgerplas, bushalte, diverse speeltuintjes, sportvoorzieningen en scholen bevinden zich in de nabijheid. Amsterdam, Haarlem, Den Haag en Schiphol zijn via de uitvalswegen en openbaar vervoer goed bereikbaar. Welkom in het Tudorpark, waar wonen iedere dag een genot is!
Indeling:
Begane grond:
Bewonder de prachtige architectuur van deze hoekwoning en loop naar de voordeur. In de aansluitende hal ziet u de garderobenis, meterkast, trapopgang en de moderne toiletruimte. De muren en plafonds op de begane grond zijn glad gestuct en onder de mooie tegelvloer ligt vloerverwarming. In de toiletruimte hangt een wandcloset met geïntrigeerde geurafzuiging.
De verrassend ruime woon-/eetkamer is een fantastische leefruimte met grote ramen aan de voor- en achterzijde en openslaande deuren naar het terras in de achtertuin. Alle facetten voor wooncomfort zijn aanwezig: een mooie vloer, vloerverwarming, glad stucwerk, inbouwverlichting en fraai uitzicht naar de tuin. Voor uw favoriete meubelstukken en kunst is meer dan genoeg plek in deze woonkamer. Aan de voorzijde, naast de keuken, is een lage kastenwand met werkblad en wijnklimaatkast gemaakt. Proost!
Aan de voorzijde is de prachtige, luxe keuken van groot formaat. Door de enorme ramen valt veel licht naar binnen en de luxe keukenopstelling met zitgelegenheid is de perfecte plek voor de kook- en bakliefhebber. Het Ceasarstone composiet aanrechtblad past goed bij de kleur van de keuken, die volop bergruimte biedt. Alle denkbare apparatuur van topkwaliteit is ingebouwd: een inductie kookplaat (Siemens), downdraft-Wave afzuigkap met externe motor, een vaatwasser (Siemens), koelkast (Liebherr), vriezer (Liebherr), stoomoven met warmhoudlade (Neff) en een oven (Neff).
Eerste verdieping:
Niet alleen de begane grond, maar ook de eerste verdieping heeft een royale maatvoering en veel sfeer. Aan de overloop grenzen drie slaapkamers en de badkamer. Een van de slaapkamers is in gebruik als kleedruimte en de slaapkamer aan de voorzijde is ingericht als tweepersoonskamer. De derde, tevens grootste slaapkamer is een fantastische ruimte met een grote dakkapel en een speelse indeling. Op de overloop en in de slaapkamers ligt een mooie laminaatvloer.
Ook de badkamer is het toppunt van luxe en sfeer. De ruimte, gemaakt in 2016 en deels vernieuwd in 2022, is ingedeeld met Villeroy & Boch sanitair, mooie kranen en stijlvol tegelwerk. U heeft niet alleen de beschikking over een inloopdouche met wandstralen, maar ook over een fraai vormgegeven bad. Verder ziet u een prachtig wastafelmeubel met een waskom, een grote spiegel met verlichting, een handdoekenradiator en een nis met wandcloset. Ook dit toilet is voorzien van geïntrigeerde geurafzuiging.
Tweede verdieping:
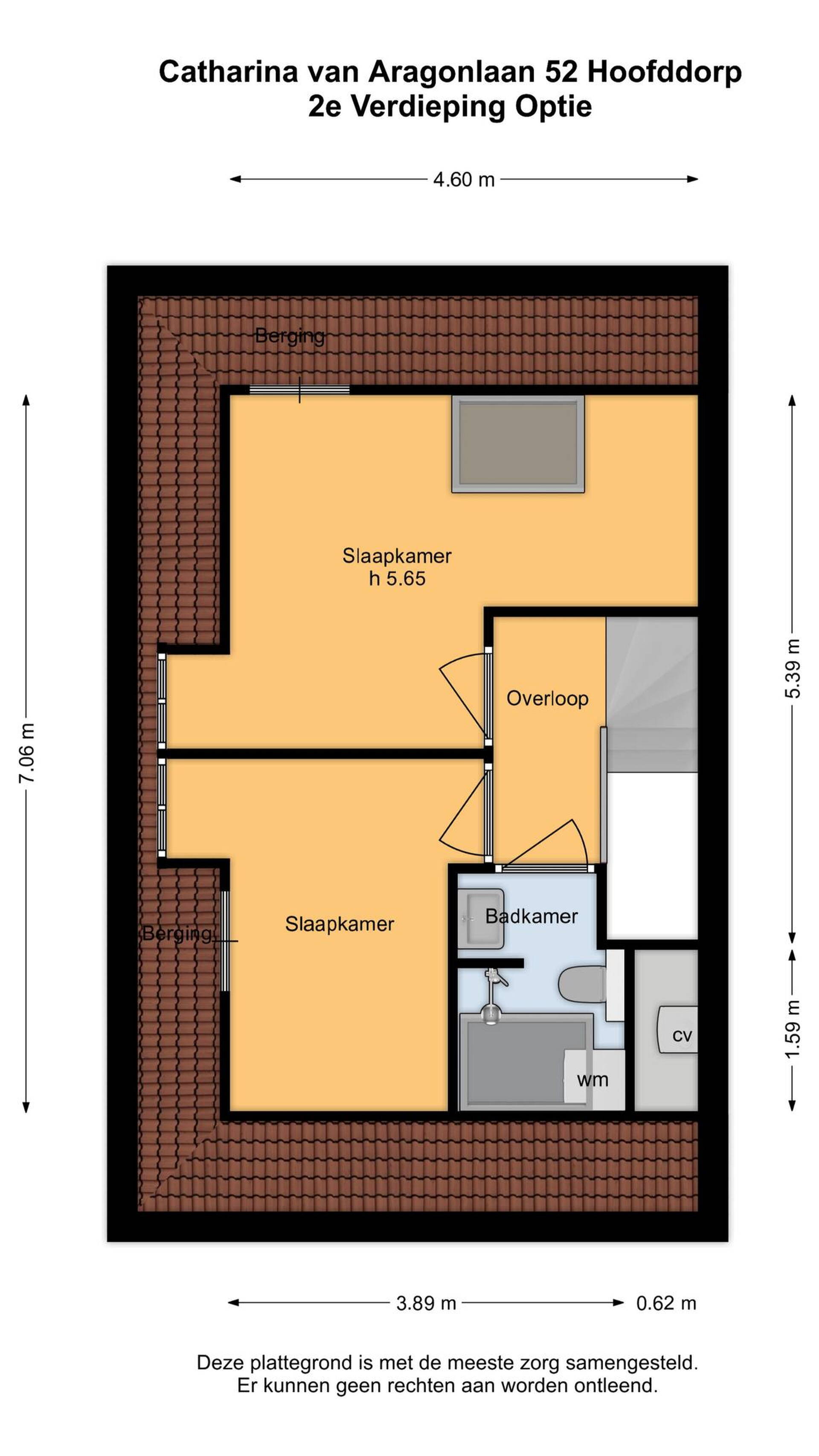
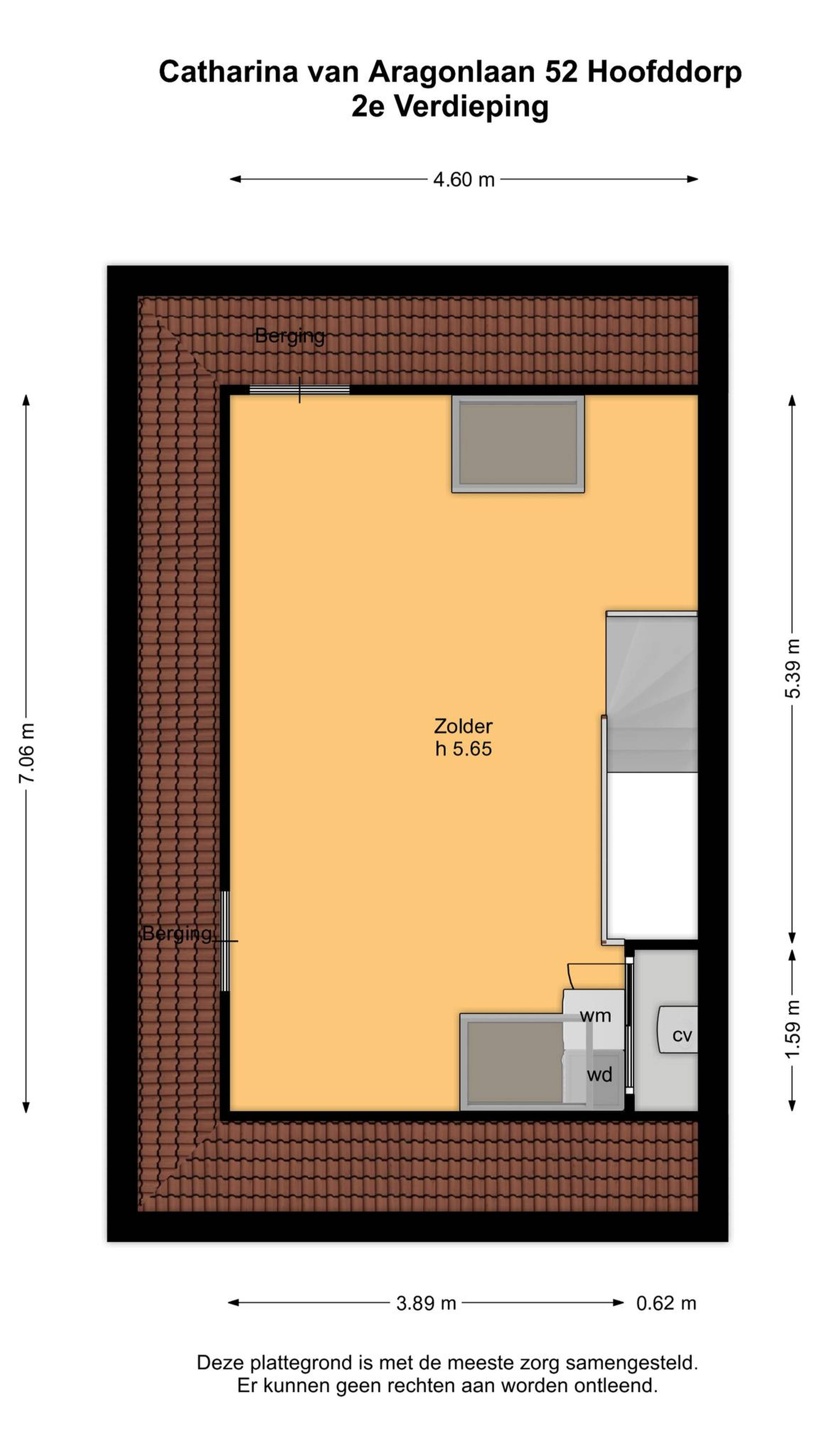
Een vaste trap geeft toegang tot de zeer ruime tweede verdieping met een nokhoogte van maar liefst 5.65 meter. Nu is dit één grote ruimte met twee dakramen en bergruimte in de schuinten van het dak. We hebben een extra plattegrond laten maken, waarop de potentie van deze verdieping in beeld is gebracht. Zo kunnen er twee slaapkamers, een tweede badkamer en een bergvliering gerealiseerd worden.
Tuin:
Dit fantastische huis wordt omringd door een mooi aangelegde en uitstekend onderhouden tuin, die qua stijl goed past bij de klassieke architectuur van het woonhuis. In de voortuin ziet u meerdere bomen, lage beplanting en een terras met een uitstekende zonligging. Aan de linkerzijde is een eigen achterom met poort, die leidt naar de achtertuin.
De achtertuin op het noordoosten biedt, dankzij de diepte en indeling met meerdere terrassen, gedurende de hele dag de mogelijkheid om van de zon te genieten. Aan de kant van het voetpad is een erfafscheiding met poort geplaatst, die voor een groot deel is begroeid. In de houten berging is ruimte voor de fietsen en het terras aan het water biedt de mogelijkheid om te zitten of te vissen. Of legt u hier de sup in het water om de omgeving te verkennen?
Bijzonderheden:
-Uitstekend geïsoleerde woning met veel wooncomfort;
-Verwarming en warm water via een HR-ketel (Intergas HReco, 2016);
-Vloerverwarming als hoofdverwarming (water) op de begane grond en elektrische vloerverwarming in de badkamer;
-Gasaansluiting en een plafonddoorvoer in de woonkamer voor realisatie van een gashaard;
-Verlaagd plafond in de woonkamer en de keuken, voorzien van inbouwspots (hoogte 252 cm);
-Hardhouten kozijnen met HR ++ glas;
-Schilderwerk buitenzijde juni 2023 (erkend schildersbedrijf);
-Vele extra’s zoals UTP-aansluitingen (woonkamer en slaapkamers), twee buitenkranen, glad stucwerk, luxe keuken en een stijlvolle badkamer;
-Energielabel A.
Wilt u deze woning komen bezichtigen?
Neem contact met ons op via het contactformulier, op telefoonnummer 023-2100 700 of op uwmakelaar@ remax.nl.
Wij nemen zo snel mogelijk contact met u op.