Wat een fantastische plek om te wonen in de groene, ruim opgezette wijk Overbos-Noord! Deze goed onderhouden woning met drie slaapkamers heeft veel pluspunten: een diepe achtertuin, geen directe buren aan de voor- en achterzijde, mooi uitzicht naar het groen en de auto kunt u op het achtergelegen terrein parkeren. Ook in de woning is er veel moois om te zien. Er zijn drie (mogelijk vier) slaapkamers, de badkamer met inloopdouche heeft een ruime opzet en de inbouwapparatuur in de keuken is van topkwaliteit.
Wordt dit uw nieuwe (t)huis in Hoofddorp?
Een voetbalveldje, speeltuintje en een basketbalveld zijn, ook voor kindervoetjes, maar een paar minuten lopen. Dit verklaart ook dat deze wijk heel populair is bij gezinnen. De huidige eigenaren van deze woning zijn de eerste eigenaren en zij hebben hier vele jaren met plezier gewoond. Nu is het tijd om de sleutel aan een nieuwe eigenaar over te dragen. Met de fiets bent u snel in het stadshart en het wijkwinkelcentrum met gezondheidscentrum is iets meer dan 200 meter lopen. De uitvalswegen richting Amsterdam, Schiphol, Aalsmeer, Haarlem en Leiden/Den Haag zijn vanuit Overbos-Noord goed bereikbaar.
Indeling:
Begane grond:
Via het rustige, autovrije pad en de voortuin loopt u naar de voordeur van deze lichte woning. De lichte hal met meterkast en trapopgang is, dankzij de woonkamerdeur met melkglas, heerlijk licht. De trap is in 2013 gerenoveerd en de massief eiken vloer uit 2004 ligt er nog prachtig bij.
De woonkamer met open keuken is een leefruimte om iedere dag volop van te genieten. Aan de voorzijde is het zitgedeelte, waar het uitzicht naar het groen geweldig is. Onder de trap is een handige bergkast en bij het eetgedeelte trekt het stalraam direct de aandacht. Mooie elementen zijn de houten vloer, de radiatorombouw met brede vensterbank en de kleuren op de muren.
Via het eetgedeelte loopt u de nette en ruime keuken in, die in 2021 is vernieuwd. De moderne hoekopstelling met zwart composiet blad is een superplek voor de kook- en bakliefhebber. Alle apparatuur van AEG en Bosch is ingebouwd: een inductie kookplaat, afzuigkap, vaatwasser, koel-/vriescombinatie, en een combioven.
Aan de keuken grenst een portaal, van waaruit de achtertuin en toiletruimte te bereiken zijn. De toiletruimte, uitgevoerd in wit en trendy zwart, is ingedeeld met een wandcloset en een fonteintje.
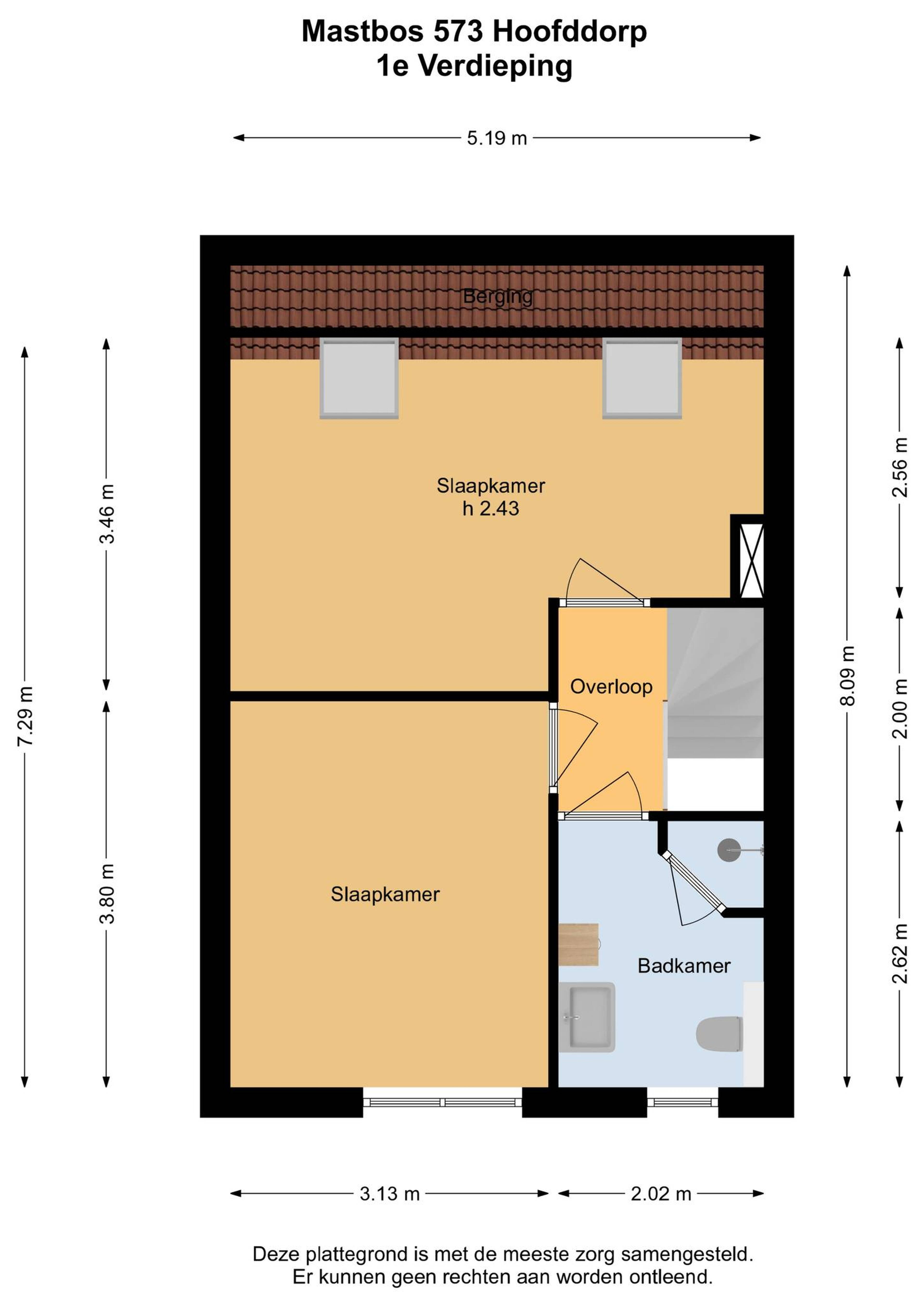
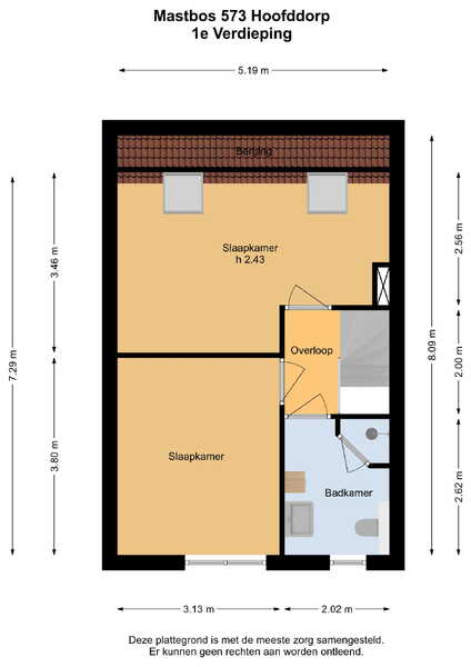
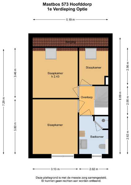
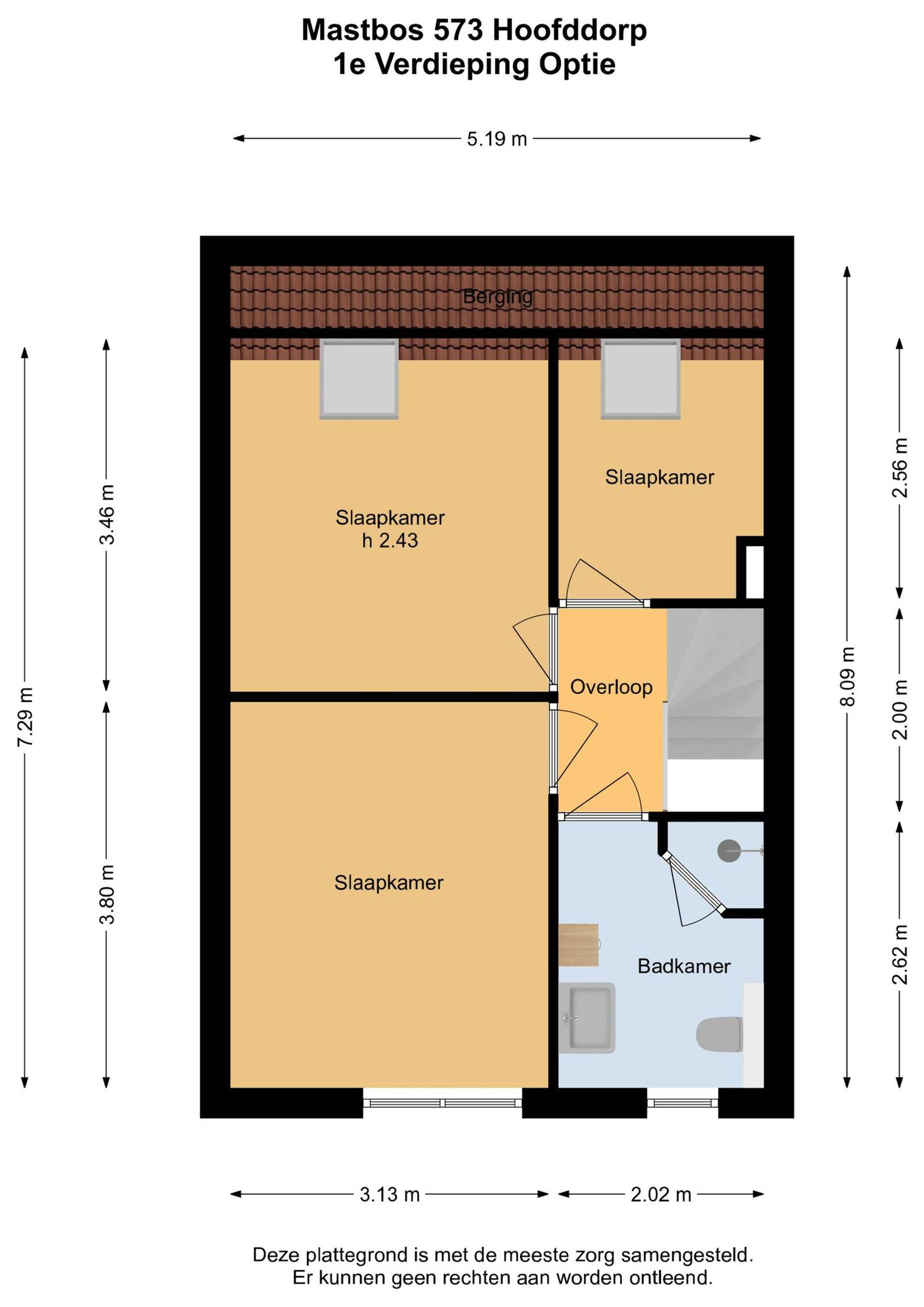
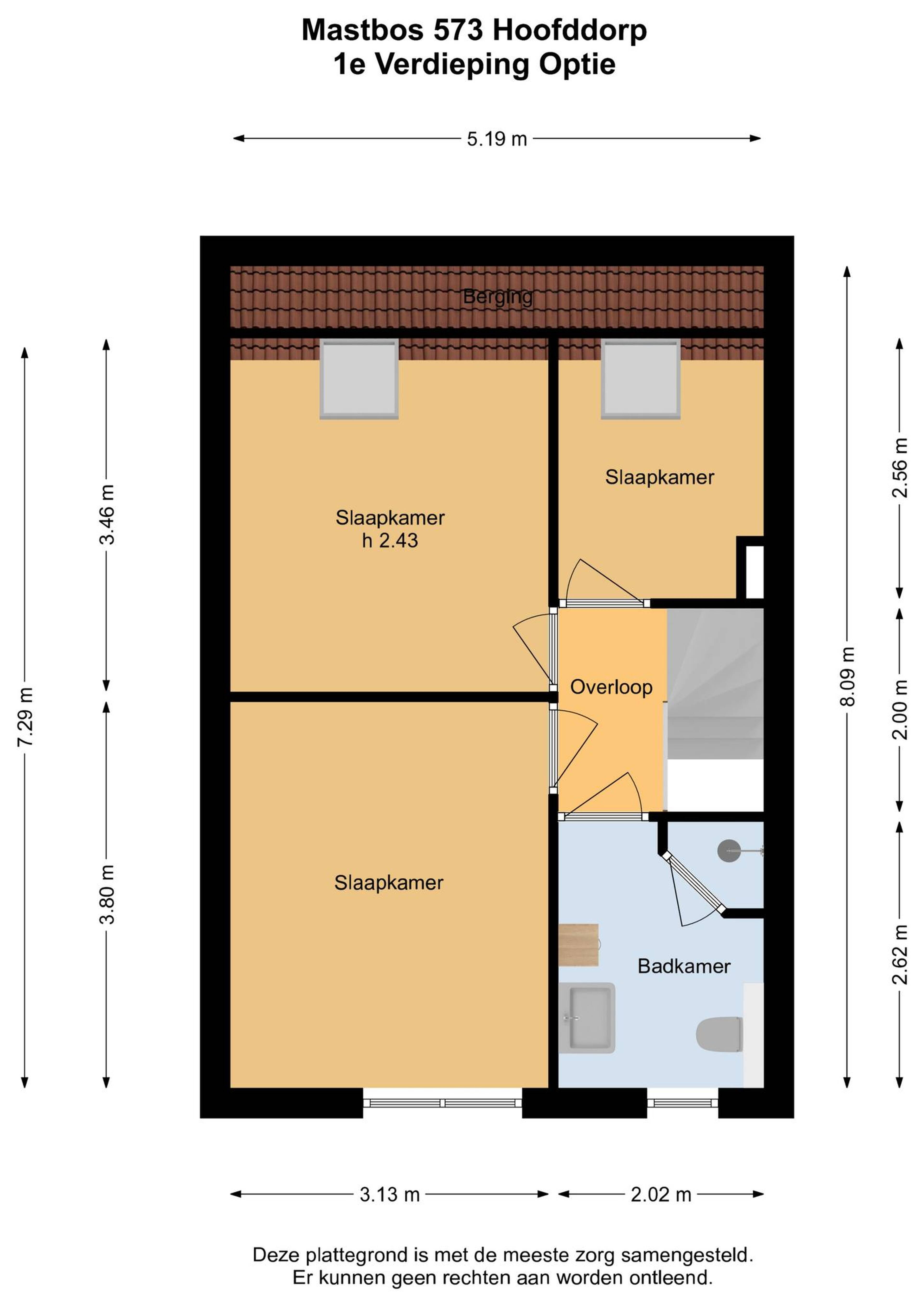
Eerste verdieping:
Vanaf de overloop zijn twee (mogelijk drie) slaapkamers en de badkamer te bereiken. Op bijna de hele verdieping ligt laminaat en de kleuren op de muren zorgen in iedere kamer voor een fantastische sfeer. Aan de voorzijde is de master bedroom en aan de achterzijde is een ruime slaapkamer, die eenvoudig gesplitst kan worden in twee kamers.
In de badkamer (2008) ziet u een in 2013 vernieuwde inloopdouche, een wandcloset en een wastafelmeubel met losse kast. Het plafond met inbouwverlichting vormt een mooie combinatie met het tegelwerk, de spiegel met zwarte rand en het witte planchet.
Tweede verdieping:
Dankzij het steile, schuine dak is de tweede verdieping heerlijk ruim. Er is een vaste trap, waardoor u deze verdieping als volwaardige etage kunt gebruiken. Er ligt, net als op de eerste verdieping, laminaat op de vloer.
Vanaf de overloop heeft u toegang tot een ruime slaapkamer en een wasruimte, die de mogelijkheid biedt om een tweede badkamer te realiseren. De slaapkamer heeft niet alleen een vaste kastenwand, maar ook een berging in de schuinte van het dak. In de wasruimte ziet u de HR-ketel, een L-vormig blad en vele kasten die veel bergruimte bieden.
Exterieur:
De voortuin met mooie boom en sierhekwerk met Amsterdammertjes geeft deze woning een fraaie indruk. Ook de diepe achtertuin op het noordwesten is mooi om te zien, mede dankzij de gevarieerde beplanting. Er zijn meerdere terrassen waardoor u een groot deel van de dag in de zon kunt zitten. Achter in de tuin, naast de stenen (fietsen)berging, is een poort naar het achtergelegen parkeerterrein.
Bijzonderheden:
-De woning heeft dak-, spouwmuur- en vloerisolatie;
-In 2015 is de platte dakbedekking vernieuwd;
-Kunststof kozijnen op de eerste verdieping en tweede verdieping (voorzijde) met HR++ glas;
-Houten kozijnen op de begane grond en twee dakramen (tweede verdieping achterzijde), merendeels met isolatieglas;
-Het buitenschilderwerk is in 2019 gedaan;
-Vernieuwde groepenkast (elektra) in 2021;
-Verwarming en warm water via een HR-ketel (Atag, 2011);
-Ruime, openbare parkeergelegenheid aan de achterzijde;
-Mogelijkheid voor een dakopbouw en een dakkapel aan de achterzijde;
-Energielabel B
Wilt u deze woning komen bezichtigen?
Neem contact met ons op via het contactformulier, op telefoonnummer 023-2100 700 of op uwmakelaar@ remax.nl.
Wij nemen zo snel mogelijk contact met u op.