Stijlvol, ruim en duurzaam wonen in het centrum van Hoofddorp, met de mogelijkheid om wonen met werken te combineren. Deze fantastische eindwoning is in de afgelopen jaren flink verbouwd, waarover u meer kunt lezen in de alinea ‘verbouwing en verduurzaming’. De gezellige en speelse woonkamer is op de eerste verdieping en de prachtige eetkamer met keuken is gesitueerd op de begane grond en staat in verbinding met de tuin. Tevens kan hier een aparte kantoor-/praktijkruimte gerealiseerd worden en verder heeft deze woning drie ruime slaapkamers, een luxe badkamer, dakterras, balkon en een berging voor de fietsen. Klussen is niet nodig, waardoor dit echt een buitenkans is op een fantastische plek in Hoofddorp!
Verbouwing en verduurzaming:
Deze instapklare eindwoning is flink verbouwd en verduurzaamd, waarbij een groot deel is uitgevoerd in de periode 2019 tot 2023. Het stucwerk op alle verdiepingen is aangebracht en dit jaar is er op iedere verdieping een airco-unit geplaatst voor het koelen en verwarmen van de woning. Op de begane grond en 1e verdieping ligt een lamel parketvloer (2020), terwijl op de 2e en 3e verdieping een mooie laminaatvloer ligt. De toiletruimte en badkamer zijn in 2020 vernieuwd en in 2021 is de keuken geplaatst. De HR-ketel is in 2018 vervangen en de mechanische ventilatieunit in 2022. Op het dak liggen 8 zonnepanelen (2020), waardoor deze instapklare woning energielabel A heeft.
Locatie:
De Juf van Kempenstraat is een rustige straat, die u met de auto kunt bereiken via de Cor van de Meerstraat. Over het bruggetje en het zebrapad loopt u zo naar het centrum met vele winkels, supermarkten en (afhaal)restaurants. Aan de overzijde van het water stoppen meerdere bussen richting Schiphol, het ziekenhuis en het treinstation. De uitvalswegen naar de A4, Haarlem, Schiphol en Aalsmeer zijn goed bereikbaar.
Indeling:
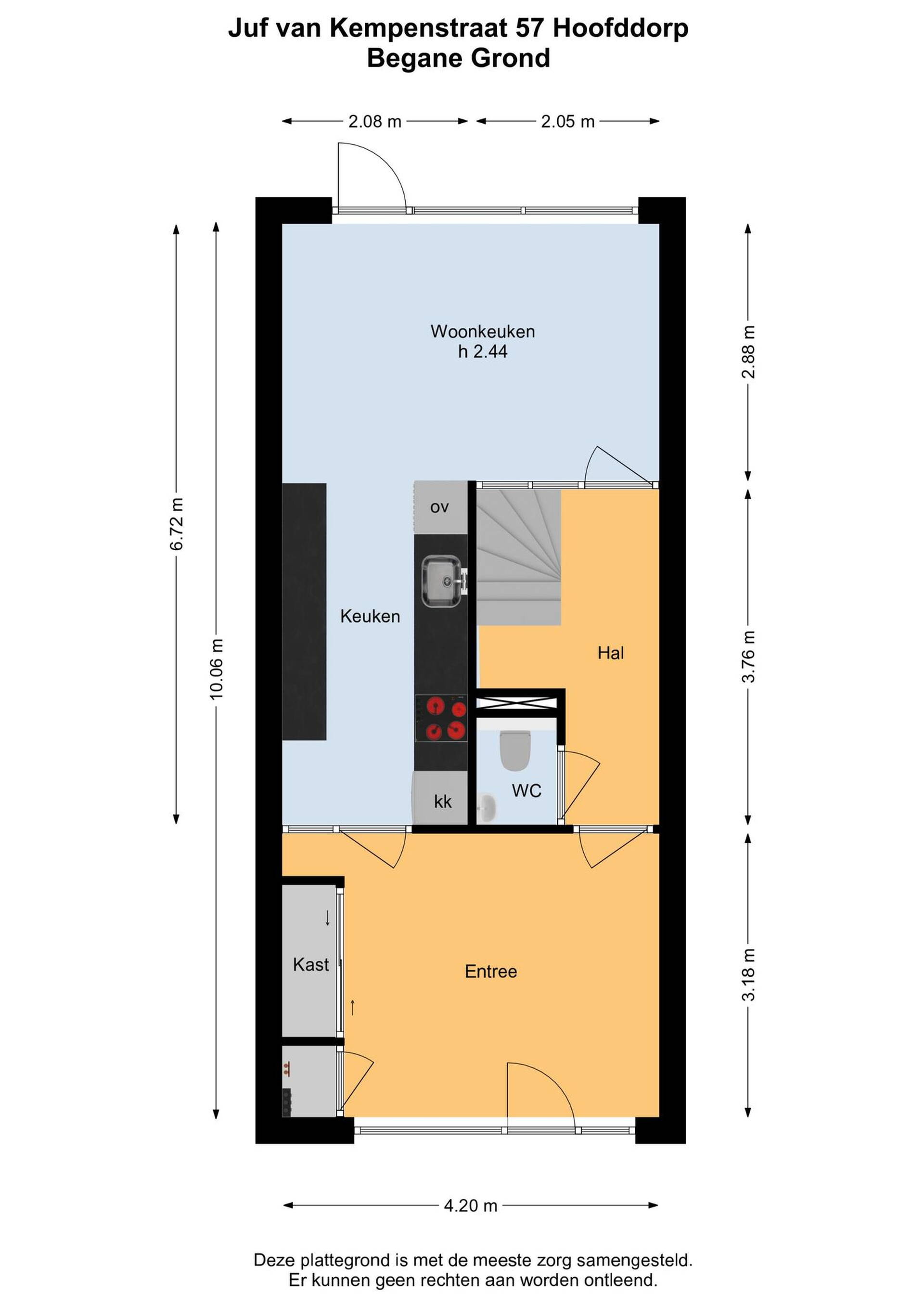
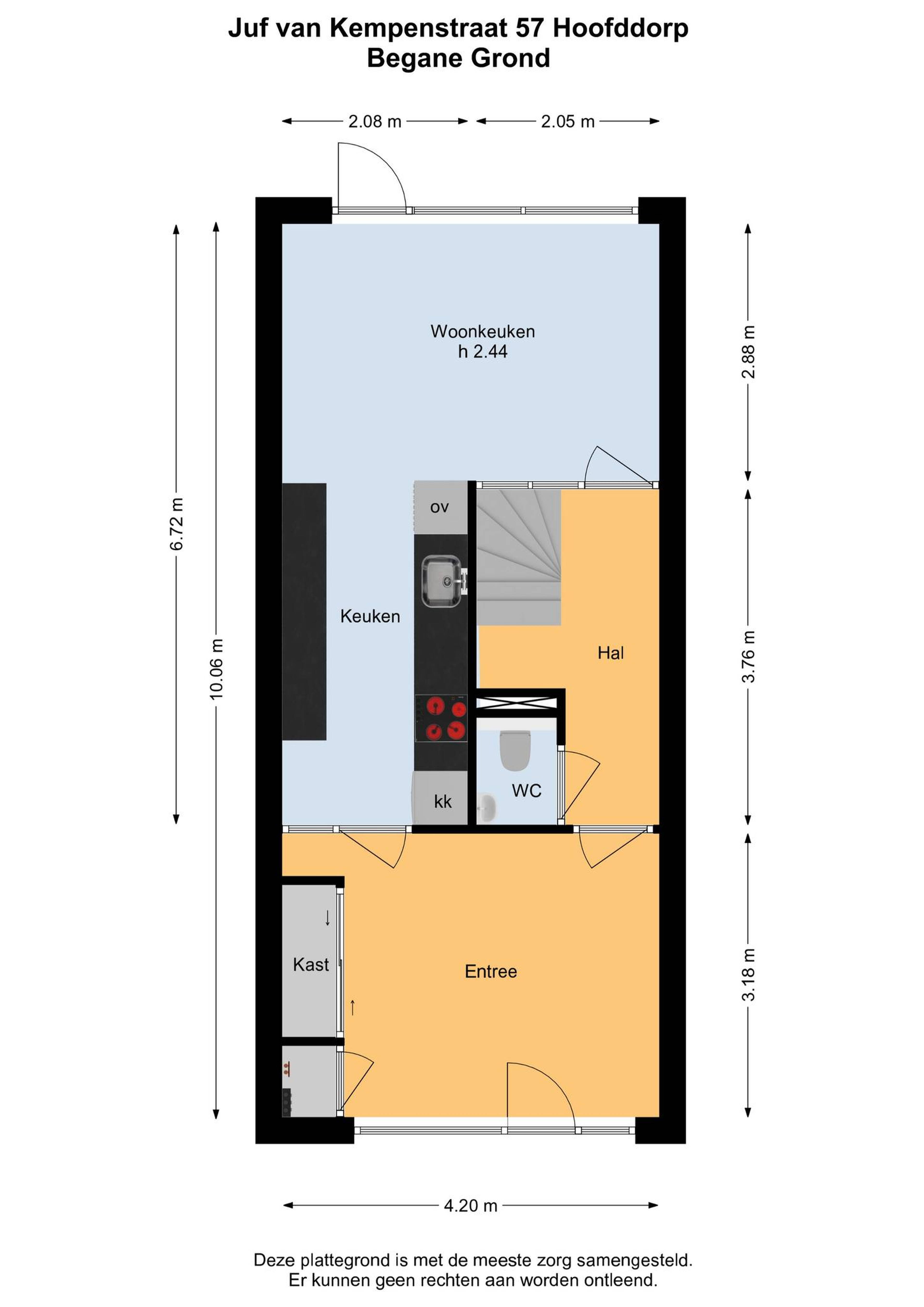
Begane grond:
Open de voordeur naar de zeer ruime hal met aan de linkerzijde een ingebouwde schuifwandkast, die als garderobe gebruikt kan worden. De eikenhouten lamelparketvloer ligt op de hele begane grond.
Aan de achterzijde is de L-vormige woonkeuken met grote ramen aan de zuidoostkant en een deur naar de tuin. De dubbele wandopstelling met composiet blad is een echte blikvanger en alle benodigde apparatuur is aanwezig: een 5 zones inductie kookplaat, afzuigkap, vaatwasser, koel-/vriescombinatie en een combi-oven/magnetron. Aan de tuinzijde van de woonkeuken is ruimte voor een grote eettafel.
In de tweede hal ziet u de trapopgang en de moderne toiletruimte met een wandcloset, fonteintje en grijze betegeling. Gaat u mee naar boven?
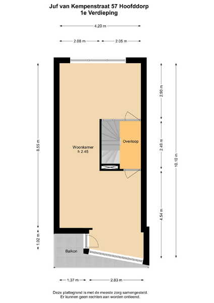
Eerste verdieping:
Vanaf de overloop kunt u aan twee zijden de woonkamer bereiken. Deze dubbele toegang heeft als voordeel dat de ruime woonkamer gesplitst kan worden in twee ruimtes. Denk hierbij aan een studeerkamer, tv-kamer of een speelkamer voor de kinderen. Ook op deze verdieping ligt een mooie eikenhouten lamelparketvloer en zijn de wanden gestuct.
De woonkamer is ingedeeld met een lichte zitkamer aan de voorzijde, een plek voor de piano en een fijn werkgedeelte aan de achterzijde. Vanuit de zitkamer heeft u toegang tot het balkon en aan de achterzijde, bij het werkgedeelte, heeft u uitzicht naar de tuin.
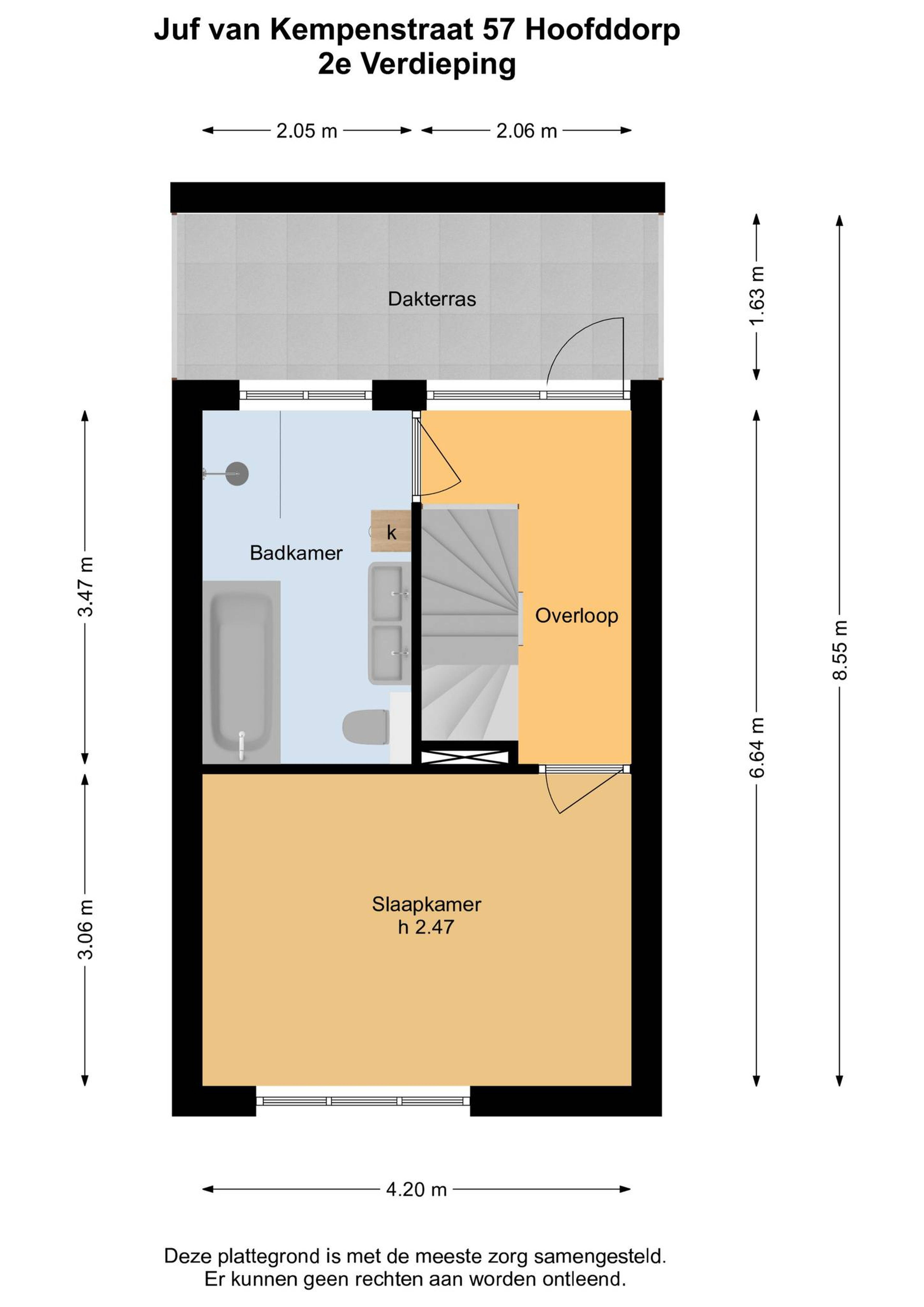
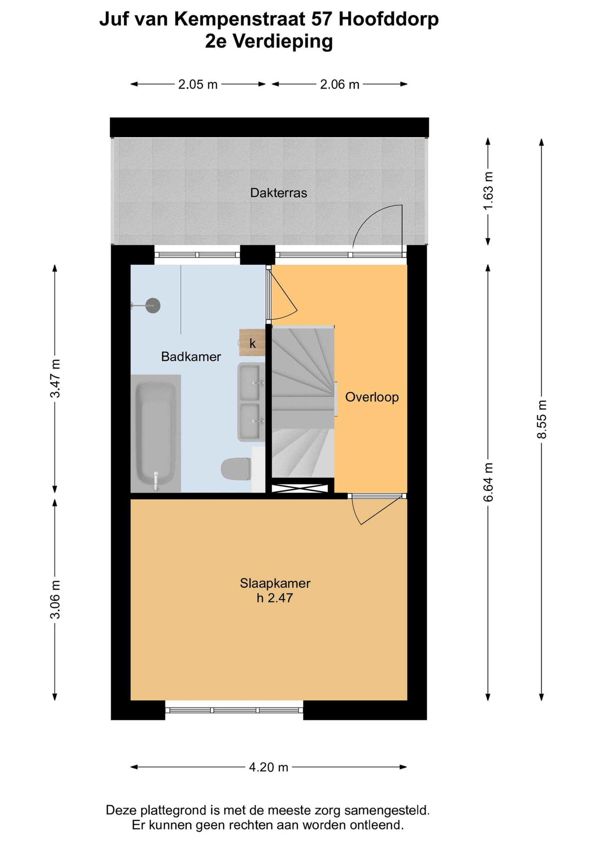
Tweede verdieping:
Een verdieping hoger zijn de master bedroom, luxe badkamer en het dakterras. Op de vloer van de overloop en master bedroom ligt laminaat en in 2020 is de badkamer geheel vernieuwd.
De master bedroom heeft een mooie maatvoering en in de luxe badkamer ziet u prachtige kunststof tegels, een ligbad, grote inloopdouche, tweede toilet en een extra brede wastafel met spiegel. In de hoge badkamerkast kunt u veel spullen opbergen.
Derde verdieping:
Dit fantastische huis heeft niet drie, maar vier verdiepingen. Op de bovenste verdieping zijn een lichte overloop, twee slaapkamers en een diepe berging. In de berging hangen de HR-ketel en mechanische ventilatie unit, die beiden in 2020 zijn vernieuwd. Ook kunnen in deze ruimte de wasmachine en droger staan.
Aan de voorzijde is een ruime slaapkamer met Frans balkon en de slaapkamer aan de achterzijde is nu in gebruik als kleedruimte. De afwerking van de vloer en wanden is identiek aan de tweede verdieping.
Tuin:
Dit fantastische huis heeft een balkon op de eerste verdieping (voorzijde), een dakterras op de tweede verdieping (achterzijde) en een mooi aangelegde achtertuin op het zuidoosten. In de tuin ziet u twee terrassen, gras en borders met gevarieerde beplanting. De mooie boom is de perfecte boomhut en achter in de tuin, naast de berging, is een poort naar de steeg.
Bijzonderheden:
-Hardhouten kozijnen, voorzien van isolatieglas (HR);
-De woning is voorzien van dak-, spouwmuur- en vloerisolatie;
-Verwarming en warm water via een HR-ketel (Atag CW5, 2018);
-De mechanische ventilatie unit is in 2022 vernieuwd;
-Vier airco-units (koelen en verwarmen), geplaatst in 2023;
-Het buitenschilderwerk aan de achterzijde is in 2020 uitgevoerd;
-8 zonnepanelen van 310 Wp per paneel;
-Energielabel A.