** English translation below**
Nabij het centrum van Hoofdorp gelegen, deze ruime kluswoning met veel potentieel welke naar eigen smaak is te verbouwen.
Voor de klusser met 2 rechter handen biedt deze woning veel mogelijkheden om er een fijn en comfortabel huis van te maken.
De woning is gelegen in een kindvriendelijke buurt grenzend aan een groot plantsoen met speeltoestellen. Met het stadscentrum in de nabijheid en voorzieningen zoals scholen, winkels, openbaar vervoer op een steenworp afstand maken de ligging van deze woning ideaal.
De zonnige tuin is omsloten en ligt op het zuidwesten.
Parkeren doet u bijna voor de deur.
Indeling:
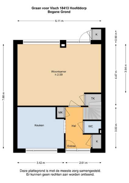
Begane grond:
U komt binnen in de hal met toiletruimte, trapopgang en toegang tot de separate keuken en de tuingerichte woonkamer.
Eerste verdieping:
Op deze verdieping vindt u drie ruime slaapkamers en een badkamer.
Tweede verdieping:
Via een vaste trap komt u op de ruime overloop waar plaats is voor een wasmachine/droger en de opstelling van de C.V. ketel.
Verder vindt u op deze verdieping een ruime slaapkamer voorzien van een dakkapel.
Exterieur:
De zonnige tuin heeft een ligging op het zuidwesten en geeft veel privacy.
Ideaal is de poort achter in de tuin zodat u makkelijk in en uit kunt.
Kortom, deze kluswoning biedt een uitgelezen kans voor diegene die op zoek is naar een centraal gelegen woning met veel potentieel.
Bijzonderheden:
-Energielabel C;
-Zonnige achtertuin;
-Centraal en rustig gelegen;
-Kindvriendelijke buurt;
-Ruime parkeergelegenheid in de straat;
- Niet-zelfbewoningsclausule van toepassing.
Wilt u deze woning komen bezichtigen?
Neem contact met ons op via het contactformulier, op telefoonnummer 023-2100701 of op uwmakelaar@ remax.nl. Wij nemen zo snel mogelijk contact met u op.
----------------------------------------------------------
Located near the center of Hoofddorp, this spacious fixer-upper with a lot of potential which can be renovated to your own taste.
For the handyman with two right hands, this house offers many possibilities to make it a nice and comfortable house.
With the city center in the vicinity and facilities such as schools, shops, public transport nearby, the location of this house is ideal.
The sunny garden is enclosed and faces southwest. Parking is available almost in front of the door.
Layout:
Ground floor:
You enter the hall with toilet, staircase and access to the separate kitchen and garden-oriented living room.
First floor:
On this floor you will find three spacious bedrooms and a bathroom.
Second floor:
Via a fixed staircase, you reach the spacious landing with space for a washing machine/dryer and the central heating boiler. Additionally, you will find a spacious bedroom on this floor with a dormer.
Exterior:
The sunny garden is located on the southwest and offers a lot of privacy.
The gate at the back of the garden is ideal so that you can easily get in and out.
In short, this fixer-upper offers a great opportunity for those looking for a centrally located home with a lot of potential.
Particularities:
- Energy label C;
- Sunny backyard;
- Centrally and quietly located;
- Child-friendly neighborhood;
- Ample parking in the street;
- Non-self-occupancy clause applicable
Do you want to view this property? Contact us via the contact form, phone number 023-2100701, or email us at uwmakelaar@ remax.nl. We will contact you as soon as possible.