Let op: Weer beschikbaar!
Wilt u deze woning komen bezichtigen?
Neem contact met ons op via het contactformulier, op telefoonnummer 023-2100702 of op uwmakelaar@ remax.nl. Wij nemen zo snel mogelijk contact met u op.
(English below)
U hoeft de zoektocht naar een instapklare woning niet op de lange baan te schuiven, want deze uitgebouwde hoekwoning in de wijk Sportdorp in Floriande is een flitsende start. De woonkamer met woonkeuken is heerlijk ruim en het grote kook-/spoeleiland met kastenwand is een echte blikvanger. Boven zijn drie slaapkamers, een ruime badkamer met whirlpoolbad en een grote bergzolder. De mooi aangelegde, zonnige voor- en achtertuin zorgen ervoor dat deze woning de gouden medaille meer dan verdient.
De woning is mooi gelegen in een rustige straat met openbare parkeergelegenheid en een klein speeltuintje aan de achterzijde. Verder woont u vlak bij winkelcentrum Floriande (met een weekmarkt op zaterdag), basis- en middelbaar onderwijs, kinderopvang en openbaar vervoer. Ook voor sport en recreatie woont u hier op de juiste plek: Park21, de Boseilanden, Toolenburgerplas, het Haarlemmermeerse Bos en Sportcomplex Koning Willem-Alexander zijn lopend en met de fiets goed bereikbaar. En misschien kunt u komende winter wel schaatsen in de wijk, want aan water is geen gebrek.
Indeling:
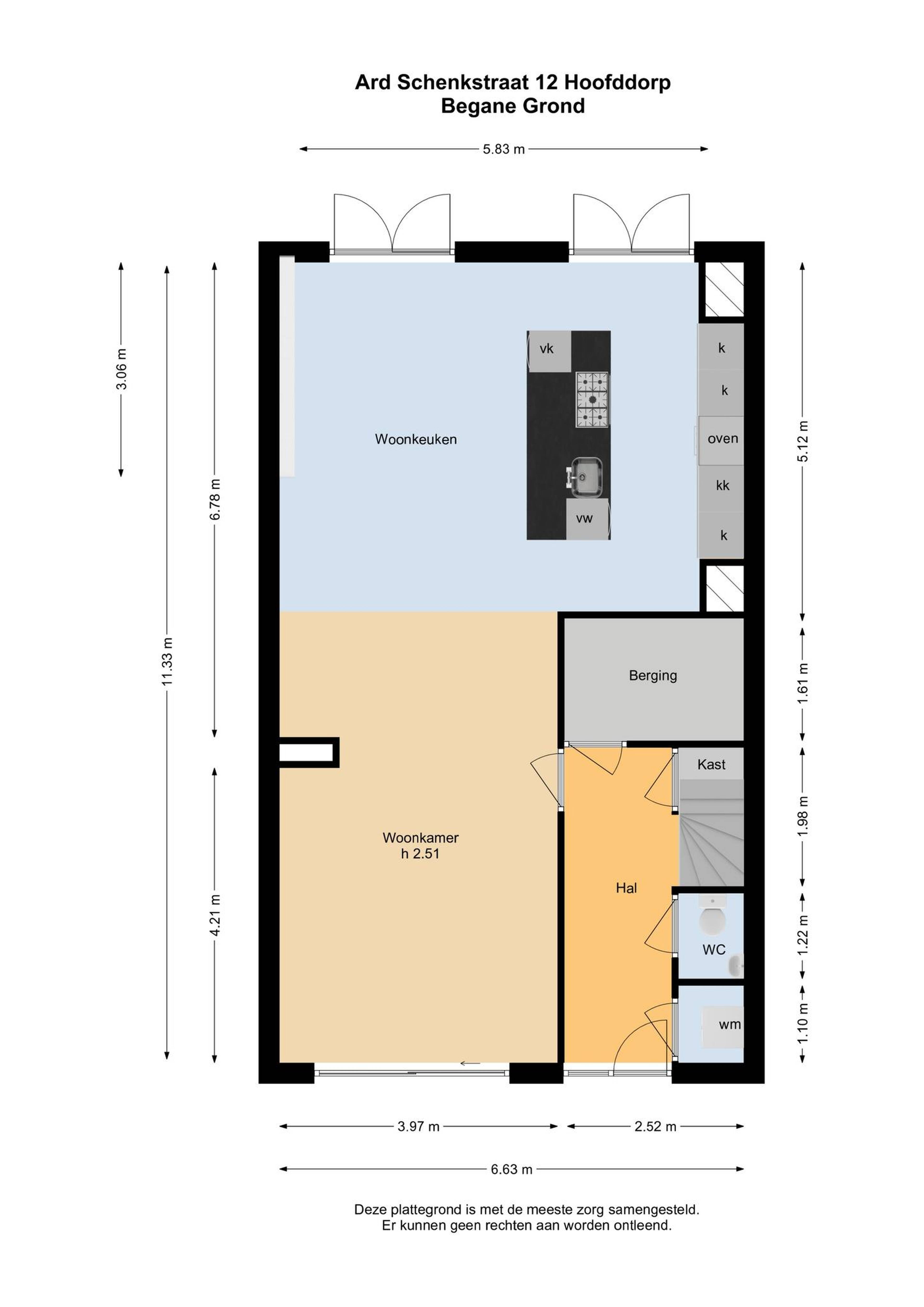
Begane grond:
Loop door de mooie, groene voortuin naar de entree van deze verrassend ruime woning. Via de witte voordeur komt u in de ruime hal met aan de rechterzijde de wasruimte, toiletruimte met fonteintje en een handige bergkast onder de trap. In de wasruimte kunnen de wasmachine en droger op elkaar staan. Er handig is de inpandige berging, die nu als provisieruimte in gebruik is. De mooie pvc-vloer ligt niet alleen in de hal, maar ook in de woonkamer en keuken.
Dankzij de uitbouw is de woonkamer met woonkeuken meer dan 11.30 meter diep. Aan de achterzijde zijn dubbele openslaande deuren naar de tuin en bij het zitgedeelte ziet u een schuifpui naar de voortuin. Het stucwerk en behang op de wanden, de pvc-vloer en het gestucte plafond zorgen ervoor dat u niet hoeft te verbouwen. Opvallend is de breedte van het zitgedeelte, waardoor u meer dan genoeg ruimte heeft voor een grote hoekbank, tv-meubel en een hoge kast.
Vrienden of familie uitnodigen is geen probleem, want in de woonkeuken is genoeg ruimte om een grote eettafel neer te zetten. Het uitzicht naar de moderne keuken met een kook-/spoeleiland en apparatenwand is van ongekende klasse. Alle benodigde apparatuur is ingebouwd: een 5-pits gaskookplaat, afzuigkap, Quooker, vaatwasser, koelkast, vriezer en een combi-oven/magnetron.
Eerste verdieping:
Dankzij het raam in de zijgevel zijn de trapopgang en overloop heerlijk ruim. Er is ruimte om garderobekasten te plaatsen op de overloop en de pvc-vloer ligt op nagenoeg de hele verdieping.
Aan de voorzijde is een meer dan 4.70 meter brede slaapkamer met een speels schuin dak. Deze kamer is nu als werkkamer in gebruik. Aan de achterzijde zijn twee mooie slaapkamers, waaronder de ruime hoofdslaapkamer. Met een breedte van 2.50 meter kan de derde slaapkamer worden ingericht met twee losse bedden of kan het bed in de breedte geplaatst worden.
De zeer ruime, L-vormige badkamer is ingedeeld met een groot whirlpoolbad, inloopdouche, tweede toilet en een tweepersoons wastafelmeubel. De lichte tegels op de wanden, donkere vloer en inbouwverlichting zorgen voor een badkamer met een mooie uitstraling.
Zolder:
De vlizotrap op de overloop geeft toegang tot de geïsoleerde bergzolder met een nokhoogte van 1.60 meter.
Exterieur:
Aan de voorzijde is een mooi aangelegde tuin met beukenhaag, een terras en meerdere bomen, die zorgen voor natuurlijke schaduw. Openslaande deuren in de keuken en het eetgedeelte van de woonkamer geven toegang tot de diepe achtertuin. Hier kunt u, ondanks de ligging op het noordwesten, volop van de zon genieten. Een groot deel van de tuin is bestraat en de beplanting is divers, wat het geheel veel sfeer geeft. De met klimop begroeide erfafscheiding, ruime berging, overkapping en de poort naar de steeg maken de tuin meer dan af.
Bijzonderheden:
-Mogelijkheid voor het realiseren van een dakopbouw en plaatsing van zonnepanelen;
-Zeer ruime, lichte woonkamer met woonkeuken;
-Mooie uitbouw aan de voor- en achterzijde;
-Drie slaapkamers
- Luxe badkamer
You don't have to put off the search for a ready-to-move-in house, because this extended corner house in the Sportdorp district in Floriande is off to a flying start. The living room with kitchen diner is wonderfully spacious and the large cooking/rinsing island with cupboard wall is a real eye-catcher. Upstairs are three bedrooms, a spacious bathroom with whirlpool bath and a large attic. The beautifully landscaped, sunny front and back garden ensure that this house more than deserves the gold medal.
The house is nicely located in a quiet street with public parking and a small playground at the rear. You also live near the Floriande shopping center (with a weekly market on Saturdays), primary and secondary education, childcare and public transport. You are also in the right place for sports and recreation: Park21, the Boseilanden, Toolenburgerplas, the Haarlemmermeerse Bos and Sports Complex Koning Willem-Alexander are easily accessible on foot and by bike. And maybe you can ice skate in the district next winter, because there is no shortage of water.
Layout:
Ground floor:
Walk through the beautiful, green front garden to the entrance of this surprisingly spacious home. Through the white front door you enter the spacious hall with on the right side the laundry room, toilet with sink and a handy storage cupboard under the stairs. The washing machine and dryer can be placed on top of each other in the laundry room. There is a handy storage room, which is now used as a pantry. The beautiful PVC floor is not only in the hall, but also in the living room and kitchen.
Thanks to the extension, the living room with kitchen diner is more than 11.30 meters deep. At the rear are double doors to the garden and at the seating area you will see sliding doors to the front garden. The stucco and wallpaper on the walls, the PVC floor and the plastered ceiling ensure that you do not have to renovate. The width of the seating area is striking, giving you more than enough space for a large corner sofa, TV cabinet and a high cabinet.
Inviting friends or family is no problem, because the kitchen-living room has enough space to set up a large dining table. The view to the modern kitchen with a cooking/rinsing island and appliance wall is of unparalleled class. All necessary equipment is built in: a 5-burner gas hob, extractor hood, Quooker, dishwasher, refrigerator, freezer and a combi oven/microwave.
First floor:
Thanks to the window in the side wall, the staircase and landing are wonderfully spacious. There is space to place wardrobes on the landing and the PVC floor is on almost the entire floor.
At the front is a more than 4.70 meters wide bedroom with a playful sloping roof. This room is now used as an office. At the rear are two beautiful bedrooms, including the spacious master bedroom. With a width of 2.50 meters, the third bedroom can be furnished with two single beds or the bed can be placed in width.
The very spacious, L-shaped bathroom has a large whirlpool bath, walk-in shower, second toilet and a double washbasin. The light tiles on the walls, dark floor and recessed lighting provide a bathroom with a beautiful appearance.
Loft:
The loft ladder on the landing gives access to the insulated attic with a ridge height of 1.60 meters.
Particularities:
- Possibility of realizing a roof structure and installing solar panels;
- Very spacious, bright living room with kitchen diner;
- Beautiful extension at the front and rear;
- Three bedrooms
- Luxury bathroom