Wilt u deze woning komen bezichtigen?
Neem contact met ons op via het contactformulier, op telefoonnummer 023-2100702 of op uwmakelaar@ remax.nl. Wij nemen zo snel mogelijk contact met u op.
RE/MAX Uw Makelaar houdt zich aan de richtlijnen van het RIVM en de Rijksoverheid; voor meer informatie verwijzen wij u graag naar onze website.
Zéér ruim, stijlvol en gelijkvloers wonen op een toplocatie in Floriande met een adembenemend uitzicht. Dit fantastische appartement van maar liefst 140m2 is gesitueerd op de zevende verdieping waardoor u iedere dag kunt genieten van een onbelemmerd uitzicht naar Schiphol, Aalsmeer, Nieuw-Vennep en Lisse.
Geniet van de ruime woonkamer met open keuken, de fraaie loggia/serre en de drie ruime slaapkamers die dit appartement uniek maken in de regio. Uiteraard is het appartement met een lift te bereiken en heeft u, direct naast de achterdeur, een vaste parkeerplaats tot uw beschikking.
Het appartement is gesitueerd op eiland 6 in de populaire wijk Floriande. Aan de overzijde van de Waddenweg is een gezondheidscentrum met een huisarts, apotheek en fysiopraktijk. Het is maar 750 meter lopen naar winkelcentrum Floriande met meerdere supermarkten, winkels, speciaalzaken, leuke restaurantjes en een weekmarkt. Het Spaarne ziekenhuis is vlakbij (naast eiland 12) en vlak om de hoek stopt de bus richting Hoofddorp centrum/station, Schiphol, Zuidas/Arena en Amsterdam WTC. Met een overstap bij het Spaarne ziekenhuis bent u in korte tijd in Haarlem (centrum/station), Amstelveen, Ouderkerk a/d Amstel en bij Bijlmer/Arena. Met de auto zijn de uitvalswegen richting Haarlem, Amsterdam, Utrecht en Leiden zeer goed te bereiken.
Indeling:
Appartementengebouw:
Het goed beveiligde appartementengebouw heeft een afgesloten, gezamenlijke entree van waaruit u met de trap en lift de bovengelegen verdiepingen kunt bereiken. Dankzij de video-intercom kunt u vanuit het appartement horen én zien wie beneden aanbelt. De vaste parkeerplaats van dit appartement is pal naast de entree aan de achterzijde en u heeft de beschikking over een ruime privéberging (circa 9m2) voor de fietsen en andere spullen. Gaat u mee naar de zevende verdieping om van de ruimte en het prachtige uitzicht te genieten?
Appartement:
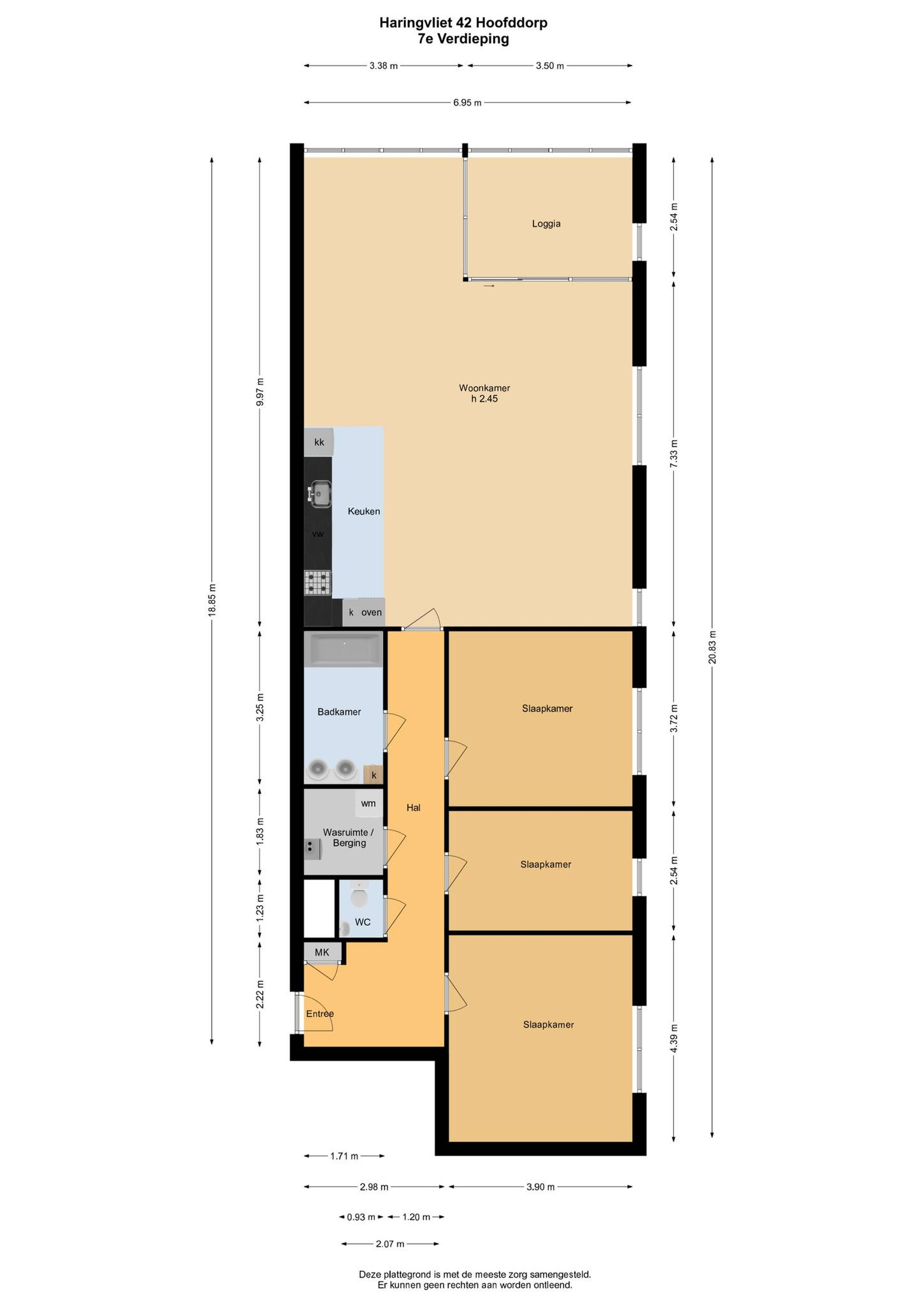
Aan het einde van de hal is de ruime woonkamer met open keuken, voorzien van grote ramen aan twee zijden en een schuifpui naar de zonnige serre/loggia. De woonkamer, keuken en serre/loggia zijn samen circa 70m2 groot en bieden genoeg ruimte om al uw meubels een plekje te geven. In de keuken heeft u genoeg werk- en bergruimte en alle benodigde apparatuur is ingebouwd: een inductie kookplaat, afzuigkap, combimagnetron, koelkast, vriezer en een vaatwasser. Voor de wasmachine, droger en andere spullen is de inpandige berging de perfecte ruimte.
Dit fijne appartement heeft maar liefst drie slaapkamers van resp. 17, 15 en 10m2. Hierdoor is dit appartement geschikt om vanuit huis te werken, een fijne thuisbasis voor een gezin en kunt u (klein)kinderen laten logeren. Vanuit iedere slaapkamer heeft u prachtig, weids uitzicht over Hoofddorp en de omgeving.
Vanuit de hal heeft u toegang tot de fraaie badkamer met een whirlpoolbad/douchecombinatie, zwarte knuffelradiator en een wastafelmeubel met twee wastafels. De wanden en vloer zijn betegeld in een mooie kleurencombinatie en het plafond is voorzien van dimbare inbouwverlichting. Het toilet zit in een aparte ruimte, te bereiken vanuit de hal waardoor bezoek niet in de badkamer hoeft te komen.
Exterieur:
De serre/loggia is een fijne plek om ‘s ochtends en ’s middags tot na 14:00 uur van de zon te genieten. Als het te hard waait zit u beschut achter het glas en op een eenvoudige wijze zijn de ramen te openen om optimaal van het buitenleven te genieten.
Bijzonderheden:
-Luxe appartementencomplex met een actieve VVE;
-Vaste parkeerplaats, direct naast de entree aan de achterzijde;
-Uitstekend geïsoleerd appartement met energielabel A+;
-Verwarming en warm water via een recent vernieuwde HR-ketel (huur € 29,50 per maand) en een warmte
terugwin installatie;
-De huur van de HR-ketel (nu 1 jaar oud) is na 2 jaar per maand opzegbaar. Vraag de makelaar naar de details;
-Uitzonderlijk ruim appartement (140m2) met drie slaapkamers;
-Fantastisch vrij uitzicht aan twee zijden en een gunstige zonligging.