Wilt u deze woning komen bezichtigen? Neemt u dan contact op met de behandelend makelaar Wouter Huizinga middels e/mail of telefoon:
E: wouterhuizinga@ remax.nl
T: 023-2100707.
RE/MAX Uw Makelaar houdt zich aan de richtlijnen van het RIVM en de Rijksoverheid; voor meer informatie verwijzen wij u graag naar onze website.
Acropolis 45 Hoofddorp
Stijlvol, ruim wonen in Floriande-Oost (de Pleinen) met mooi uitzicht aan de voorzijde. Deze uitgebouwde woning aan de Acropolis heeft maar liefst 156m2 woonoppervlak en een zonnige tuin op het zuidoosten. De woonkamer is maar liefst 43m2 groot en de keuken, is een fijne plek voor de kookliefhebber. Boven zijn drie slaapkamers, de badkamer en een enorme zolderkamer waar twee extra slaapkamers gerealiseerd kunnen worden.
Nog enkele voordelen: energielabel A, vloerverwarming op de begane grond en parkeergelegenheid op eigen terrein. Wordt dit uw nieuwe ‘thuis’?
Het is circa 600 meter lopen naar winkelcentrum Floriande, een basisschool, het tweetalige Haarlemmermeer Lyceum en de bibliotheek. Verder biedt deze wijk alles wat u nodig heeft: diverse medische voorzieningen, kinderopvang, internationaal basisonderwijs, sportcomplex Koning Willem-Alexander, Park21 en recreatiegebied Toolenburger plas. Bij het winkelcentrum is iedere zaterdag een leuke markt en het Haarlemmermeerse Bos nodigt uit voor een wandeling of hardlooptraining. Met de auto zijn de snelwegen A4, A5, A9 en A10 richting Amsterdam, Haarlem, Den Haag en luchthaven Schiphol snel te bereiken. Liever met het openbaar vervoer? De snelle R-net busverbinding heeft goede verbindingen met Schiphol, Haarlem en Amsterdam WTC/Zuidas.
Indeling:
Begane grond:
Deze lichte woning heeft een ruime hal, voorzien van een lichte tegelvloer met vloerverwarming. Deze mooie vloerafwerking ziet u ook in de woonkamer en keuken. Rechts in de hal zijn de nette toiletruimte met fonteintje, de meterkast en de met tapijt beklede trap naar de eerste verdieping.
De uitgebouwde woonkamer is een grote, lichte leefruimte van meer dan 43m2. De brede schuifpui zorgt voor veel lichtinval onder de trap is een handige bergkast. Zowel de wanden als het plafond zijn in een lichte kleur geschilderd en op de vloer liggen dezelfde plavuizen als in de hal en keuken, eveneens met vloerverwarming. In deze mooie leefruimte is genoeg plek voor een grote hoekbank, tv-meubel en een eettafel.
Aan de voorzijde is de ruime, lichte eetkeuken met twee grote ramen aan de noordwestkant. De keukenopstelling heeft een spoeleiland, die ook gebruikt wordt als eetbar. Het merendeel van de apparatuur is ingebouwd (2015): een gaskookplaat, afzuigkap, vaatwasser, oven, combimagnetron en een vriezer. De grote Amerikaanse koelkast wordt ter overname aangeboden.
Eerste verdieping:
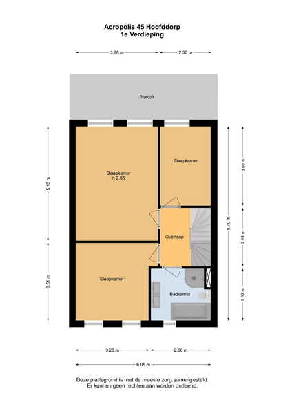
Vanaf de overloop zijn drie ruime slaapkamers en de badkamer te bereiken. Op nagenoeg de hele verdieping ligt een mooie laminaatvloer en de slaapkamers zijn maar liefst 18.9, 12 en 8.3m2 groot. Aan de achterzijde zijn twee slaapkamers, waaronder de ouderslaapkamer en aan de voorzijde zijn de derde slaapkamer en badkamer gesitueerd.
De badkamer heeft dezelfde kleurstelling als de toiletruimte en is ingedeeld met een whirlpool, kwartronde douche, tweede toilet, wandradiator en een breed wastafelmeubel. Boven het wastafelmeubel hangt een 4-deurs spiegelkast en het raam in de voorgevel zorgt voor lichtinval.
Tweede verdieping:
Via een vaste trap te bereiken zolderkamer met twee dakramen aan de voorzijde en een nokhoogte van maar liefst 4.65 meter. Op de vloer ligt laminaat en achter de felrode wand is de ruime cv-wasruimte gesitueerd. De enorme zolderkamer biedt de mogelijkheid om twee grote slaapkamers te realiseren en dankzij de hoogte behoort een bergzolder eveneens tot de mogelijkheden.
Exterieur:
Via de schuifpui in de woonkamer stapt u de achtertuin in, gesitueerd op het zuidoosten. De houten schuttingen zijn deels begroeid met klimop en de tuin is grotendeels bestraat, waardoor er genoeg ruimte is voor een loungeset en een tuintafel met stoelen. In de hoek van de tuin staat een houten berging en er is een poort naar de steeg.
De diepe voortuin is geheel bestraat waardoor er altijd op eigen terrein geparkeerd kan worden en er plek is voor een zitje om in de avondzon te zitten.
Bijzonderheden:
-Verwarming en warm water via een HR-ketel (Nefit Trendline HRC25, circa 2014) en een zonneboiler;
-Vloerverwarming op de begane grond;
-De whirlpool van het bad dient gerepareerd te worden;
-Hardhouten kozijnen, voorzien van isolatieglas;
-Het buitenschilderwerk is in 2021 gedaan;
-De woning heeft dak-, spouwmuur- en vloerisolatie;
-Energielabel A;
- Parkeren op eigen terrein.