Achter deze imposante gevel met fraaie knipvoegen gaat een fantastisch woonhuis van ruim 100 jaar oud verborgen, dat smaakvol en kwalitatief goed is verbouwd tot een instapklaar woonhuis met vijf slaapkamers en twee badkamers. Authentieke elementen, waaronder glas in loodramen en de vestibule, zijn gecombineerd met het wooncomfort van nu.
De woonkamer met openslaande tuindeuren is heerlijk licht en de moderne keuken grenst aan een ruime, multifunctionele bijkeuken. In de achtertuin, gesitueerd op het westen, staat een garage/hobbyruimte met ruimte voor de (kinder)fietsen.
De Weeresteinstraat heeft een fraaie ligging ten opzichte van het centrum, het treinstation en het buitengebied richting het duingebied. In het dorp kunt u terecht voor de dagelijkse boodschappen, om te winkelen, voor een kop koffie, heerlijke lunch of een heerlijk diner. Ook de voorzieningen van Hoofddorp en Lisse bevinden zich in de nabijheid. Het treinstation met goede verbindingen naar Amsterdam, Haarlem, Schiphol, Den Haag en Leiden is 5 minuten fietsen en via het duingebied is het ongeveer een half uur fietsen naar het strand. Hillegom heeft goede onderwijsvoorzieningen, zowel basis- als middelbaar onderwijs, en biedt uitstekende sportfaciliteiten voor alle leeftijden.
Indeling:
Begane grond:
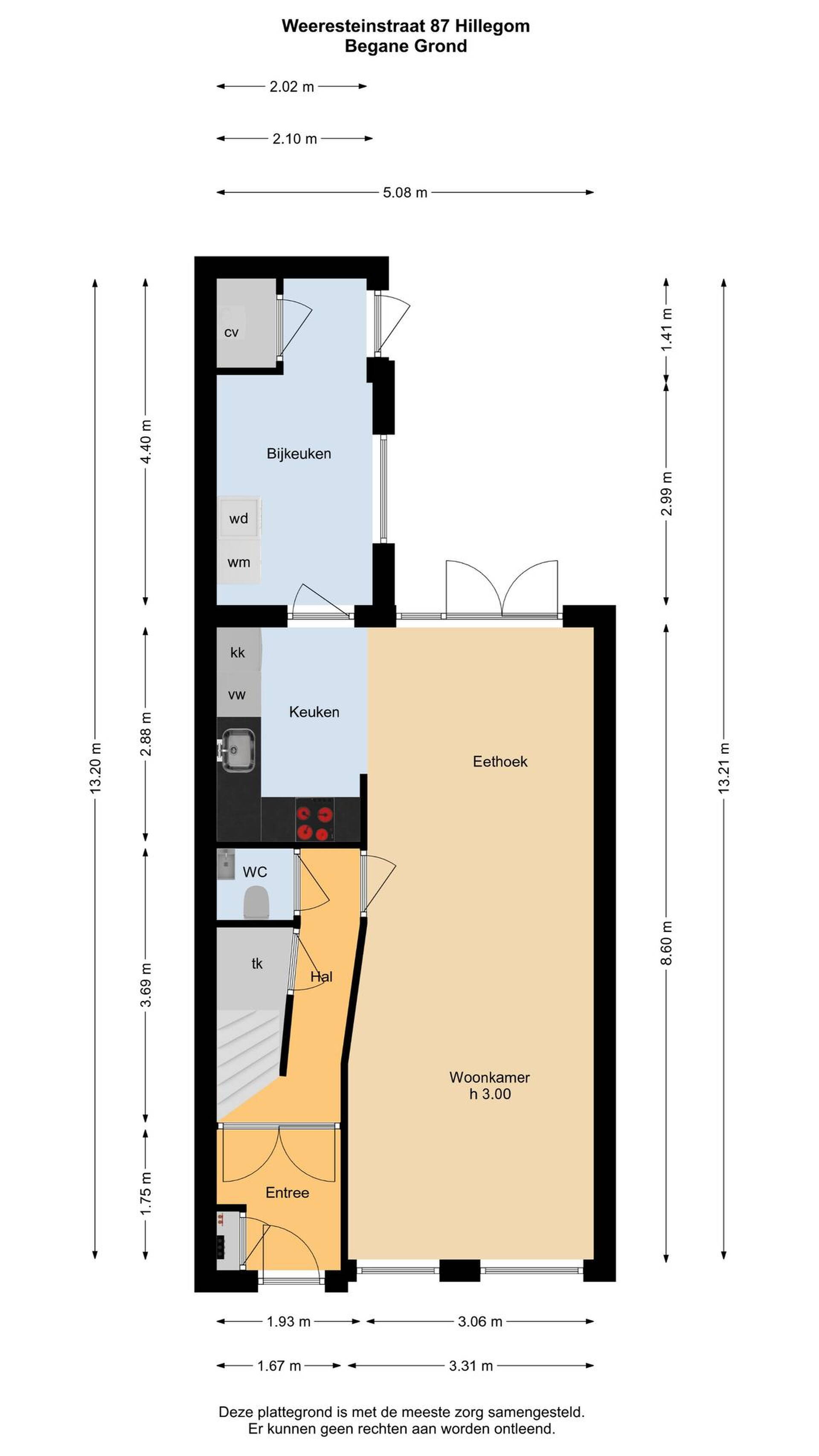
De prachtige entree met glas in lood bovenraam, duo voordeur, knipvoegen (2019) en originele brievenbus (niet meer in gebruik) is een plaatje. Hier ziet u direct dat er is verbouwd met behoud van karakter. Dit geldt ook voor de aansluitende vestibule, die in verbinding met de hal staat. Het 3 meter hoge plafond, de trapopgang, paneeldeuren en wit-zwarte vloer vormen een fraai geheel. Achter een van de paneeldeuren bevindt zich de in 2019 vernieuwde, stijlvolle toiletruimte met een wandcloset en fonteintje.
Met een lengte van 8.60 meter, een hoog plafond en fraai lichtinval aan twee zijden is de woonkamer een fantastische leefruimte boordevol sfeer. Glad stucwerk, geschilderd in een lichte kleur, maakt de woonkamer heel ruimtelijk en openslaande deuren geven toegang tot de tuin. Het zitgedeelte bevindt zich aan de voorzijde en het eetgedeelte grenst aan de halfopen keuken.
Qua kleurstelling is de keuken in hoekopstelling (2019) ingetogen, maar alle comfort en inbouwapparatuur van het gerenommeerde merk AEG is aanwezig. U heeft de beschikking over een 4-pits inductie kookplaat, afzuigkap, koel-/vriescombinatie, vaatwasser en een oven. In de aansluitende, verrassend grote bijkeuken is onder andere ruimte voor de wasapparatuur. Ook bevindt zich hier een kast met de opstelling van de HR-ketel.
Eerste verdieping:
Stijl, sfeer en comfort zijn ook aanwezig op de eerste verdieping. Vanaf de overloop zijn drie slaapkamers, een badkamer en een separate toiletruimte te bereiken. Op een groot deel van deze verdieping ligt zacht tapijt en ook hier zijn de muren en plafonds glad gestuct.
Aan de voorzijde zijn twee slaapkamers en de derde, tevens grootste slaapkamer bevindt zich aan de achterzijde. In totaal zijn er drie inbouwkasten, waarvan een grenst aan de overloop. Mooi detail zijn de glas in lood bovenramen aan de voorzijde, waar het zonlicht voor fraaie kleurschakeringen zorgt.
De moderne badkamer (2019) is fraai ingedeeld met een ligbad, aparte douche, een handdoekenradiator en een breed wastafelmeubel. Het bad is een heerlijke ruimte om tot rust te komen, met fijn lichtinval door het grote raam.
Tweede verdieping:
Verrassend is de indeling op de tweede verdieping, waar nog twee slaapkamers en een badkamer zijn. Hiermee is dit zeer ruime huis geschikt voor een gezin en het ontvangen van gasten.
Op de overloop en in beide slaapkamers ligt zacht tapijt en het steile, schuine dak met grote ramen zorgt voor prettig lichtinval, de originele balkenstructuur van het dak is hier bewaard gebleven. De slaapkamer aan de voorzijde is ingericht als zitkamer en de kamer aan de achterzijde als ruime tweepersoonskamer. In de badkamer (2019) ziet u een inloopdouche en een wastafelmeubel.
Tuin en garage:
Vanuit de woonkamer en bijkeuken is de zonnige tuin op het westen te bereiken. In het verlengde van de bijkeuken is een overdekt terras (2019) gebouwd en de garage/berging doet dienst als berging/ sportruimte en is een plek voor het stallen van bijvoorbeeld de fietsen. Verder ziet u in de zonnige tuin bestrating, kunstgras en mooie beplanting waarvoor u geen groene vingers nodig heeft. De voortuin met klassieke bestrating en beplanting geeft het woonhuis een statige uitstraling.
Bijzonderheden:
-Verwarming en warm water via een HR-ketel (Intergas Prestige CW6, 2019) met een voorraadboiler en warmtewisselaar
-Hardhouten kozijnen (deels 2019) met HR++ glas (m.u.v. glas in lood begane grond + raam in voor en achterdeur)
-Verbouwd met behoud van karakter (vestibule, glas in loodramen en trapleuningen)
-Glad stucwerk op alle verdiepingen (2019)
-Vernieuwde keuken, toiletruimtes en twee badkamers (2019)
-Vernieuwde elektrische installatie en vloerbalken begane grond (2019)
-Fraaie knipvoeg voorgevel (2019)
-Mooie overkapping achtertuin (2019)
-Dakisolatie en extra geluidsisolatie aan de voorzijde van de woning
-Fraaie voorgevel met knipvoegen
-Energielabel C
Wilt u deze woning komen bezichtigen?
Neem contact met ons op via het contactformulier, op telefoonnummer 023-2100 700 of op uwmakelaar@ remax.nl.
Wij nemen zo snel mogelijk contact met u op.