Deze vrijstaande jaren ’50 woning is een opvallende verschijning aan de Stationsweg. De witte gevels, speelse daklijnen en de brede dakoverstekken geven de woning een mooie uitstraling. Op de eerste verdieping zijn drie slaapkamers en het souterrain is in gebruik als Air Bnb met twee slaapkamers, twee badkamers en een gezamenlijke keuken met zitgelegenheid. Op de begane grond geniet je vanuit de woonkamer, eetkamer en de keuken van het uitzicht naar de tuin. Op de oprit is parkeergelegenheid voor meerdere auto’s en in de tuin heb je volop privacy. En het bestemmingsplan biedt de mogelijkheid voor het realiseren van een bakkerij; hoe gaaf is dat!
De woning staat recht tegenover het treinstation, een levendige plek aan de rand van Hillegom. De Stationsweg is een fietsstraat waar auto’s ‘te gast’ zijn. Als je de Stationsstraat volgt dan kom je in het centrum van Hillegom met diverse winkels, supermarkten, horecagelegenheden, scholen en sportvoorzieningen. Hillegom heeft vele voorzieningen voor jong en oud en een gunstige ligging ten opzichte van Haarlem, Leiden, Hoofddorp en Lisse. Het strand, de diverse duingebieden en het Keukenhof zijn nabij gelegen en bent u met de auto of fiets snel bij Langevelderslag of de Waterleidingduinen.
Bekijk ook onze bezichtigingsvideo!
Indeling:
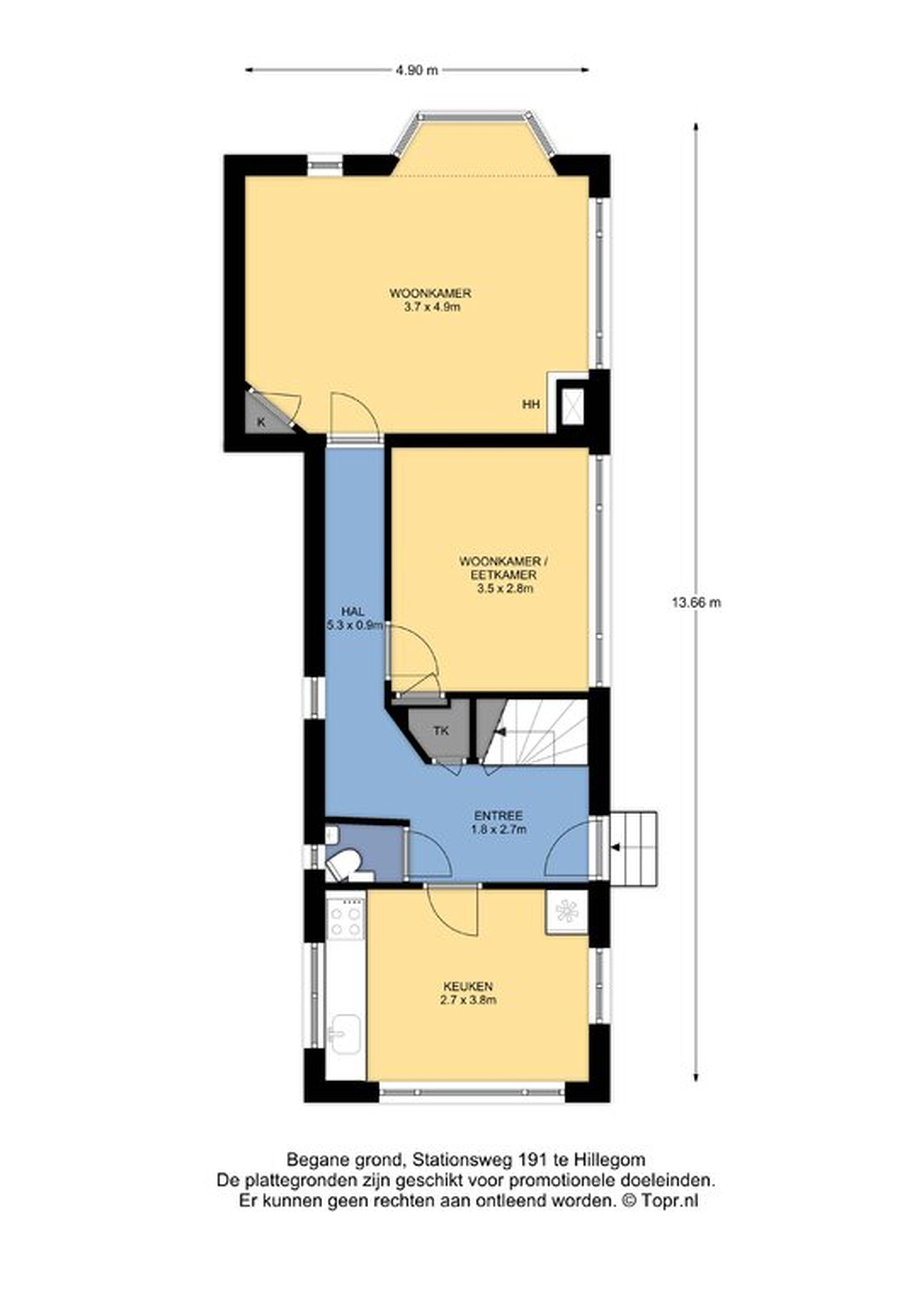
Begane grond:
Via het kleine trapje kom je bij de voordeur van deze sfeervolle woning. De ruime ontvangsthal geeft onder andere toegang tot de toiletruimte met fonteintje, een bergkast, de woonkamer, eetkamer en de keuken.
Aan de achterzijde zijn de woonkamer en eetkamer, gescheiden door middel een schuifdeur. De woonkamer heeft een open haard, lichte erker en een houten vloer. Door de grote ramen valt veel daglicht naar binnen en tegelijk heb je mooi uitzicht naar de tuin en de levendige omgeving. Net als in de woonkamer ligt in de 2e woon/eetkamer een houten vloer met karakter. In de eetkamer is voldoende plek om met vrienden en familie te genieten van een gezellig etentje.
De dichte keuken heeft ramen aan drie zijden, ruimte voor een (ontbijt)tafel en een wandopstelling met diverse inbouwapparatuur: een gaskookplaat, afzuigkap en een combioven. Hier ervaar je het genot van een hoog plafond en zorgt de lichtblauwe kleur voor een vrolijk accent.
Deze verdieping heb je eventueel toegang tot het souterrain.
Eerste verdieping:
Dankzij de dakkapel is de overloop een stuk ruimer én lichter geworden. Er zijn op deze verdieping drie slaapkamers, een badkamer en een separate toiletruimte. De steile, schuine daken zorgen voor een aangename sfeer en de kamer aan de achterzijde heeft een vaste garderobekast.
De badkamer is ingedeeld met een douche en een wastafel. Tegenover de badkamer is de toiletruimte, te bereiken vanaf de overloop.
Zolder:
Via een vlizotrap te bereiken zolderberging met een dakraam en in de hoek staan de cv-ketel en boiler opgesteld.
Souterrain:
Verrassend is het souterrain; ruim van formaat en voor diverse doeleinden te gebruiken. Het souterrain is al jaren in gebruik ten behoeve van Air BnB en heeft twee slaapkamers, twee badkamers, een keuken en een gemeenschappelijke ruimte met toegang tot een toiletruimte. Beide slaapkamers zijn te bereiken via de houten overkapping, voorzien van meerdere lichtkoepels. Op deze wijze hoeven gasten niet in de privéwoning te komen.
In de keuken staan een bank, waar gasten tv kunnen kijken, en een wasmachine. De aansluitende gezamenlijke ruimte is de plek voor een ontbijt of een kop koffie. Beide kamers zijn voorzien van airco en de badkamers zijn ingedeeld met een douche, toilet en wastafel.
Exterieur:
Deze charmante, vrijstaande woning staat op een mooi perceel en heeft een mooie siertuin met een gazon, terras, diverse bloemen en planten en enkele bomen die zorgen voor privacy en natuurlijke schaduw. Voor de overkapping is een oprit met een flauwe helling; hier is het mogelijk om op eigen terrein te parkeren.
Bijzonderheden:
- Bouwjaar: 1950
- Woonoppervlakte: 144m2
- Inhoud: 548M3
- Perceel oppervlakte: 227m2
- 5 slaapkamers
- Eigen oprit
- Dubbelglas in het woonhuis
- Vergunning voor Air BnB / duurzame bakkerij
- Dichtbij het station, uitvalswegen en het strand
RE/MAX Uw Makelaar houdt zich aan de richtlijnen van het RIVM en de Rijksoverheid, voor meer informatie verwijzen wij u graag naar onze website.