Deze riante hoekwoning biedt volop mogelijkheden voor veel woonplezier dankzij de woonoppervlakte van maar liefst 149 m² en twee dakterrassen beide gelegen op het westen!
Daarnaast is de begane grond uitermate geschikt voor Airbnb-verhuur of als bedrijfsruimte, wat deze woning extra aantrekkelijk maakt voor wie op zoek is naar aanvullende inkomsten of een eigen werkplek aan huis.
Gelegen aan de Rijksstraatweg, bevindt deze woning zich in de geliefde en levendige buurt van Haarlem. De woning biedt een ideale combinatie van rust en stadsleven, met het bruisende centrum van Haarlem op fietsafstand. In de directe omgeving vind je diverse winkels, supermarkten, gezellige cafés en restaurants. Daarnaast zijn er diverse scholen in de buurt, wat de woning ook zeer geschikt maakt voor gezinnen. De groene parken en wandelgebieden, zoals het Schoterbos en de Haarlemmer Kweektuin, liggen op korte loopafstand, perfect voor ontspanning.
Uitstekende bereikbaarheid:
De woning is uitstekend bereikbaar met openbaar vervoer en de uitvalswegen richting Amsterdam en Schiphol zijn eenvoudig te bereiken. Een fijne locatie voor wie comfortabel wil wonen in Haarlem!
Indeling:
Begane grond:
Bij binnenkomst betreed je de hal, die toegang biedt tot diverse vertrekken op de begane grond. Hier vind je een ruime badkamer, een multifunctionele ruimte die kan dienen als zelfstandig appartement of extra opslagruimte, alles is mogelijk! Vanuit de hal leidt een trap naar de eerste verdieping.
Eerste verdieping:
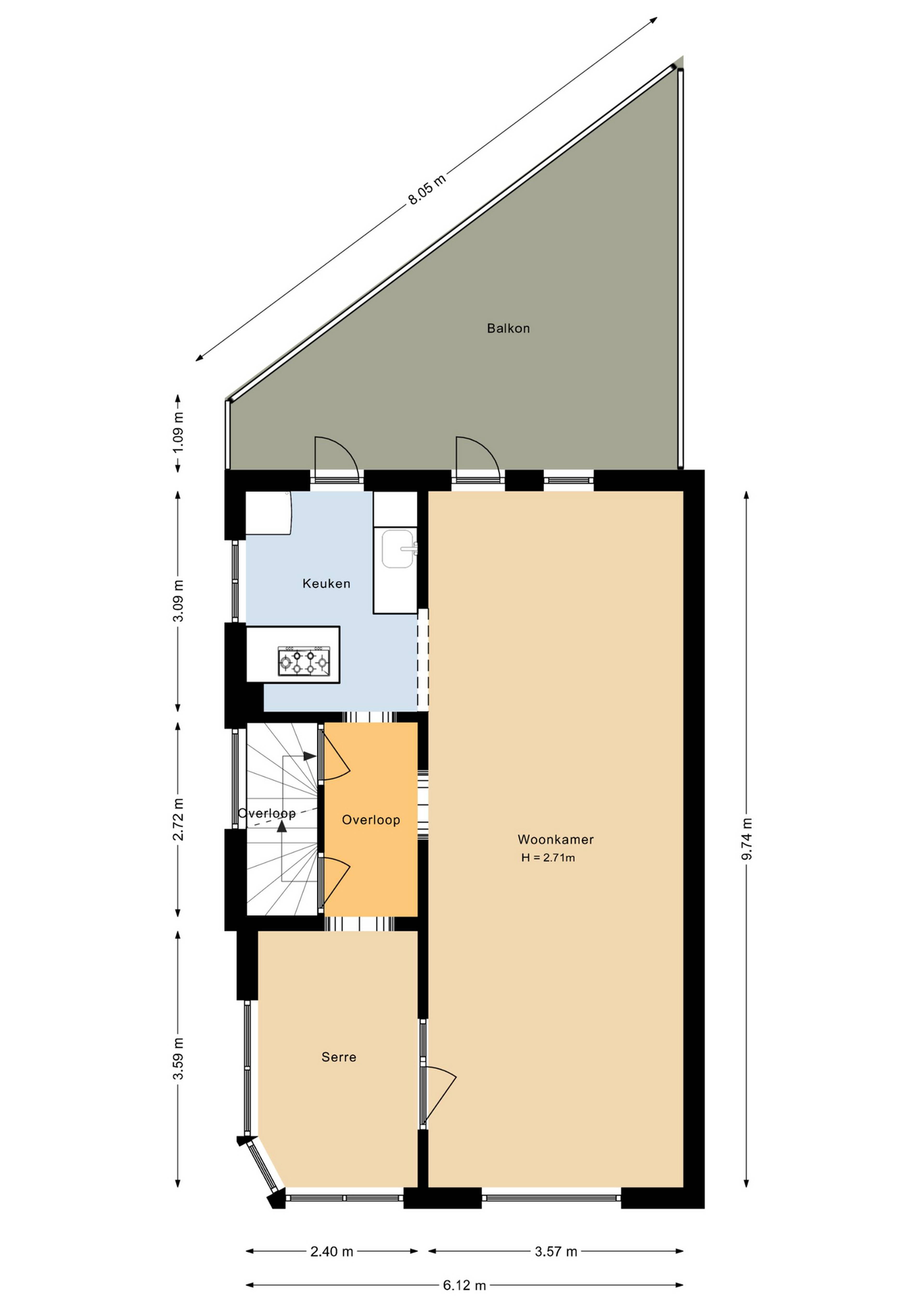
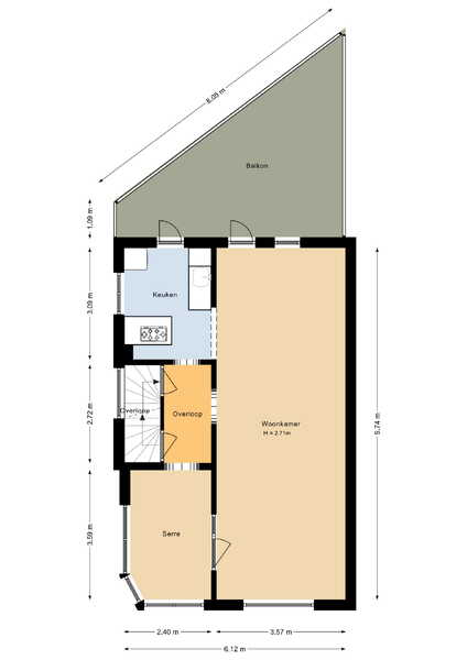
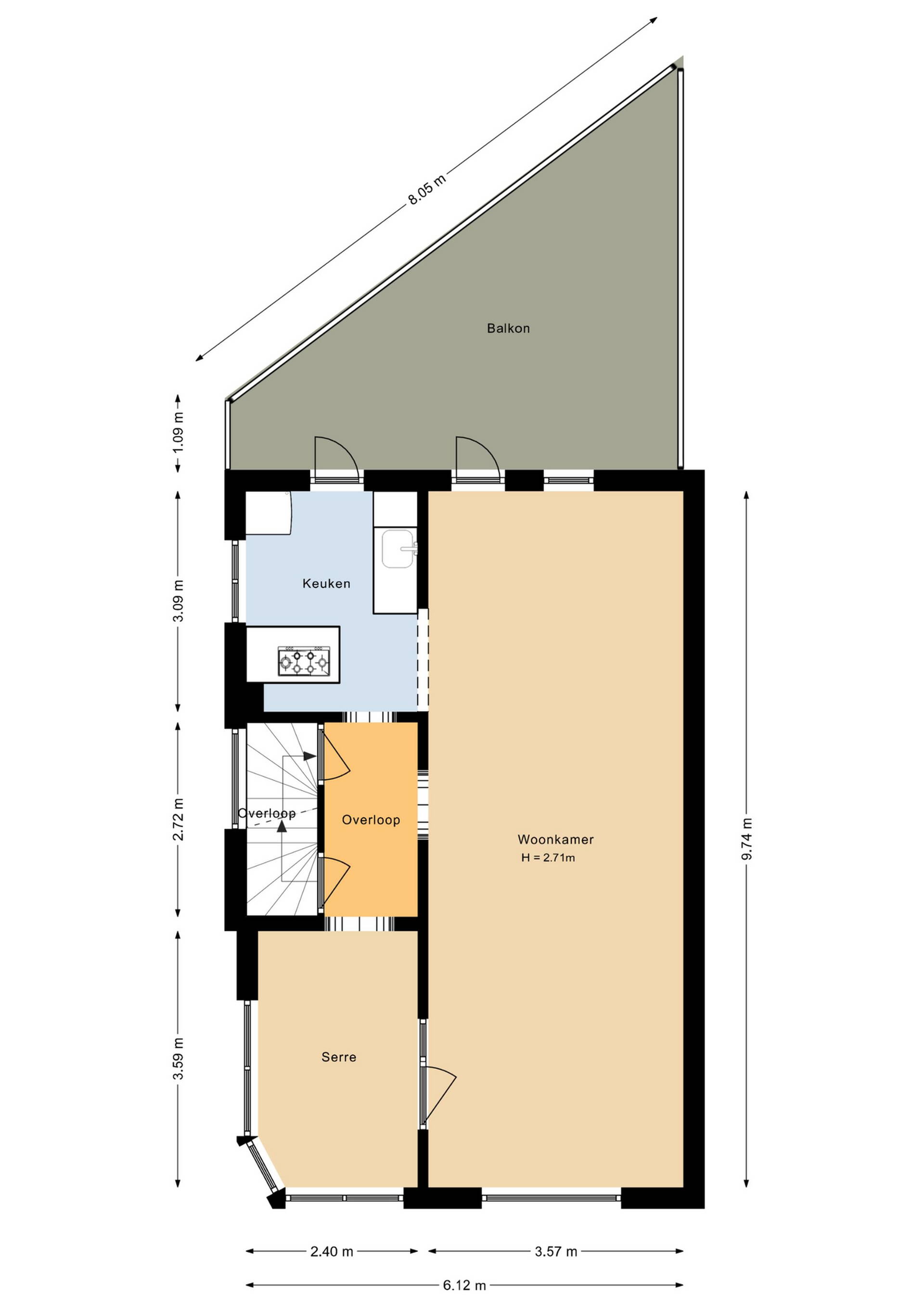
De eerste verdieping biedt een ruime woonkamer, grenzend aan een modern ingerichte halfopen keuken, voorzien van alle benodigde apparatuur. Vanuit de woonkamer heb je toegang tot het op het westen gelegen dakterras, dat zorgt voor een uitstekende verbinding met buiten en een ideale plek voor de zonliefhebber. De lichte serre biedt daarnaast een prettige werk- of hobbyruimte. De woonkamer is royaal en praktisch in te richten, met voldoende ruimte voor een comfortabele zithoek en een eettafel voor zes personen. Perfect om samen met vrienden en familie te genieten van een heerlijk diner uit eigen keuken!
Tweede verdieping:
Op de tweede verdieping bevinden zich drie slaapkamers, perfect voor een gezin of voor het creëren van extra werk- of hobbyruimte. Ook is er een tweede badkamer. Via de badkamer is er toegang tot het tweede dakterras gelegen op het westen.
Dakterras eerste verdieping:
Het ruime dakterras op de eerste verdieping is gelegen op het westen en biedt de perfecte plek om tot laat van de zon te genieten. Dankzij de ruime opzet heb je hier alle ruimte om te ontspannen of gezellig te borrelen met vrienden en familie. Het dakterras staat in directe verbinding met de woonkamer en is bovendien ook vanaf de begane grond toegankelijk, wat extra gemak en flexibiliteit biedt.
Bijzonderheden:
- Woonoppervlakte van ca. 149 m² woonplezier;
- Bouwkundig rapport aanwezig;
- Bouwjaar 1932;
- Hoekwoning;
- Half open keuken, voorzien van alle benodigde apparatuur;
- Drie slaapkamers;
- Twee badkamers;
- Serre aan de voorzijde;
- Zonwering aanwezig;
- Energielabel E;
- Twee dakterrassen beide gelegen op het westen;
- Verwarming en warm water via een Kombi Kompat HRE 36/30 Intergas-ketel;
- Mogelijkheid tot het gebruik van de begane grond als extra appartement, opslagruimte of voor Airbnb-verhuur;
- Gratis parkeren in de buurt;
- Centraal gelegen met goede verbindingen;
- Oplevering in overleg.
Wil jij deze woning komen bezichtigen?
Neem contact met ons op!