Op zoek naar een ruim opgezette maisonnette woning waar u heerlijk kunt wonen? Zoek niet verder, dit is 'm!
Een werkelijk ruim opgezette woning ca. 100m2, met lift en een heerlijk balkon op het zuidwesten! Of we het nu hebben over de 3 slaapkamers, de keuken met Siemens apparatuur, de master bedroom met eigen douche, de laminaatvloer (2020) de badkamer met ligbad en whirlpoolfunctie, de inloopdouche, de sauna, het vrije uitzicht over het water…dit is dé woning waar het voelt als thuiskomen.
Ligging:
Het appartement heeft een gunstige ligging met slechts 15 minuten loopafstand van het Osdorpplein in de buurt van winkels en andere verscheidene recreatiemogelijkheden zoals de Sloterplas en het Sloterpark. Daarnaast is Amsterdam Osdorp uitgegroeid tot een populaire spot waar het rustig wonen is, maar van waaruit u de binnenstad snel vanuit bereikt. Verder is het openbaar vervoer op loopafstand en de diverse uitvalswegen A4, A9 en A10 zijn binnen enkele minuten aan te rijden.
Indeling:
Bij binnenkomst heeft u via de centrale hal toegang tot zowel een trap als een lift naar de woning, de afgesloten binnentuin en de parkeerkelder. De entree bevindt zich op de tweede verdieping van het gebouw. Via de hal betreedt u de woning voorzien van een plavuizen vloer en riante tegels en de meterkast die voorzien is van slimme meters, watermeter, drie aardlekschakelaar en hoofdschakelaar.
Begane grond:
In de hal is een ruime mogelijkheid om garderobe te creëren. Verder bevindt zich een trapkast dat dient als voorraad kast met een wasmachine aansluiting een toilet met zwevend closet fonteintje betegeld tot aan het plafond. Aan de linkerzijde bevindt zich de ruime zeer moderne betegelde badkamer voorzien van ruim ligbad met whirlpoolfunctie, douche, wastafelmeubel, opbergkast met spiegel en een sauna! Na een dag hard werken kunt u heerlijk hier even bijkomen. Er bevinden zich 2 slaapkamers op de begane grond.
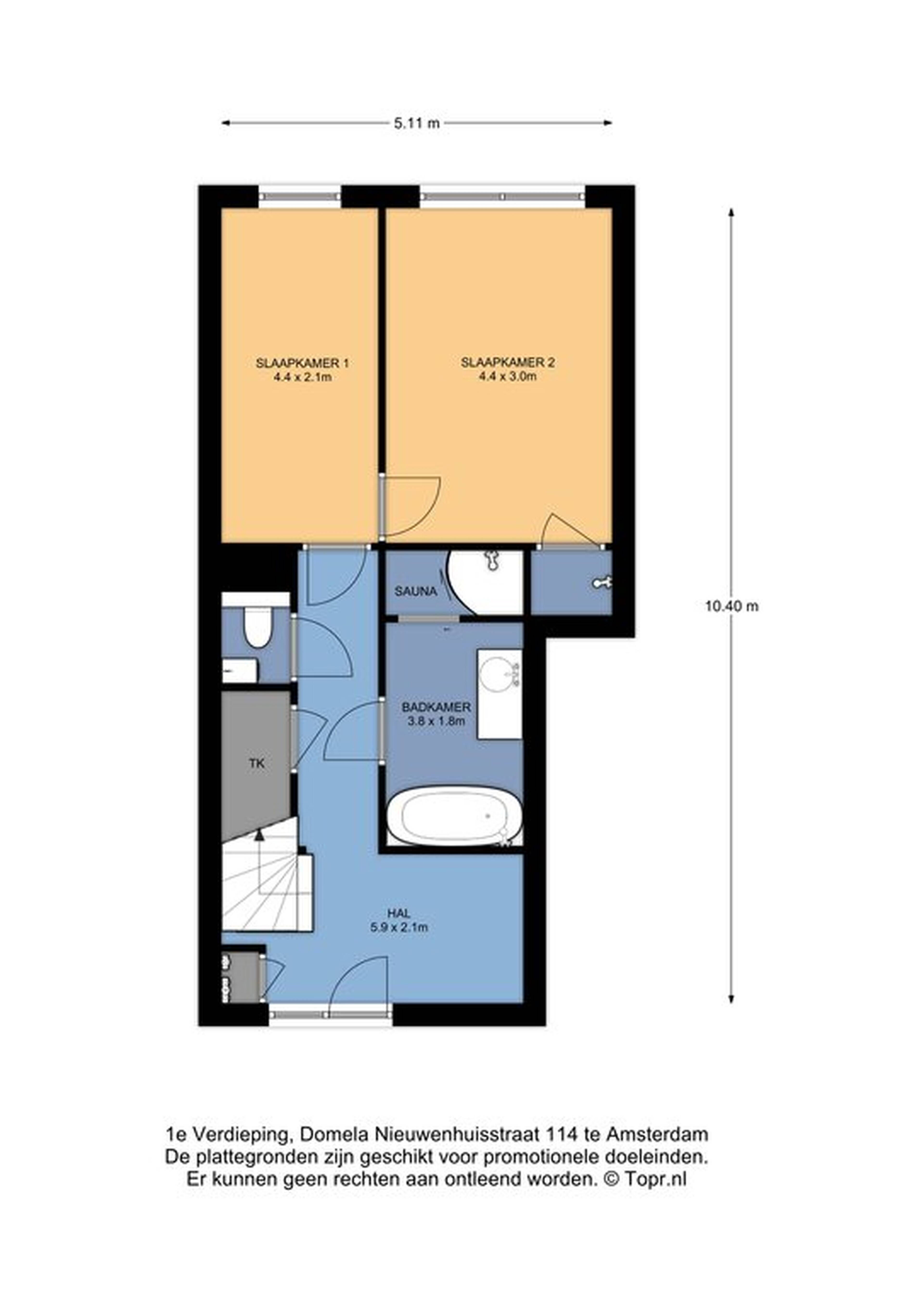
Eerste verdieping:
Als u vanuit de hal met de gestoffeerde trap naar boven loopt komt u op de eerste verdieping van de maisonnette. Op deze verdieping komt u direct in de riante zon overgoten woonkamer met half open hoogglans lichte keuken. Deze keuken is voorzien van een Amerikaanse Samsung koel/vries combinatie, Siemens combi-magnetron, Siemens inductie kookplaat, afzuigkap en een Siemens vaatwasser. Aan de voorzijde bevindt zich de master bedroom slaapkamer met een eigen douche gelegenheid. De gehele woning is voorzien van kunststof kozijnen en draai/kiep ramen. De woonkamer en de keukenvloer is voorzien van een brede laminaatvloer (2020). Vanuit de woonkamer heeft u een openslaande deur tot het zonnige balkon op het zuidwesten. Op het diepe balkon heeft u de mogelijkheid om een lounge set of eettafel te plaatsen alsmede wat speeltoestellen voor kinderen. Hier kunt u dus in de middag en avond heerlijk genieten van de zon! Het balkon heeft uitzicht op de gemeenschappelijke groene binnentuin.
Kelder: De privé parkeerplaats en de berging bevinden zich in de onderbouw van het complex. U heeft ook toegang tot de afgesloten binnentuin waar kinderen rustig kunnen spelen. In de zomer wordt deze
binnentuin ook gebruikt door de bewoners om gezellig samen te BBQ'en. Er is tevens voldoende gratis openbare parkeergelegenheid.
BIJZONDERHEDEN:
- Zonnige woning met zeer ruim balkon op het zuidwesten
- Erfpacht is afgekocht tot 31-10-2058
- Energielabel A
- Woonoppervlak van 99m2 (NEN 2580 ingemeten )
- Servicekosten €128,70 excl. gwl per maand
- Bouwjaar 2010
- Volledig geïsoleerd
- Inclusief eigen parkeerplaats
- CV-Ketel HR intergas uit 2009
- Het complex wordt professioneel beheerd door een actieve en financieel gezonde VvE
RE/MAX Uw Makelaar houdt zich aan de richtlijnen van het RIVM en de Rijksoverheid, voor meer informatie verwijzen wij u graag naar onze website.